Текст книги "Современный зарубежный детектив-16. Компиляция. Книги 1-20 (СИ)"
Автор книги: авторов Коллектив
Соавторы: Ю Несбё,Алиса Валдес-Родригес,Адам Холл,Штефан Людвиг,Ли Чжонгван,Эш Бишоп,Саммер Холланд,Терри Дири
сообщить о нарушении
Текущая страница: 43 (всего у книги 337 страниц)
И немного в конце
Вот такая получилась история тиндер-аферистки Уны Боннер. Конечно, у вас осталась масса вопросов, и, конечно, я могу на них ответить.
Бренда переехала к Гидеону в конце года, и теперь квартира в Хаверинге свободна. Не советую ее занимать, хоть и без муравьев, но жить там все равно паршивая идея.
Мы долго обсуждали, как обеспечить ее будущее, и так бурно спорили, что собакам пришлось нас разнимать. Зато теперь у Бренды есть кое-что даже лучше денег: фонд в банке, который покроет обучение в любом университете, который она выберет. Она еще думает.
Мы с Фелисити болтаем по «Фейстайму» пару раз в месяц, и теперь я даже не стесняюсь называть нас подругами. Она работает мостиком между финансовыми мирами Ближнего Востока и Лондона и говорит, клиентов на консультацию так много, что она даже наняла себе помощника. Свадьба в следующем году, и я приглашена. Правда, рассказать ей о том, с кем теперь живу, так и не смогла, хоть и обещаю себе каждый раз.
Тело Хэмиша нашли через неделю после ареста Чарльза. Причиной смерти назвали сердечный приступ, и хоть никто и не смог объяснить, что шотландский баронет забыл в восточнолондонских ебенях, дело не особенно внимательно расследовали. Оказалось, его отец едва ли не отрекся от него из-за отказа продолжить семейное дело, и поэтому смерть Хэмиша для большинства людей прошла незамеченной. Разве что Фелисити плакала, когда узнала. Я немного поплакала вместе с ней.
Подозреваю, что во всем этом как-то замешана Лейла. Не удивлюсь: она теперь звезда лондонской полиции, еще одно громкое дело – и займет место Чарльза. Потрясающая карьера для тридцатилетней, и Эрик с Рэем чуть ли не перекрестились, когда увидели, какую бурную деятельность она развернула в Лондоне. Хорошо, что мы в Сингапуре.
Чарльз получил пятнадцать лет заключения. Барон Вустридж – всего два года. Когда выйдет, мы позовем его в гости вместе с женой, чтобы у них был хоть какой-нибудь отпуск.
Лула ненавидит нас всех, потому что мы не можем ее пригласить и держим на удаленке, в Бирмингеме. У нее еще не закончился испытательный срок после приговора, но как только истечет, она точно сорвется сюда первым же рейсом, чтобы избить Рэя. Мы с Эриком очень ждем этот день.
Как родители отреагировали на мой отъезд? Сложно сказать. Не заметила, чтобы у них была хоть одна эмоция по этому поводу, если честно, но они меня точно не останавливали. Думаю, теперь, когда нас разделяет много тысяч миль, они стали еще счастливее.
Мы с Эриком и Рэем активно работаем над нашим совместным проектом в Сингапуре. Пока не могу рассказать вам, что мы придумали, потому что обязательно найдется какая-нибудь крыса, которая напишет письмо местному финансовому управлению. Но вы следите за нами по телевизору, каждая громкая новость может оказаться отголоском нашей аферы. Вы ведь нас знаете, мы не играем в мелкой воде.
Что до любви… Мы с Эриком и Рэем не говорим о каких-то громких словах, и без того ясно, кто мы друг другу. У нас отношения, совместный быт и планы на будущее, а любовь… Разве она кому-то нужна, когда есть чувства куда сильнее нее?
Спасибо, что прочли мою историю!
Целую,
Уна Боннер
Послесловие
Привет, нам нужно поговорить.
Завершилась история Уны, и мне бы не хотелось, чтобы она кого-то вдохновляла. Конечно, в каждой книге должен быть свой счастливый финал, но этот я счастливым не считаю. Вынужденные совершать все более тяжелые преступления, герои оказались отщепенцами для своего собственного мира и для своей родной страны. Они покинули ее в поисках места, где их поведение будет принято, но мы все знаем, что это лишь временная иллюзия.
Я ни в коем случае не поощряю подобное поведение и должна заметить, что каждый выбор, сделанный этой преступной группой, был аморальным и отвратительным. Для меня они были не тем, что должно вдохновлять, скорее наоборот: я намеревалась сделать реалистичный срез безобразных явлений современного мира.
Уна Боннер – человек, лишивший себя будущего, и она – лишь предупреждение о возможном исходе для тех, кому гедонизм стремится заменить ответственность и честь. Финальный выбор оставил ее в воображаемом личном счастье, которое обязательно обернется личным одиночеством, а последствия окажутся неотвратимы.
А самое главное – слова Лейлы Газаль обязательно станут для этих героев пророческими.
Не только не призывая к повторению действий героев, я бы хотела предостеречь каждого, даже банально повторяя простые истины: грабить, обманывать, убивать и нарушать закон – плохо.
Укэцу
Странный дом
Tok. Фудосан-мистери. Расследования по чертежам

HENNA IE © Uketsu 2021
Russian translation rights arranged with ASUKA SHINSHA, INC. through Japan UNI Agency, Inc., Tokyo

Художественное оформление К. Гусарева
Иллюстрация на обложке ЕyeEmpty

© Бонадык Н.А., перевод на русский язык, 2024
© Издание на русском языке, оформление.
ООО «Издательство Эксмо», 2025
Перед вами план дома.

Заметили что-нибудь странное?
На первый взгляд это совершенно обычный дом. Но если рассмотреть планировку внимательнее, можно заметить много необычных, даже зловещих деталей. С каждой секундой тревога нарастает, и наконец из разрозненных мелочей складывается правда об этом доме.
Ужасающая, невероятная правда.

Глава 1
Странный дом
Вопрос от знакомогоЯ писатель-фрилансер, в основном меня интересуют такие темы, как мистика и оккультизм. По работе мне часто приходится сталкиваться с историями о паранормальных явлениях или загадочных происшествиях. И очень часто в них фигурируют дома. «Со второго этажа доносятся звуки шагов, хотя там никого нет…», «Сижу один в гостиной, но чувствую, что за мной кто-то наблюдает…», «В пустом шкафу переговариваются несколько голосов…» – каких только страшилок о домах с призраками я не слышал.
Но тот дом был не похож на другие.
* * *
В сентябре 2019 года мне позвонил знакомый по фамилии Янаока, сказал, хочет со мной посоветоваться. Янаока работает менеджером по продажам в одном издательстве, благодаря чему мы и познакомились с ним несколько лет назад. С тех пор мы поддерживаем связь, иногда встречаемся, чтобы вместе пообедать.
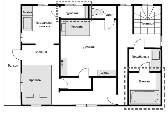
Янаока ждал рождения ребенка, поэтому решил, что им с женой пора обзавестись собственным домом. Он каждый день допоздна пропадал на сайтах агентств недвижимости, пока наконец ему на глаза не попался идеальный вариант: двухэтажный дом в тихом зеленом районе в черте Токио, расположенный недалеко от железнодорожной станции. До этого там уже кто-то жил, но сам дом был практически новым, его построили всего несколько лет назад. Янаока с женой съездили на осмотр и остались в полном восторге: дом оказался очень светлым и просторным. Однако в его планировке была одна странная деталь.
На первом этаже, между кухней и гостиной, находилось загадочное пустое пространство. В него не вела никакая дверь, поэтому попасть внутрь было невозможно. И в агентстве недвижимости тоже не смогли объяснить, зачем оно нужно. Не то чтобы это пространство могло как-то мешать в быту, но само его наличие не давало Янаоке покоя. В итоге он начал сомневаться, покупать ли ему вообще этот дом.
Первый этаж

Он решил посоветоваться именно со мной, видимо, потому, что я часто имею дело со сверхъестественным. «Загадочное пустое пространство…» Это и правда звучало таинственно, так что мне стало любопытно. Но я совершенно не разбираюсь в архитектуре и мало что могу понять, глядя на планировку дома.
Поэтому я решил обратиться за помощью.
КурихараУ меня есть знакомый по фамилии Курихара: он работает проектировщиком в крупном архитектурном бюро. А еще он большой фанат мистики и хорроров. Если кто-то и мог помочь мне разобраться с тайной этого дома, то только он.
Я пересказал Курихаре историю Янаоки, и он, кажется, заинтересовался, поэтому я отправил ему на почту планировку дома, а затем позвонил, чтобы узнать, что он обо всем этом думает.
Далее идет запись нашего с Курихарой разговора.
Автор: Курихара, привет! Спасибо, что нашел для меня время.
Курихара: Да ладно. По поводу твоего плана…
Автор: Ты смог понять, зачем нужно это пустое пространство, в которое невозможно попасть?

Курихара: Нет. Единственное, что я могу сказать с полной уверенностью, – оно появилось не в результате ошибки проектировщиков.
Автор: Точно?
Курихара: Да, это понятно из плана: со стороны кухни построили две дополнительные стены. Без них «загадочное пространство» не возникло бы, а сама кухня была бы просторнее. Если ради дополнительных стен пожертвовали площадью кухни, значит, пустое пространство было необходимо.
Автор: Ясно. Зачем же оно могло понадобиться?
Курихара: Вероятно, там планировали дополнительное помещение для хранения. Например, если установить двери со стороны гостиной, получится кладовка. А если расположить их со стороны кухни, внутри можно установить большой сервант. Наверное, в процессе строительства хозяева передумали, или им не хватило денег. Так или иначе, они отказались от идеи установить двери.


Автор: Понятно. А планировку менять было уже поздно, поэтому они просто оставили пустое пространство как есть, так получается?
Курихара: Да, это самое логичное объяснение.
Автор: Значит, ни к каким оккультным практикам оно отношения не имеет.
Курихара: Получается, так. Однако…
Неожиданно я уловил в голосе Курихары напряжение.
Курихара: Для кого строили этот дом?
Автор: Для прошлых владельцев: семейной пары с маленьким ребенком. Всего три человека.
Курихара: Маленьким? Сколько примерно лет?
Автор: Таких подробностей я не знаю… А что, что-то не так?
Второй этаж


Курихара: Честно говоря, как только я увидел план, то сразу подумал, что этот дом какой-то странный.
Автор: Вот как? Тебя смутило что-то еще, кроме загадочного пространства?
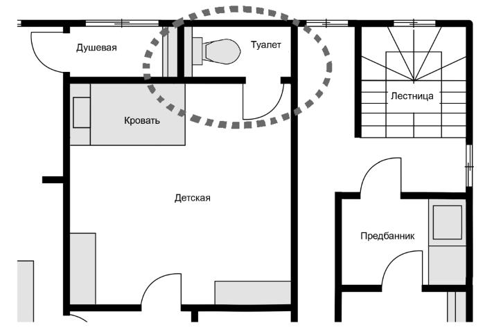
Курихара: Да, планировка второго этажа. Взгляни на детскую. Ничего не замечаешь?
Автор: Хм-м-м… Что, две двери?.. В детскую ведет коридор, и с обоих его концов установлено по двери.
Курихара: Верно. И расположен он тоже странно. Допустим, ты поднялся на второй этаж. Чтобы попасть в детскую, тебе придется сделать крюк и обойти пол-этажа. Ужасно неудобно, тебе не кажется?
Автор: И правда.
Курихара: А еще в этой комнате нет ни одного окна.

Действительно, на плане в стенах детской я не увидел ни одного значка, обозначающего окно.
Курихара: Обычно родители, наоборот, просят проектировщиков продумать планировку таким образом, чтобы в детскую попадало как можно больше солнечного света. А чтобы ребенку сделали комнату совсем без окон… Такого я еще никогда не видел.
Автор: Может, этому есть какое-то объяснение? Например, у ребенка кожное заболевание, и солнечный свет ему вреден.
Курихара: В таком случае окна достаточно просто занавесить. Совсем отказываться от них – это странно, даже ненормально.
Автор: Ясно.
Курихара: К тому же в этой комнате есть еще одна непонятная деталь. Посмотри на туалет. Судя по расположению двери, в него можно попасть только из детской.
Автор: И правда. Получается, у ребенка был отдельный туалет?
Курихара: Похоже на то.

Автор: Комната без окон и с отдельным туалетом. А чтобы войти в нее, нужно пройти через коридор, по обеим концам которого установлены двери… Звучит как описание тюремной камеры.
Курихара: Да, даже для родителей, склонных к гиперопеке, это перебор. От планировки так и веет желанием полностью контролировать ребенка. Может быть, его даже держали в детской взаперти.
Автор: Значит, ребенок подвергался жестокому обращению…
Курихара: Не исключено. Скажу больше: по-моему, родители не хотели, чтобы их ребенка кто-то увидел. Взгляни еще раз на план второго этажа. Тебе не кажется, что все комнаты расположены так, чтобы скрыть наличие детской? К тому же в ней нет окон. Получается, увидеть ребенка с улицы было невозможно. Можно предположить, что родители держали его под замком и скрывали от окружающих сам факт его существования.
Второй этаж

Автор: Но зачем?
Курихара: Не знаю. Но судя по планировке, в этом доме творилось что-то ужасное.
Две ванныеКурихара: Кстати, рядом с детской расположена спальня…
Автор: Ты про комнату с двуспальной кроватью? Наверное, это спальня родителей, да?

Курихара: Да, скорее всего. Она просторная, в отличие от детской. И окон там много.
Мне вспомнились, как Янаока назвал этот дом «светлым и просторным».
Курихара: Но, честно говоря, в ней меня тоже кое-что смущает. В верхней части плана изображена душевая. Получается, умывальная комната играет роль предбанника[29], но при этом она полностью просматривается из спальни.
Автор: И правда, двери-то нет.
Курихара: Согласись, в этом мало приятного: раздеваться или выходить из душа, пока на тебя кто-то смотрит. Пусть даже муж или жена. Может, конечно, эти двое были настолько близки… Какая-то жуткая картина вырисовывается: родители не чают души друг в друге, но при этом держат собственного ребенка под замком. Хотя, может быть, я накручиваю.
Автор: Ну да… Ой, ого!
Курихара: Что такое?
Автор: Кроме душевой на втором этаже есть еще ванная комната. Это ведь тоже необычно?
Второй этаж

Курихара: Ну, не могу сказать, что это что-то из ряда вон, но такая планировка действительно встречается крайне редко. Кстати, в ванной тоже ни единого окна. Зато в душевой есть одно, почти во всю стену.
Автор: И правда. Выходит, все-таки этот дом какой-то жутковатый… Как ты считаешь, лучше его не покупать?
Курихара: Конечно, нельзя делать однозначные выводы на основе одной только планировки, но… На месте твоего знакомого я бы поискал другой вариант.
Я поблагодарил Курихару и положил трубку. А потом снова принялся разглядывать план и живо представил ребенка, заточенного в комнате без окон, в то время как родители безмятежно спят в своей кровати.
Второй этаж

Первый этаж

Затем я решил сравнить планы первого и второго этажей. Если смотреть только на первый этаж, то можно решить, что это совершенно обычный дом. Не считая, конечно, загадочного пустого пространства. Кстати о нем… Курихара предположил, что это просто дополнительное помещение для хранения, в которое не стали проделывать дверь. Но что, если он ошибся?
Тут у меня возникла одна догадка. Совершенно дурацкая. Повторяя про себя: «Да ничего это мне не даст», я наложил друг на друга планы первого и второго этажей. Удивительно, но в интересующем меня месте детали планов совпали идеально.
Простая случайность? Или…
Загадочное пустое пространствоЯ снова позвонил Курихаре.
Автор: Прости, что опять тебя дергаю.
Курихара: Да ладно, ничего страшного. Что-то случилось?
Автор: Мне все-таки никак не дает покоя это пустое пространство. Я подумал, может, оно как-то связано с планировкой второго этажа?
Курихара: Вот как?
Автор: Поэтому я наложил друг на друга планы первого и второго этажей… и оказалось, что пустое пространство тянется ровно от угла детской к углу ванной. Как будто соединяет эти два помещения.
Курихара: Да, и правда.

Автор: И… Я, конечно, ничего в этом не понимаю и, возможно, скажу глупость, но мне пришло в голову вот что: вдруг пустое пространство на первом этаже – на самом деле тайный проход? Что, если в полу в детской и ванной расположены два лаза на первый этаж, которые «загадочное пространство» соединяет? По нему можно перемещаться из детской в ванную. Родители ведь скрывали наличие ребенка. Но чтобы попасть в ванную, ребенку приходилось бы проходить через коридор, где есть окна. Там его могли заметить с улицы. Поэтому и понадобился тайный проход, который ведет из детской прямо в ванную. А чтобы замаскировать его, в углу комнаты поставили шкаф. Вот такая мысль у меня появилась… Что думаешь?
Курихара: Хм… Ну, идея, конечно, интересная.
Автор: Что, это уже перебор?
Курихара: Не уверен, что родители стали бы придумывать такие ухищрения просто ради того, чтобы ребенок сходил в ванну незамеченным.
Автор: Да, действительно. Ты прав. Извини… Просто что-то вдруг в голову пришло… Забудь.
Только что я с жаром излагал свою теорию, но теперь почувствовал себя неловко. Действительно, мое воображение чересчур разыгралось. Я уже собирался закончить разговор, когда из трубки донеслось бормотание Курихары.
Курихара: Лаз… Погоди-ка. Если твое предположение верно, то эта комната…


Автор: Ты что-то понял?
Курихара: Да нет, просто твои слова натолкнули меня на одну мысль. Кстати, я правильно помню, изначально в этом доме жили трое: муж, жена и ребенок?
Автор: Да.
Курихара: Получается, одна кровать лишняя. Супруги спали в спальне на втором этаже, а ребенок – в детской. Для кого тогда кровать на первом этаже?
Автор: Может быть, для гостей?
Курихара: Да, скорее всего. Уж не знаю, кем гости приходились владельцам, но в доме они бывали часто. Есть у меня одна теория, которая позволяет объяснить все: и детскую без окон, и лаз, про который ты говорил, и регулярные визиты гостей. Наверное, она покажется тебе дикой… Не воспринимай то, что я сейчас скажу, серьезно. Считай это просто плодом моей больной фантазии.
Первый этаж

Курихара: Раньше в этом доме жила супружеская пара с ребенком. Причем ребенка держали в его комнате взаперти с определенной целью. Периодически родители приглашали домой гостей: общались с ними в гостиной, накрывали для них стол. Муж подливал гостю спиртное, тот с удовольствием пил. Когда гость был уже порядком пьян, жена предлагала: «Может быть, вы останетесь переночевать? У нас есть свободная спальня». А муж добавлял: «Я набрал для вас горячей воды в ванну. Пожалуйста, оставайтесь».
Второй этаж

Первый этаж

Тогда гостя вели в ванную на втором этаже. Стоило ему зайти внутрь, как женщина подавала сигнал ребенку, находившемуся в своей комнате. Он брал с собой некий предмет, пролезал в отверстие в полу детской и по тайному проходу на первом этаже проникал в ванную. А потом…
Вонзал в спину гостя орудие убийства.
Автор: Что?! С чего ты это взял?..
Курихара: Я же говорю, это просто мое больное воображение. Голый, безоружный, с затуманенным от алкоголя сознанием, гость плохо соображал и не мог сопротивляться. Ребенок раз за разом наносил ему удары в спину. Кровь лилась рекой. Гость, так и не успев понять, что произошло, замертво падал на пол. В общем, этот дом был построен специально для убийств.
Автор: Не может быть… Ты шутишь?!
Курихара: В целом да. Но, может быть, я и прав. Ты ведь наверняка и сам читал в интернете о всяких загадочных происшествиях? В сети выкладывают кучу таких историй: невероятных, поражающих своей жестокостью. Больше похожих на плохие ужастики, чем на реальные случаи. В мире есть безумцы, способные на такое, что нам с тобой даже представить себе сложно. Например, супружеская пара, которая особым образом спроектировала дом и использовала ребенка, чтобы совершать убийства его руками… Лично я могу допустить, что такое возможно.
Автор: Да, но… Если даже ты прав… Зачем им это?
Курихара: Хороший вопрос. Нет смысла разрабатывать такой хитроумный план ради того, чтобы избавиться от одного конкретного человека. Боюсь, они совершали убийства регулярно. В таком случае ими вряд ли двигали личные мотивы. Скорее, они просто выполняли заказы.
Автор: Заказы?
Курихара: Да, в сети полно таких сайтов: на них можно разместить свой «заказ» и найти исполнителя, чтобы «делегировать» ему совершение убийства. Противозаконная активность в интернете уже давно стала серьезной проблемой. В большинстве случаев заказчиков просто обманывают и разводят на деньги, но я слышал, что найти реального исполнителя тоже возможно. Берут недорого – 200–300 тысяч йен[30]. Это, так сказать, «киллеры-любители», но, как я слышал, со временем их методы становятся все более разнообразными и изощренными.
Автор: То есть получается, что этот дом – место работы двух наемных убийц?
Курихара: Такое возможно. Хотя, повторюсь, это просто мои безумные фантазии.
Супружеская пара киллеров, которая использовала ребенка, чтобы совершать убийства. Это уж слишком даже для самой безумной фантазии.
Курихара: Но давай разовьем эту мысль дальше. Ты упоминал, что шкаф в детской скрывал лаз в полу. А ведь в этой комнате есть еще один шкаф. Можно предположить, что под ним тоже находится отверстие.
Автор: Пожалуй…
Курихара: И куда же можно через него попасть?
Автор: Хм… В кладовку.
Курихара: Именно, в кладовку. Получается, в этом доме был еще и проход, благодаря которому можно было легко избавляться от трупов.
Автор: Каким образом?
Второй этаж

Первый этаж

Курихара: Вернемся к сцене убийства. Допустим, все прошло гладко. Но нельзя же оставить труп лежать в ванной. Необходимо избавиться от тела так, чтобы его никто не увидел. И снова нашу парочку киллеров выручает тайный проход в детскую. Отверстие лаза узкое, тело взрослого человека в него не пройдет. Поэтому супруги пилой или чем-то еще разделывают труп на небольшие куски, которые можно легко протолкнуть через дыру в полу. Настолько маленькие, чтобы ребенку было не слишком тяжело их перетаскивать.
Автор: Что?!
Курихара: Супруги по кускам сбрасывают тело в отверстие. У ребенка уходит несколько часов на то, чтобы по одному перенести их в свою комнату. Там он бросает их в другое отверстие. Так останки перемещают из ванной в кладовку. А рядом с ней расположен гараж. Расчлененное тело засовывают в багажник машины, родители отвозят его в лес неподалеку и оставляют там.
Действительно, ведь одним из главных достоинств этого дома было его расположение: недалеко от станции, но при этом в зеленом районе, рядом с лесом.
Курихара: Получается, сами убийства и все дальнейшие манипуляции с трупами происходили в помещениях, где нет окон. Никаких рисков, что с улицы что-то увидят. Нашим убийцам ничего не мешало делать свое грязное дело хоть круглый год, в любое время дня и ночи. Ну как, что ты об этом думаешь?

Курихара рассуждал уверенно, со знанием дела, поэтому я просто молча слушал его и старался лишний раз не перебивать, но теперь все-таки решился озвучить свои сомнения.
Автор: Хм-м-м… Предположим, ты прав… Но зачем придумывать все эти ухищрения с тайными проходами? Достаточно задернуть шторы, и никто ничего не увидит.
Курихара: А, насчет этого. Действительно, когда люди хотят скрыть происходящее в доме от посторонних глаз, они задергивают шторы. Логично ожидать, что они сделают так и перед тем, как совершить убийство. Но никому и в голову не придет, что преступление может произойти в доме, где все окна открыты.
Автор: То есть это своего рода психологический трюк?
Курихара: Думаю, да. Взгляни на планировку еще раз. В этом доме огромное количество окон. Шестнадцать штук – я посчитал. Как будто владельцы сами хотели, чтобы прохожие и соседи заглядывали внутрь как можно чаще. Мне кажется, это была уловка, которая позволяла оставить в секрете существование комнат, о которых не следовало знать посторонним.
Первый этаж
Второй этаж

Автор: Ясно…
Курихара: Ну, это ведь просто мои домыслы. Не забивай себе голову.
После того как мы с Курихарой распрощались, я еще какое-то время обдумывал его слова. Что, если он все-таки прав? Может, мне нужно обратиться в полицию? Хотя нет, лучше не надо. Меня там даже слушать не станут. Кто поверит, что семейка киллеров построила дом, предназначенный для убийств? Бред какой-то. Возможно, Курихара выдумал всю эту историю только для того, чтобы надо мной подшутить.
Как бы то ни было, мне предстояло сделать еще кое-что. Я должен был позвонить Янаоке и рассказать ему, какое мнение сложилось у Курихары насчет этого дома. Возможно, догадку про «дом для убийств» стоит оставить при себе, но, по крайней мере, о странностях планировки детской ему лучше узнать.









![Обложка: Честь Воина [CИ]](/files/books/110/no-cover.jpg)