Текст книги "Хранители Братства (ЛП)"
Автор книги: Дональд Уэстлейк
Жанр:
Иронические детективы
сообщить о нарушении
Текущая страница: 2 (всего у книги 17 страниц)
Я наблюдал за лицом брата Оливер, пока он читал, и видел, как меняется его выражение по мере осознания, о чем идет речь в заметке. Когда он, наконец, поднял взгляд от газеты, лицо аббата было почти столь же белым, что и волосы.
– Господь милосердный, – произнес он. – Они собираются снести нашу обитель.
– Так говорится в газете. Мы и правда продаемся?
– Мы? – Брат Оливер вновь нахмурился, глядя в газету, и покачал головой. – Мы тут ни при чем. Это не в нашей власти.
– Почему же?
– Мы не владеем землей, – объяснил аббат. – Мы владеем зданием, но не участком, на котором оно построено. У нас договор аренды на землю.
– И когда истекает срок аренды?
Брат Оливер выглядел все более встревоженно, словно у него началась зубная боль.
– Я не уверен, – сказал он. – Полагаю, мне следует уточнить.
– Да уж, – согласился я. – Не помешает.
Тот факт, что Израэль Запатеро построил знание монастыря на арендованной земле, упоминался в краткой биографии нашего Основателя, выдаваемой каждому новому члену Ордена, но я как-то не задумывался над тем, что мы по-прежнему пребываем в положении арендаторов. Прочитав эту заметку в «Санди Таймс» о продаже нашего участка, я предположил, что это либо ошибка, либо, возможно, некий план брата Оливера, о котором он еще не удосужился сообщить братству. Теперь, похоже, дела обстояли куда хуже: мы не владели землей, на которой жили, и наш прекрасный старый причудливый монастырь – наш дом – того и гляди снесут прямо над нашими головами.
Брат Оливер казался еще более взволнованным и обеспокоенным, чем я, если такое вообще возможно.
– Я… – начал он и замялся, но все-таки закончил фразу: – …обдумаю, что тут можно предпринять.
Он направился к выходу, сжимая в руке газету, затем остановился и, взмахнув рукой с газетой, спросил:
– Могу я оставить ее у себя?
– Конечно, – ответил я, и в этот момент мой взгляд уловил оранжевый штрих на мольберте брата Оливера. Этот предмет, лежащий на подставке мольберта – не ручка ли «Флер»?
С неожиданной настойчивостью я окликнул брата Оливера, спешащего к двери:
– Брат Оливер?
Он остановился.
– Да? Что?
– Откуда у вас эта ручка?
Аббат озадаченно уставился в том направлении, куда я указывал.
– Откуда у меня… что?
– Эта ручка. – Я поднял ее с мольберта.
– О, я нашел ее в библиотеке.
– Она принадлежит брату Валериану.
– Я воспользовался ей, рисуя щеки младенца. Ты уверен?
– О, да. Я… эээ… одолжил ее у него, а потом потерял.
– Ага.
– Можно я верну ее владельцу?
– Да, конечно.
– Спасибо, – сказал я, и мы поспешили, каждый по своим делам.
Я ощутил огромное облегчение, найдя, наконец, ручку «Флер», иначе пришлось бы где-то раздобыть сорок девять центов на возмещение ее потери, но моя радость была омрачена осознанием того, что, заметив ручку, я совершил еще один грех: солгал аббату насчет того, что «одолжил» ее.
Что ж, во вторник отец Банцолини вернется, чтобы вновь выслушать мою исповедь.
Глава 2
– Мне надоела эта оранжевая ручка «Флер», – заявил отец Банцолини.
Как и мне, но я смолчал. Исповедальня – не подходящее место для светских разговорчиков.
Отец Банцолини испустил тяжкий вздох. Ему, похоже, было более чуждо понятие долготерпения, чем я мог себе представить.
– Что-нибудь еще брат?
– Не в этот раз, – ответил я.
– Очень хорошо. В качестве покаяния… – он сделал паузу, и я подумал: «Сейчас я получу на орехи», – …прочтешь четыре раза «Отче наш» и… двадцать «Аве, Мария».
Ого.
– Да, отец, – сказал я.
Мы быстро прошли процедуру раскаяния и отпущения грехов, я покинул исповедальню и преклонил колени у алтаря.
Две мысли занимали мой разум, пока я стоял на коленях, бесконечно повторяя свое покаяние: «Радуйся, Мария, благодати полная, Господь с тобой» и так далее. Первая мысль – облегчение от того, что этот казус с оранжевой ручкой «Флер» наконец-то остался в прошлом. Вторая – любопытство, не является ли наложение чрезмерного покаяния грехом, в котором отцу Банцолини в свою очередь придется признаться на исповеди, а затем выполнять собственное покаяние? И какое покаяние будет считаться чрезмерным в его случае?
– …молись о нас, грешных, ныне и в час смерти нашей, аминь.
Двадцать. Я, наконец, поднялся с колен, которые хрустнули ну в точности как у старого брата Зебулона, и заметил, что брат Оливер ждет меня в задней части часовни.
– Твое покаяние было очень долгим, брат Бенедикт, – заметил он.
– Я размышлял, – ответил я. И, о Боже, это было ложью? Мне что, придется исповедаться в субботу, получить еще одно чрезмерное покаяние, и все будет повторяться без конца, аминь? Но я и правда размышлял, разве нет? Мне трудно было определиться и, подозреваю, в следующую субботу я истолкую сомнения в свою пользу.
В любом случае, брат Оливер был удовлетворен ответом.
– Пойдем-ка, – сказал он. – Хочу, чтобы ты присутствовал на собрании.
– На собрании? – переспросил я, но аббат уже спешил прочь, словно Белый Кролик в «Алисе», так что все, что мне оставалось – поспешить вслед за ним.
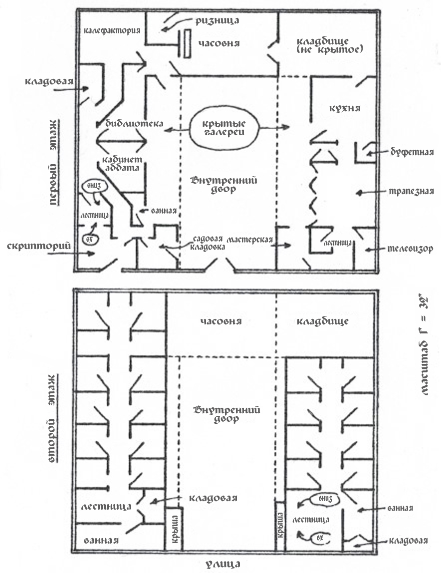
Мы прошли в кабинет аббата – маленькую комнатку с низким потолком и стенами, обшитыми деревянными панелями, похожую на дупло в стволе дерева. Окна со свинцовым переплетом, образующим шахматный узор, выходили на неухоженную, увитую диким виноградом беседку во внутреннем дворе – виноград был кислым, скудным и ни на что не годным. Вид из окон усиливал впечатление, что находишься где-то в эльфийском лесу, как и монахи в коричневых рясах, рассевшиеся за трапезным столом посреди помещения. Их было трое: братья Клеменс, Декстер и Иларий.
Брат Оливер занял свое привычное место в резном дубовом кресле во главе стола и жестом пригласил меня сесть рядом, обратившись к остальным:
– Брат Бенедикт кое-что рассказал мне вчера, и я хочу, чтобы вы это тоже услышали. Прошу тебя, брат.
– О, – произнес я.
Публичные выступления не моя сильная сторона; я бы никогда не добился успеха в ордене проповедников. Я оглядел лица братьев, полные любопытства и ожидания, пару раз откашлялся и сказал:
– Ну…
Выражение любопытства и ожидания сохранялось на лицах собравшихся, так что, делать нечего, придется выкладывать. И я выложил:
– Монастырь собираются снести!
Трое братьев подпрыгнули, словно в их стулья провели электричество.
– Чего?! – сказал брат Клеменс.
– Нет! – сказал брат Декстер.
– Не может быть! – сказал брат Иларий.
Но брат Оливер во главе стола лишь грустно кивнул.
– Боюсь, что это правда, – сказал он.
– Кто хочет снести наш монастырь? – спросил брат Клеменс.
– Уж определенно не Флэттери, – сказал брат Иларий.
– Некто по имени Дворфман, – сообщил брат Оливер.
– Но это какой-то абсурд, – заявил брат Декстер, а брат Иларий добавил:
– Никакой Дворфман не владеет этим монастырем. Он принадлежит Флэттери.
– Уже нет, – сказал брат Оливер.
Брат Клеменс, который до ухода от мирских дел был адвокатом на Уолл-стрит, поинтересовался:
– Флэттери? Дворфман? Кто эти люди?
– Возможно, брату Иларию следует выдать нам историческую справку, – предложил брат Оливер.
– Отличная мысль, – сказал брат Клеменс, и теперь все мы повернулись к брату Иларию, все с тем же выражением любопытства и ожидания на лицах.
Брат Иларий, как оказалось, не испытывал страха перед публичными выступлениями.
– Конечно, – сказал он.
Грустный и мрачный человек, с тяжелой походкой страдающего плоскостопием, он совершенно не соответствовал своему имени, впрочем, как и святой, бывший Папой с 461 по 468 год, чье имя он получил.[7]7
Hilarious – (букв. лат.) «веселый», «смешной».
[Закрыть] Брат Иларий, в прошлом сотрудник универмага, являлся нашим монастырским историографом.
Ровным монотонным голосом брат Иларий поведал нам:
– Основатель нашего монастыря, благословенный Запатеро, заложил его в 1777 году, взяв на девяносто девять лет в аренду участок земли, принадлежавший в ту пору некоему Колтону Ван де Витту. Линия Ван де Виттов прервалась во время Гражданской войны, и…
Брат Оливер перебил его:
– Прервалась? – Он выглядел столь же растерянным, как в тот раз, когда брат Мэллори предложил ему написать картину, которая не была бы «Мадонной с Младенцем».
– В семействе в итоге не осталось сыновей, – объяснил брат Иларий, – и потому род прекратил свое существование. После Гражданской войны земля перешла к добропорядочной ирландской католической семье по фамилии Флэттери, которая сохраняла право собственности вплоть до наших дней.
– А мы платим какую-нибудь арендную плату? – уточнил брат Клеменс.
Будучи коренастым мужчиной плутоватого вида с пышной шевелюрой седых волос, брат Клеменс все еще выглядел престижным адвокатом, каким когда-то был, и он по-прежнему получал немалое удовольствие, вставляя в разговор свои аргументы, чем более придирчивые и менее существенные – тем лучше. Он встал на мою сторону в том великом споре о цензуре, в ходе которого неоднократно доводил пылкого брата Флавиана до состояния немого замешательства. По блеску в его глазах, когда брат Клеменс спросил об арендной плате, я предположил, что на уме у него какая-то юридическая уловка.
– Я не знаю, – ответил брат Иларий. – Какое это имеет значение?
– По закону, – сообщил брат Клеменс, – непрерывное пользование в течение пятнадцати лет наделяет арендатора достоянием по факту.
– Достоянием? – повторил брат Оливер слово, которое не вполне понимал.
– Правом собственности, – объяснил брат Клеменс.
– Собственности? – лицо брата Оливера озарила робкая надежда. – Хочешь сказать, мы сами владеем нашим монастырем?
– Если мы не платили арендную плату в течение пятнадцати лет, – сказал брат Клеменс, – и если за это время со стороны прежнего собственника не поступало никаких претензий, то монастырь – наш. Вопрос в том: платили ли мы аренду?
– Не совсем, – сказал брат Декстер, впервые вступая в разговор.
Брат Декстер, худощавый, с продолговатой головой, с постоянной аурой безупречной чистоты, витавшей вокруг него, как считалось, стоял следующим в очереди на пост аббата, как только брат Оливер отправится на небеса. Пока же он являлся помощником брата Оливера, а его прошлое – он происходил из семьи, связанной с банковским бизнесом в Мэриленде – было незаменимым благословением при наведении порядка в наших тощих, но запутанных бухгалтерских книгах.
– Что значит «не совсем», брат? – нахмурился брат Клеменс.
– От нас требовалось, – пустился в объяснения брат Декстер, – ежегодно первого февраля выплачивать арендную плату в размере одного процента от совокупного дохода монастыря за прошлый год. Благословенный Запатеро после основания монастыря инвестировал оставшийся капитал, и другие обитатели монастыря тоже жертвовали средства, которые инвестировались ради общего блага. Кроме того, первые лет сто существования Ордена мы время от времени занимались сбором подаяний, но, благодаря здравой инвестиционной программе, выпрашивание милостыни перестало быть необходимым задолго до начала этого века.
Брат Клеменс, хорошо скрывая свое нетерпение, спокойно спросил:
– Брат, в полной ли мере мы выполняли свои обязательства по арендной плате?
– Да, в полной. Нас освободили от необходимости фактически выплачивать аренду, но по сути договор аренды остается неизменным.
– Я понимаю с пятого на десятое, – сказал брат Оливер. – Мы не платим арендную плату, но договор аренды по-прежнему в силе? Как это вообще возможно?
Я был рад услышать от аббата этот вопрос, поскольку сам понимал еще меньше, чем он, но чувствовал себя не в праве прерывать поток заумных рассуждений брата Декстера. Теперь я прищурил глаза, глядя на него в ожидании ответа.
Он начал с предложения, которое не вызвало у меня проблем с пониманием:
– Флэттери богаты. – Затем он продолжил: – Они никогда не нуждались в наших деньгах за аренду, поэтому возвращали их в качестве пожертвований. Но последние шестьдесят с лишним лет они вообще не получают нашу плату.
– Вот с этого места поподробней, – попросил брат Клеменс, и остальные кивнули, даже брат Иларий.
– Я пытаюсь вам объяснить, – проворчал брат Декстер. Знатоки всегда раздражаются, когда до простых смертных медленно доходит. – Где-то перед Первой мировой войной Флэттери прислали нам письмо, в котором говорилось, мол, не отправляйте нам больше деньги за аренду, а считайте их благотворительным пожертвованием.
– А, понял, – сказал брат Клеменс. – Они не освобождают нас от арендной платы, мы по-прежнему должны подсчитывать сумму и собирать ее. Но, вместо того, чтобы платить им, мы отдаем эти деньги сами себе.
– Верно. – Брат Декстер кивнул. – И мы отправляем им отчет, в котором указываем, сколько именно они пожертвовали. Например, в прошлом году их взнос составил четыреста восемьдесят два доллара и двадцать семь центов.
Еще с начальной школы у меня были проблемы с десятичными дробями. Но я прожил в монастыре десять лет, и это была первая подсказка – как нам удается сводить концы с концами, так что я был полон решимости разобраться. Общая собственность нашего братства была «инвестирована», и доход от этих инвестиций в прошлом году составил четыреста восемьдесят два доллара и двадцать семь центов, умноженные на сто. Значит, надо добавить два нуля или перенести десятичную точку влево – нет, вправо – получится, сорок восемь миллионов долларов?
Да нет, тысяч! Сорок восемь тысяч двести двадцать семь долларов. Будучи разделенные на шестнадцать, они давали каждому из нас средний годовой доход в три тысячи долларов. Не слишком много. Конечно, мы жили здесь, не тратя деньги на арендную плату и были освобождены от налога на имущество. Кроме того, наша философия не поощряла житье на широкую ногу.
Брат Декстер, показывая, что бывших банкиров не бывает, добавил:
– Наш доход, к слову, составляет девять целых четыре десятых процента от капиталовложений.
Так, стоп. Это было выше моего понимания. Некоторые люди, скажем, Альберт Эйнштейн, могли бы, пользуясь этими подсказками, вычислить сколько денег у нас содержится в этих загадочных инвестициях, но только не я. Выбросив цифры из головы, я вернулся к разговору.
В который вмешался брат Иларий, спросив:
– Я не юрист, но я так понимаю, если мы не просрочили арендную плату, то никто не вправе нас выгнать, не так ли?
– До тех пор, пока не истечет срок аренды, – уточнил брат Клеменс и с надеждой оглядел сидящих за столом. – Кто-нибудь знает, когда он заканчивается?
– Мне не удалось это выяснить, – сказал брат Оливер. Он беспомощно указал на картотечный шкаф в самом темном углу кабинета. Шкаф, в котором, как я знал, порядка и организованности было меньше, чем на чердаке или в переплетении виноградных лоз на беседке снаружи. – Вчера вечером я потратил несколько часов на поиски.
– Что ж, давайте прикинем, – сказал брат Клеменс. Обращаясь к брату Иларию он уточнил: – Говоришь, аренда была на девяносто девять лет? С какой даты?
– Договор был подписан с Колтоном Ван де Виттом в апреле 1777 года, – сообщил брат Иларий, и сквозь его обычную невозмутимость на мгновение проглянула гордость историографа.
– Тогда срок аренды истек сто лет назад! – воскликнул, явно пораженный, брат Оливер.
– Девяносто девять, – поправил брат Клеменс, и что-то в его голосе прозвучало зловеще. – Изначальный срок аренды истек в 1876, но был продлен с того момента.
– С Флэттери, – добавил брат Декстер.
– И снова истек в этом году, – сказал брат Клеменс. – В апреле.
Никто не добавил ни слова. Мы сидели в сгущающейся тишине, глядя на бледные лица друг друга и осмысливая происходящее. С нашим монастырем. С нашим домом.
Наконец, брат Клеменс нарушил молчание, но не настрой, сказав брату Оливеру:
– Теперь я понимаю, зачем вы собрали нас. – Он оглядел остальных, и я заметил легкое замешательство, когда его глаза встретились с моими.
Брат Оливер, должно быть, тоже это заметил, потому что сказал:
– Брат Бенедикт был первым, кто узнал. Я хотел, чтобы в собрании участвовали только те, кому положено знать или кто уже знает. Я пока не хотел бы рассказывать остальным братьям. Не хочу их тревожить, пока мы не убедимся наверняка, что у проблемы нет никакого решения.
– Кому принадлежит здание? – спросил брат Декстер, повернувшись к брату Клеменсу. – Флэттери владеют землей, но кому принадлежит сам монастырь?
– Владелец земли, – угрюмо произнес брат Клеменс, – владеет любыми постройками на ней. Так что зданием владеют Флэттери.
– Уже нет, – сказал брат Оливер. – Я сегодня звонил Дэну Флэттери. Было очень трудно до него дозвониться, но, когда я, наконец, его застал, он сказал, что продал участок тому типу – Дворфману.
– Значит, наш монастырь принадлежит Дворфману, – сказал брат Клеменс.
– Наш монастырь принадлежит Дворфману, – эхом повторил брат Иларий. Он произнес эти слова с каким-то мрачным благоговением.
– Мне бы хотелось увидеть тот договор аренды, уточнить формулировки, – сказал брат Клеменс.
– Я никак не могу его найти, – признался брат Оливер. – Я уверен, что видел его раньше, но вчера вечером я искал и искал, а он как сквозь землю провалился.
– Тогда, с вашего позволения, брат Оливер, – сказал брат Клеменс, – я мог бы съездить в центр города, в окружную канцелярию. У них должна храниться копия.
– Конечно, – сказал брат Оливер. – Можешь поехать завтра же. Брат Декстер позаботится о проезде на метро. Сколько сейчас стоит проезд, не знаешь, брат Декстер?
– Утром узнаю, – ответил брат Декстер. – В придачу, я мог бы позвонить этому Дворфману и прощупать почву. Может, его заинтересует предложение продать участок обратно нам.
Теперь у меня появилась возможность вставить пару слов в разговор, хотя радости они никому не принесли.
– Я сомневаюсь, – сказал я. – Даже если Дворфман будет не прочь продать участок, мы говорим о первоклассной офисной площади в центре города, так что, боюсь, ее стоимость окажется гораздо выше того, что мы можем себе позволить. Нам нужно выкупить не меньше ста футов вдоль тротуара, куда выходит фасад здания.
Брат Декстер помрачнел.
– По-видимому ты прав, брат Бенедикт, – сказал он. – Но мы могли бы приготовиться к худшему.
– А я, – сказал брат Иларий, – просмотрю каждый клочок записей, что у нас есть, в поисках чего-нибудь, что может оказаться полезным.
– Я знал, что могу положиться на всех вас, – сказал брат Оливер. – С такими помощниками и с Божьей помощью мы, возможно, все же сможем отстоять наш монастырь.
– Как насчет меня? – спросил я. – Могу ли я чем-то помочь, брат Оливер?
– Воистину можешь, – сказал он.
Пораженный, я переспросил:
– Чем же?
– Ты, – сказал мне аббат, – можешь связаться с той женщиной, пишущей об архитектуре в «Нью-Йорк Таймс».
***
10 декабря 1975 г.
Мисс Аде Луизе Хакстебл
«Нью-Йорк Таймс»
229 43-я Западная ул.
Нью-Йорк, NY 10036
Уважаемая мисс Хакстебл!
Я пишу вам в связи с вашей заметкой, опубликованной в разделе «Искусство и досуг» воскресного выпуска «Нью-Йорк Таймс» от 7 декабря 1975 года. Хочу сообщить вам, что я монах в том монастыре, о котором вы писали в этой заметке, и спросить, можете ли вы что-нибудь сделать…
10 декабря 1975 г.
Мисс Аде Луизе Хакстебл
«Нью-Йорк Таймс»
229 43-я Западная ул.
Нью-Йорк, NY 10036
Уважаемая мисс Хакстебл!
Я монах. Проживаю в уникальном монастыре Ордена Криспинитов. Вы пишете, что наш монастырь собираются снести. Мы хотели бы узнать…
10 декабря 1975 г.
Мисс Аде Луизе Хакстебл
«Нью-Йорк Таймс»
229 43-я Западная ул.
Нью-Йорк, NY 10036
Уважаемая мисс Хакстебл!
Я монах в…
10 декабря 1975 г.
Мисс Аде Луизе Хакстебл
«Нью-Йорк Таймс»
229 43-я Западная ул.
Нью-Йорк, NY 10036
Уважаемая мисс Хакстебл!
Я монах из монастыря Криспинитов на Парк-авеню. Мы не знали, что наш монастырь собираются снести, пока не прочитали об этом в вашей колонке. Можете ли вы что-то нам посоветовать, чтобы избежать сноса? Если вы…
10 декабря 1975 г.
Мисс Аде Луизе Хакстебл
«Нью-Йорк Таймс»
229 43-я Западная ул.
Нью-Йорк, NY 10036
Уважаемая мисс Хакстебл!
Я монах из монастыря Криспинитов на Парк-авеню. Мы не знали, что наш монастырь собираются снести, пока не прочитали об этом в вашей колонке. Можете ли вы что-то нам посоветовать, чтобы сохранить наш монастырь, также являющийся нашим домом?
Дело не терпит отлагательств, ведь как мы только что выяснили, срок нашей аренды на девяносто девять лет истек.
Ваш брат во Христе, Бенедикт
Наш монастырь:

***
Собрание в среду проходило в более мрачной атмосфере, чем накануне. Снаружи, за окнами в свинцовых переплетах, лил серый декабрьский дождь. Кто-то из братьев – я не мог разглядеть его лица под опущенным из-за дождя капюшоном – возился с виноградными лозами. Сидя внутри, я все еще был вымотан и дрожал после нескольких часов мучений с пишущей машинкой нашего сообщества. Никто из остальных не мог сообщить ничего обнадеживающего.
Брат Клеменс заговорил первым:
– В архиве окружной канцелярии нет копии договора аренды, – доложил он нам. – Клянусь, когда я выразил удивление в связи с этим, престарелый клерк огрызнулся на меня: «Разве вы не знаете, что шла война?» Он имел в виду войну за независимость. Бо́льшая часть Нью-Йорка во время той войны находилась под британским управлением и на военном положении, так что многие бумаги о собственности, аренде и другие юридические документы не были должным образом зарегистрированы. Если бы речь шла о передаче собственности, это, скорее всего, оставило бы след в записях, но простая аренда не требует столь строгих юридических формальностей.
– Но договор аренды все же имеет силу, даже если он не был зарегистрирован? – спросил брат Декстер.
– До тех пор, пока у одной из сторон сохраняется копия и желание выполнять договор, – ответил брат Клеменс, – он остается в силе. Но я хотел бы ознакомиться с формулировками этого документа. Брат Оливер, поиски нашей копии пока не принесли результата?
– Я провел в поисках весь день, – скорбно сказал брат Оливер, и следы пыли на его щеках и кончике носа молчаливо свидетельствовали о том. – Обыскал все, даже побывал на чердаке. Просмотрел каждую страницу «Сокрытого от Бога» – мало ли, вдруг кто-то засунул туда договор по ошибке.
– «Сокрытый от Бога»? – Брат Клеменс прищурился.
– Четырнадцатитомный роман брата Уэсли, – объяснил брат Оливер. – Жизнеописание святого Иуды Безвестного.
– Никогда его не читал, – заметил брат Иларий. – Вы рекомендуете?
– Не с полной уверенностью, – ответил брат Оливер.
Брат Клеменс, бывший обычно жизнерадостным увальнем типа святого Бернара,[8]8
Игра слов: «сенбернар» и «святой Бернар», имя которого дало название породе собак, на английском пишутся одинаково.
[Закрыть] сосредоточившись на какой-либо цели, вцеплялся в нее, словно бульдог. И на этот раз его вниманием полностью завладел договор аренды.
– Мне нужен этот документ, – напомнил он, склонив крупную седую голову над трапезным столом, словно собирался схватить пропавший договор зубами. – Мне нужно взглянуть на него. Нужно уточнить формулировки.
– Я не могу даже представить, где еще он может быть, – сказал брат Оливер. Он выглядел так же, как я себя чувствовал за той ужасной пишущей машинкой.
– А разве у Флэттери не осталось копии? – спросил брат Иларий. – Почему бы нам не попросить посмотреть их договор?
– Я так не думаю, – ответил брат Клеменс. – Мне кажется, это не лучшая идея – дать понять другой стороне, что мы не можем найти свою собственную копию важного документа.
– Но Флэттери больше не владеют нашим участком, – возразил брат Иларий. – Так что какая им разница?
– Это не совсем так, – сказал брат Декстер, воздев палец вверх для привлечения внимания. Он еще никогда в жизни не выглядел таким аккуратным и собранным, хотя и не особо радостным.
Брат Оливер, который, казалось, с каждой минутой все больше и больше приближался к нервному срыву, воскликнул:
– Не совсем так? Не совсем так? Владеют они землей или нет? Дэн Флэттери сказал мне, что продал участок. Он что – солгал?
– Прошу простить меня, брат Оливер, – сказал брат Декстер, – но единственный краткий ответ, который я могу дать, это «не совсем».
– Тогда дай развернутый ответ, – потребовал брат Оливер, прижав обе ладони к столешнице, словно на корабле, что попал в сильный шторм.
– Сегодня я пообщался с помощником Дворфмана, – сообщил брат Декстер. – Вообще-то я весь день разговаривал с разными людьми из компании Дворфмана, но наконец-то мне удалось выйти на кого-то из руководства. Его зовут Сноупс.
– Это несколько более развернутый ответ, чем я ожидал, – заметил брат Оливер.
– Я подхожу к сути, – сказал брат Декстер, вновь проявляя легкое раздражение знатока, вынужденного что-то объяснять обывателям. – По словам Сноупса, их компания получила опцион на нашу землю и на несколько других участков по соседству.
– Опцион, – повторил брат Оливер. – Опцион означает выбор.[9]9
В английском это одно и то же слово – option.
[Закрыть] Ты хочешь сказать, что они выберут один из участков и откажутся от остальных?
– Можно мне? – обратился брат Клеменс к брату Декстеру.
– Конечно.
– Опцион, говоря юридическим языком – это взаимообязывающее соглашение о совершении сделки, – объяснил брат Клеменс брату Оливеру. – Например, я мог бы сказать, что хочу купить у вас… – брат Клеменс запнулся, нахмурив брови. – Вы ничем не владеете. – Сказав это, он оглядел остальных и добавил: – Никто из нас ничем не владеет.
– Может, мне стоит попробовать, – предложил брат Декстер.
– Пожалуйста, – уступил брат Клеменс.
Брат Декстер обратился к брату Оливеру:
– Допустим, вы владеете креслом, в котором сидите.
Брат Оливер выглядел сомневающимся, но готовым допустить этот факт.
– Хорошо, – согласился он.
– Допустим, – продолжал брат Декстер развивать свою фантазию, – мы все владеем стульями, на которых сидим.
Брат Оливер пристально посмотрел на нас. Я стойко выдержал его взгляд, стараясь представить себя владельцем стула, на котором я сижу. Все еще сомневаясь, но уже заинтересованно, брат Оливер произнес:
– Хорошо.
– А теперь предположим, – сказал брат Декстер, вступая на тонкий лед, – что я хочу владеть всеми стульями.
Брат Оливер направил на него полный изумления взгляд:
– Зачем?
Брат Декстер на мгновение растерялся, но затем наклонился над столом и сказал, как отрезал:
– По личным причинам.
– Да! – воскликнул брат Клеменс. Он явно уловил к чему клонит брат Декстер и был доволен формулировкой. Не сводя взгляда с брата Оливера, он указал пальцем в сторону брата Декстера и еще раз повторил: – По личным причинам! Потому что таково его желание. Ему хочется владеть всеми стульями!
– В этом-то все дело, – подтвердил брат Декстер.
Брат Оливер, явно находясь на грани отчаяния, посмотрел на него и спросил:
– Правда?
– Мне нужны все стулья, – продолжал брат Декстер. – Хотя некоторые их них не подойдут… эээ… для моих целей. Но нужны все. И вот я прихожу к вам, – он подался вперед, – и говорю, что хочу купить ваше кресло за пятьдесят долларов.
Брат Оливер выгнул шею, рассматривая свое кресло, представляющее собой прекрасный антикварный предмет мебели из резного дуба.
– Правда?
Брат Декстер не собирался отвлекаться, обсуждая достоинства мебели. Он продолжил развивать свою аналогию:
– Однако, я объясняю вам, что не могу воспользоваться вашим креслом, если не куплю все остальные стулья. Поэтому мы подписываем соглашение.
– Это соглашение и есть опцион, – вставил брат Клеменс.
– Да, – сказал брат Декстер. – Соглашение или опцион. В нем говорится, что в следующий понедельник я куплю ваше кресло за пятьдесят долларов, если мне удастся заключить подобные соглашения с владельцами остальных стульев. И я плачу вам пять долларов в качестве задатка. После подписания этого соглашения и получения пяти долларов, вы уже не сможете продать ваше кресло кому-то другому, даже если вам предложат лучшую цену. Если, например, брат Бенедикт явится завтра и предложит тысячу долларов за кресло – вы не сможете продать его ему.
Брат Оливер посмотрел на меня в бескрайнем изумлении:
– Тысячу долларов?
По какой-то причине я вспомнил свое вчерашнее долгое покаяние, на которое обратил внимание брат Оливер, и ощутил себя очень-очень виноватым. Кажется, я даже покраснел и уж точно опустил глаза.
Но брат Декстер не позволил отклониться от темы:
– Суть в том, – сказал он, – что, как только каждый из нас подписывает это соглашение или опцион, мы обязуемся продать наши стулья, если все прочие условия будут соблюдены к указанному сроку. А это – следующий понедельник.
– Похоже, – осторожно произнес брат Оливер, – некоторые детали происходящего начинают обретать смысл.
– Прекрасно, – сказал брат Декстер.
– Некоторые второстепенные детали, – добавил брат Оливер. – А теперь, если ты перейдешь со своей притчей от стульев к монастырям – я постараюсь последовать за тобой.
– Уверен, вам это удастся, – заверил аббата брат Декстер. – Люди Дворфмана – кстати, они называют компанию ДИМП, это сокращение от «Дворфман Инвестмент Менеджмент Партнерс» – так вот, эти люди из ДИМП…
– Люди из ДИМП?[10]10
Dimp созвучно с imp – «чертенок», «бес». Вероятно, это и вызвало неоднозначную реакцию брата Илария.
[Закрыть] – в голосе брата Илария звучало недоверие.
– Именно так они себя называют, – сказал брат Декстер.
– Ближе к делу, – сказал брат Оливер. – Я чувствую, что теряю нить.
– Конечно, – сказал брат Декстер. – Люди из ДИМП приобрели опционы на несколько участков земли в этом районе. В частности, на те, что заняты отелем «Альпеншток», нашим монастырем и тем зданием на углу где магазинчик с серебристой вывеской. Ну, вы знаете, о чем я.
– Боюсь, что знаю, – кивнул брат Оливер.
Магазин, о котором шла речь, с фасадом в стиле Баухауса,[11]11
Баухаус – архитектурная и художественно-промышленная школа, обозначившая основные принципы архитектуры двадцатого века.
[Закрыть] назывался бутик «Задок» и его профилем были женские брюки. Когда кому-нибудь из нашего братства доводилось выйти прогуляться, он почти всегда выбирал направление, противоположное этому магазину, независимо от конечной цели путешествия.
– Так вот, эти опционы, – продолжил брат Декстер, – истекают первого января. В то же время, если все необходимые участки будут приобретены, то сделка состоится.
– Я никак не пойму насчет «необходимых участков», – сказал брат Оливер. – Если кто-то покупает один участок земли – или один стул, если на то пошло – зачем ему покупать еще и другие?
– Из-за здания, которое они собираются построить. – Брат Декстер несколькими четкими жестами ладоней поделил столешницу на воображаемые участки. – Если они, например, купят участки земли по обе стороны от нашего монастыря, но не сам монастырь – они не смогут построить одно большое офисное здание.
– Мне вообще не нравятся большие офисные здания, – сказал брат Оливер.
– Никому не нравятся, – сказал брат Декстер. – Но, к сожалению, под строительство одного из них хотят использовать участок земли, на котором стоит наша обитель.
Обычно я старался не влезать в эти дискуссии со своим мнением, но минуту назад была затронута тема, которую я хотел бы обсудить поподробней.
– Брат Декстер, – сказал я, – правильно ли я понимаю, если они не получат опцион на каждый из необходимых им участков земли – сделка сорвется? В итоге они не купят монастырь и не построят на его месте офисное здание?




























