Текст книги " Знаменитый универсант Виктор Николаевич Сорока-Росинский. Страницы жизни"
Автор книги: Р. Шендерова
Жанр:
Биографии и мемуары
сообщить о нарушении
Текущая страница: 3 (всего у книги 12 страниц)
Небольшой вокзал. Окошечко кассы. Малютка-поезд с паровозом и несколькими пассажирскими вагончиками. Весь обслуживающий персонал – подростки среднего школьного возраста: начальник станции, кассиры, проводники, контролеры, машинист и его помощник, стрелочники, дежурные по станции – ребята в отлично сшитой форме железнодорожных работников, в фуражках, на плечах пиджаков – погоны со шпалами. Юные железнодорожники строго и старательно исполняли свои обязанности. Мы были восхищены! Смотрели во все глаза и на них, и на проплывающий за окнами пейзаж. Так и ехали, останавливаясь на каждой промежуточной станции.
Виктор Николаевич был очень доволен и железнодорожниками, и нами. Он говорил, что ребята с юных лет получают навыки серьезной работы, которая может в будущем стать их профессией. Нами учитель был доволен потому, что в воскресенье собрался почти весь класс, нам было интересно, мы живо разговаривали друг с другом, почтительно и кратко задавали вопросы обслуживающему персоналу. Виктор Николаевич сказал, что наша детская железная дорога – превосходный вариант слияния школьного и профессионального образования.
...В школе было пять параллельных седьмых классов. Наш – 7 «д». Не знаю, по чьей инициативе (может быть, самого Виктора Николаевича) было принято решение, что каждый старший класс (а мы и были старшими, школа в ту пору была неполной средней) по очереди выпускает стенгазету «Школьная жизнь». Ее вывешивали по понедельникам на стенде в актовом зале четвертого этажа. Газеты, даже школьные, выполнялись по трафарету: в центре верхней части ватманского листа – портрет И. В. Сталина. Передовица – о событиях в мире и стране. Две-три заметки – о жизни школы и выпускающего класса. В правом нижнем углу – «почтовый ящик», похожий на Мойдодыра, со словами: «Милые детки, пишите заметки в следующий номер нашей газетки!» и подпись: «7 "а" класс» или какой-либо иной.
Подходило время нашего 7 «д». За три недели до назначенного срока на общем собрании отряда Виктор Николаевич объявил, что газета – это очень серьезно. Избрали редколлегию – тех, кто хорошо рисовал, у кого был красивый почерк, кто грамотно писал, сочинял стихи, писал интересные изложения и сочинения. Главным редактором избрали Арину Леонтьеву, она удовлетворяла всем требованиям.
Художники потрудились на славу: сделали красивый, яркий, «броский» (слово Виктора Николаевича) заголовок – «Наша жизнь» на фоне прелестного, слегка туманного пейзажа Исаакиевской площади (она находилась в двух шагах от нашей школы). Заголовок был съемным. Далее – лист ватмана, заключенный в общую рамку, разделенный на четыре колонки строгими вертикальными линиями, аккуратно выполненными красками. В каждой колонке – от одной до трех заметок; каждая заметка заключена в отдельную рамку («дай рамку» – Виктор Николаевич), в начале каждой заметки – маленькая фотокарточка автора, в конце – имя и фамилия. О чем заметки? О самом важном в жизни школы и о жизни нашего класса: об успехах в учебе (особое внимание – успехам «ведомых»), о лучшем за неделю звене; отрывки из лучших сочинений, чьи-то стихи, рассказ о походе или поездке куда-то всем классом. Все кратко: имена, даты, факты. В правом нижнем углу – имена и фамилии ответственного редактора и всех членов редколлегии.
Наша газета произвела настоящий фурор. На каждой перемене и по окончании уроков целую неделю газету буквально облепляли читатели – учителя и ученицы пятых-седьмых классов. И так – каждый выпуск, каждый пятый понедельник всего учебного года. Менялись авторы («никаких монополий!» – Виктор Николаевич), события, острота стиля, стихотворные и прозаические строчки (у каждой свой талант), но тон нашей газеты был задан раз и навсегда. Не менялась редколлегия («работала добросовестно, с огоньком» – Виктор Николаевич). Заметки писали даже самые слабые из «ведомых». Их редактировали члены редколлегии, а если задача оказывалась «не по зубам» (Виктор Николаевич), призывались «ведущие». Получалось «очень прилично» (Виктор Николаевич). А «ведомые» видели в газете свои фотографии, читали свои заметки, свои имена и фамилии. Никто не был обойден, задвинут в угол.
В это же время мы начали издавать рукописный журнал «Проба пера». Здесь полностью помещались лучшие сочинения, стихи, рассказы, рецензии на увиденный кинофильм, спектакль, впечатления о походе-поездке по городу или за город, о прочитанной и до глубины души взволновавшей книге. Каждая статья сопровождалась фото автора и одной-двумя небольшими картинками из газет, старых журналов, открыток, иллюстрировавшими текст.
Элла Эппель не только великолепно декламировала стихи. Она и сама их писала. В одном стихотворении был изображен наш класс. В характере каждой девочки Элла подметила что-то особое, индиви дуальное. Вот крохотный отрывок, который я помню до сих пор: ...Горячо стихи читает Курицына – кипяток! Всех волнует, разжигает... Всех упрямей Умбденшток!..
Были там наши планы на будущее, рассуждения о выборе профессии, об общественной жизни.
Серьезная, начитанная, рассудительная, худенькая, маленькая, в очках с толстыми стеклами, Ирочка Дурнопейко буквально огорошила нас своей мечтой. Ира написала, что хочет быть шпионом. Не разведчиком, не контрразведчиком, именно шпионом. Эта профессия казалась Ире самой яркой, самой привлекательной. Училась Ира все больше на тройки, четверки и пятерки бывали редко. Но какая мечта! А я, рассуждая о своем будущем, видела себя историком, и не просто историком – профессором. Вот так и написала: хотела открыть свою Трою, прославиться, получить признание.
В журнале «Проба пера» жили наши души, воспитанные Виктором Николаевичем.
...Думаю, пришла пора рассказать об отношении педагогического коллектива к Сорока-Росинскому. Абсолютное большинство коллег откровенно ненавидело его за яркость, необычность, за собственную «методу» обучения, за блистательные результаты этой «методы», за любовь и уважение, которые к нему испытывал наш класс буквально с первых дней совместной работы. По-настоящему Виктора Николаевича поддерживала только Ольга Родионовна Струговщикова, преподававшая нам историю древнего мира и навсегда пленившая меня и историей, и древним миром. Ольга Родионовна была завучем начальных и средних классов, лицом официальным. Она рассказала нам, что Виктор Николаевич – необычный учитель, о нем и его школе двадцатых годов написана книга «Республика ШКИД» (в те дни запрещенная и изъятая из всех библиотек. Достать и прочесть эту книгу было невозможно).
Кое-кто из учителей (Валентина Васильевна Бабенко, Игорь Александрович Родионов – оба математики) тайно симпатизировали Виктору Николаевичу. Но директор школы Анна Ивановна Тимофеева, учительница истории Мария Федоровна Шпакова (Марфа, как мы ее называли) и кое-кто еще готовы были со света сжить нашего учителя.
Я уже упоминала, что мы – пятиклассницы – встретили Виктора Николаевича после его продолжительной болезни восторженными аплодисментами. Вскоре кому-то из нас удалось узнать, что 26 ноября – день его рождения. Мы решили сделать ему подарок. Собрали какие-то деньги – попросили у родителей, сэкономили на завтраках и других личных нуждах – и купили красивый фотоальбом в черном бархатном переплете. Арина Леонтьева своим идеальным почерком сделала дарственную надпись. 26 ноября я от лица всего класса поднесла на уроке подарок и сказала несколько хороших складных слов. Виктор Николаевич был искренне тронут и тепло благодарил нас.
Конечно, об этом узнали в учительской. Марфа вскоре остановила меня на перемене и спросила: «Шендерова (Марфа не признавала имен, только фамилии), правда ли, что ваш класс так поздравил Сорока-Росинского? Кто вас научил?» Я ответила, что нас никто не учил, что мы сами решили так поздравить Виктора Николаевича. «Ну, что ж, – сказала Марфа, – в следующий раз подарите вашему Сорока-Росинскому хоть шляпу с пером». Я, глубоко изумленная, молча смотрела на учительницу.
Несмотря на явное неодобрение учителей, и в следующие годы наш класс делал подарки в день рождения любимому учителю и классному руководителю. Мы очень старались, деньги копили заранее; подарки были красивые и нужные – вместительный портфель, тонкий стакан в ажурном подстаканнике. И Виктор Николаевич, и наш класс были одинаково счастливы. Учителя негодовали молча. Противостояние между нашим наставником и педагогическим коллективом было постоянным. Мы часто слышали: «Ох уж этот ваш Сорока-Росинский!» Сам учитель ничего нам не рассказывал – «не той марки» был человек.
Открыто никто из педагогов школы не выступал против методов Виктора Николаевича. А мелкие, хоть и болезненные укусы – что с ними поделаешь? Позже я услышала от своего учителя, что в его жизни были противостояния посильнее этого. Его могущественнейшим оппонентом выступила сама Н. К. Крупская. Но об этом – в свое время.
...Виктор Николаевич многое поручал мне самой. Праздновали какой-то юбилей Маяковского. Нужно было что-то «дать». Виктор Николаевич обещал «дать», но отозвал меня и сказал, что на торжестве его не будет, а я должна составить композицию по стихам А. С. Пушкина и придумать «мостик», связывающий судьбы и творчество этих поэтов. Ведь, по словам Маяковского, «после смерти нам стоять почти что рядом – Вы на "Пэ", а я на "Эм"». Я все продумала. Отобрала подходящие стихи Александра Сергеевича, каждое стихотворение поручила той однокласснице, что особенно хорошо его читала, себе назначила «Памятник». Продумала и придумала вводную прозаическую часть. Ничего не записывала, все держала «в уме». В назначенный час наш класс (пожалуй, уже седьмой) выступил отлично. Моя прозаическая часть, «мостик», произвела особое впечатление. Зрители бурно аплодировали. По окончании торжества Марфа и директриса буквально допрашивали меня, чтобы добиться признания, сколько времени я разучивала этот замечательный текст, составленный, по их твердому убеждению, Сорока-Росинским. Когда я сказала, что текст придумала сама, вовсе его не записывала, а Виктор Николаевич ничего не слышал из моих речей, они мне абсолютно не поверили.
А в классе мне доставалось от Виктора Николаевича замечаний больше, чем любой другой девочке – за каждый проступок. Мне постоянно напоминалось, что у меня никогда не должно быть «головокружения от успехов» (заглавие этой работы вождя всех времен и народов, посвященной, как я выяснила впоследствии, анализу колхозного строительства, очень нравилось Виктору Николаевичу). Когда в седьмом классе меня выбрали председателем совета дружины, Виктор Николаевич был откровенно недоволен. Я должна была принадлежать безраздельно своему классу. Кстати сказать, Виктора Николаевича не особенно радовало то, что я была круглой отличницей. Он считал, что у человека должны быть склонности либо к гуманитарным, либо к точным, либо к естественным наукам, и в области склонностей – успехи в учебе, «отлично». А со мной какой-то непорядок.
Виктор Николаевич, с его глубоким знанием детской психологии, очевидно, не догадывался, какая тяжесть была в моей душе. С момента прихода учителя школа, в которой я училась до самого 1954 года (школа была растущей, и мы – семиклассницы в 1951 году – в течение четырех лет были старшими: восьмиклассницами, девятиклассницами и, наконец, в 1954 году – первым выпуском десятиклассниц), разделилась для меня на две неравные части. Одна – светлая, прекрасная, увлекательная, где все время было заполнено какими-то интересными и чрезвычайно важными дела ми – это Виктор Николаевич и все, с ним связанное; другая казалась мне темной, угрюмой, отвратительной. В этой, второй, части были неплохие, а иногда хорошие учителя, интересные предметы. И тем не менее этой половины школьной жизни я терпеть не могла, а терпеть приходилось.
Так получилось, что я – обязательный участник, а нередко и руководитель буквально каждого дела, касающегося жизни класса, – стала предметом отчаянной ненависти некоторых своих одноклассниц. Мне и в голову никогда не приходило, что за каждым моим шагом, словом, жестом, взглядом внимательно наблюдают зоркие недоброжелательные глаза. Оля Эгле, как выяснилось, вела дневник, в который с точностью до мига заносила все мои «грехи». Апофеозом было вот что. На каком-то неважном уроке, может быть, на перемене, сидевшая за мной Люся Соловьева, хорошая, скромная девочка зачем-то расплела и снова заплела мои вполне приличные косы. Вскоре целая озлобленная стайка набросилась на меня с какими-то упреками – я, дескать, на особом положении, я «точно королева, у меня своя камеристка», на свет появился дневник, который Оля выразительно и злобно прочла. Бедная Люся просто не знала, что и делать. Она пыталась объяснить, что я не только не заставляла, но никогда не просила ее ни о каких услугах. Стоял дикий гам. В лицо мне летели ужасные обвинения и оскорбления. Прозвучало слово «жидовка». И тогда я в отчаянии ударила Олю по щеке. Воцарилась тишина. Оля зарыдала и в тот же день нажаловалась на меня Виктору Николаевичу. Он не стал меня слушать, сурово осудил мой скверный поступок перед всем классом. Сказал, что такое позволяли себе только фельдфебели. Я даже заболела с горя на несколько дней. Потом как-то все утихло, выровнялось. Спустя пятнадцать лет мы встретились с Олей в трамвае и говорили исключительно дружелюбно.
В отношении меня Виктор Николаевич был строг, суров, даже беспощаден. Подобно жене Цезаря, я должна была быть абсолютно безупречной. И все-таки, несмотря на особую строгость, учитель любил меня, доверял, заботился обо мне. Как-то после уроков в шестом классе он задержал меня и сказал: «Знаешь, Рива, я должен тебя предупредить: тебе достались очень неудобные для нашей жизни имя и фамилия. Ну, фамилию сменишь, когда выйдешь замуж. А имя во что бы то ни стало постарайся сменить в момент получения паспорта». Я ответила, что меня крестили Ириной. Он обрадовался: «Будем звать тебя Риной. Пусть все привыкнут».
И со следующего дня сам стал так меня называть, а за ним – и одноклассницы. Должна сказать, что из затеи ничего не вышло. Когда пришло время получать паспорт (в конце декабря 1952 года, в девятом классе), начальник паспортного стола мне категорически отказал. К более высокому начальству я не решилась обратиться. Так и осталась Ривой. И фамилию сохранила ту, «неудобную», с которой родилась. Могла ее сменить, но не захотела.
В седьмом классе он снова пришел ко мне в гости в день моего рождения, подарил две очаровательные хрустальные вазочки-салатницы и позолоченную чайную ложечку, украшенную червленым узором. На ложечке была маленькая этикетка из ювелирного магазина. Виктор Николаевич посоветовал подарком пока не пользоваться, этикетку не снимать. По его словам, эта вещица могла пригодиться «в минуту жизни трудную». Теперь эта ложечка – драгоценный сувенир моей семьи. Как и в первое посещение, был исключительно любезен, нашел отдельные добрые слова для каждого присутствующего, посидел не более двадцати минут, попрощался и ушел. И снова всех очаровал благородством манер, простотой, доброжелательностью.
Когда в шестнадцать лет у меня выявили подростковый туберкулез, Виктор Николаевич, уже не преподававший в нашем классе, как-то узнал об этом факте, был очень взволнован и дал мне двести рублей (в 1952 году это были для нашей семьи большие деньги) на фрукты. В семнадцать лет, за сутки до первого выпускного экзамена, я попала на операционный стол с прободной язвой двенадцатиперстной кишки. И снова учитель дал мне деньги на хорошее легкое питание после операции. А к выпускному вечеру подарил целых четыреста рублей на туфли. Туфли эти – лак с замшей на высоких каблуках – служили мне долго, сначала как выходные, потом как повседневные. Должна сказать, что за всю мою детскую и юношескую жизнь никто, кроме Сорока-Росинского, никогда не подарил мне ни одной копейки.

Серебряная ложечка – подарок на день рождения. 1950 г.
На двадцатилетие подарил столовый прибор – серебряные ложку и вилку, нож из нержавеющей стали с серебряной ручкой. Прибавил с доброй улыбкой: «Пора собирать тебе приданое». Эти сокровища хранятся в моей семье, а ножом мы постоянно пользуемся. Сталь отменная.
Говоря о том, что Виктор Николаевич, хоть и школил меня немилосердно, безусловно любил и заботился обо мне по-особому, я забыла рассказать вот о чем. В седьмом классе я вдруг решила, что пойду учиться на машинистку-стенографистку, овладею профессией и скоро смогу зарабатывать, помогать семье. Через некоторое время поделилась своими планами с Виктором Николаевичем. Даже мама ничего не знала! Виктор Николаевич внимательно выслушал меня и ответил: «Не делай глупостей. С твоими способностями ты обязана кончить среднюю школу, а затем – твое место в университете. Кому же там учиться, если не тебе». Больше о курсах стенографии и машинописи я не помышляла.
Среди его подопечных я несколько раз встречала Лиду, девушку моего возраста (я была уже студенткой), где-то работавшую. Однажды Лида вместе с моими подругами отмечала день рождения Виктора Николаевича. Нисколько не стеснялась нас, вела себя по-хозяйски, знала, где что лежит и стоит, накрывала на стол, прибирала. Она казалась старше нас, хотя мы были одногодки. Вскоре, когда я пришла одна, Виктор Николаевич рассказал, что Лида живет в очень неблагополучной семье, где все пьют, скандалят, ничуть ее не стесняясь ни в чем. Прибавил, что девушка она неплохая, но у него потихоньку «поворовывает». Я страшно негодовала, а он спокойно говорил, что у Лиды много добрых задатков, они перевесят дурные наклонности. Через некоторое время от Виктора Николаевича узнала, что Лиду он все-таки прогнал, так как она стала не «поворовывать», а унесла его деньги, чуть ли не всю пенсию. И еще через несколько месяцев я узнала, что Лида пришла к нему со своим женихом, очень приличным, призналась в своих грехах, просила прощения и пригласила Виктора Николаевича на свадьбу. Учитель был глубоко тронут, купил Лиде целое приданое, был на свадьбе. Судьба девушки устроилась хорошо, она выбралась из отвратительного родительского дома, семья мужа приняла ее подоброму. Вот тогда-то Виктор Николаевич сказал мне, что он очень любит делать подарки. «Пойми, Рива, дарить гораздо приятнее, чем получать подарки самому», – сказал учитель. Я в те годы понять этого никак не могла. Теперь понимаю.
И еще о школьных событиях с Виктором Николаевичем.
Вышел Указ Верховного Совета СССР о награждении учителей за многолетнюю самоотверженную работу орденами Ленина и Трудового Красного знамени. Помню, что в школе эти награды получили две-три учительницы, седые, благообразные и абсолютно никакие. А Виктор Николаевич не получил ничего. Мы побежали к Ольге Родионовне узнать, почему не награжден наш любимый учитель. Ведь ему уже за шестьдесят пять лет. Он так много и интересно работает, он столько знает, он все время и знания отдает нам. Ольга Родионовна, глядя куда-то вдаль, ответила, что Виктор Николаевич много лет преподавал в институте, а те учительницы – всегда в школе. Нам было больно и горько. Виктору Николаевичу – тоже. На торжественном собрании все хвалили, превозносили награжденных. Виктор Николаевич сидел прямо, молча. Многие из нас хорошо понимали, как ему тяжело: за всю жизнь Виктор Николаевич не получил от советской власти ни одной правительственной награды.
Но вот подошел к концу седьмой класс, третий год учебы у Виктора Николаевича. Класс хорошо сдал все экзамены. Мы закончили неполную среднюю школу. На праздничном собрании всех выпускниц, где нам вручали аттестаты, Виктор Николаевич произнес прекрасную прочувствованную речь (лучше всех учителей!), заканчивавшуюся словами: «Всегда и везде пойте своим голосом, пусть он негромкий, незвучный, но обязательно свой».
...Виктор Николаевич больше не мой учитель. Он взял себе три пятых класса (с 1949 года он работал еще и в методкабинете). Потом, позже, Виктор Николаевич рассказал мне, что двенадцать-четырнадцать лет – это самый лучший возраст для девочек, можно лепить характеры, как из воска фигурки. После четырнадцати девчонки начинают «невеститься», их головы забиты другими делами, с такими неинтересно.
Итак, я уже в восьмом классе той же 233-й школы. Из двух параллельных классов с французским языком создали один; учениц Виктора Николаевича там было всего двенадцать человек из тридцати шести. Многих девочек со вполне приличными оценками перевели в другую школу, самые сильные из «ведомых» пошли в техникумы, все остальные – в ремесленные училища. В своем 8 «б» мы – ученицы Виктора Николаевича – держались особняком. Нас побаивался наш классный руководитель, учитель русско го языка и литературы Самуил Абелевич. Он знал и любил предмет, но у него не было волшебного дара Виктора Николаевича.
Виктор Николаевич больше не мой учитель. Огромная пустота в душе. Чтобы ее заполнить, я пошла в школьный кабинет Эрмитажа изучать историю искусства Европы, начала петь в хоре при Доме учителя, разместившемся в Юсуповском дворце. Но вот однажды на перемене Виктор Николаевич подозвал меня и сообщил, что у него большая радость: он наконец-то получил отдельную комнату, пусть совсем крохотную – всего восемь квадратных метров в коммунальной квартире на Садовой (дом 86, квартира 4 – легко, по словам Виктора Николаевича, запомнить: 8-6-4). Он пригласил меня и еще по моему выбору четыре-пять моих подруг на новоселье! Я выбрала Арину Леонтьеву, Галю Григорьеву, Таню Троянкер, Риту Тимофееву. Вместе со мной – пятеро. Ах, какой это был праздник! И наш хозяин, и мы, его гостьи, были одинаково счастливы. Как красиво и вкусно он нас угощал: сначала немного рыбы, затем ветчина с зеленым горошком и маслинами, на десерт – рокфор. И вина в различных стопках, стопочках, рюмках разного калибра. Стопки и рюмки хрустальные, стопочки серебряные маленькие. Из них в начале застолья пили херес и мадеру (буквально по одному глоточку, но подержав во рту, чтобы хорошо распробовать), потом из рюмок побольше, под ветчину – грузинские вина. Их понемногу отхлебывали, предварительно нюхали, взбалтывали и снова нюхали, потом пили маленькими глотками, не торопясь. Виктор Николаевич объяснял, что водку пьют из небольших стопок, одним глотком, коньяк наливают на донышко широких бокалов, согревают в руках и отхлебывают понемногу, но ни водки, ни коньяка нам никогда не предлагал. К сыру в крошечные рюмки подал ликер и объяснил, что его не столько пьют, сколько лижут. Посуда была красивая – фарфор, темно-синий кобальт с золотым колоском, приборы – серебряные вилки, ножи из нержавеющей стали с серебряными ручками. Консервы: рыба, ветчина, горошек, маслины. Хлеб, черный и белый, изящно нарезанный, в корзиночке с салфеткой. Салфетка – у каждого прибора, а крохотный столик накрыт скатертью.
В этой милой комнатке я бывала регулярно много раз на протяжении девяти лет. Каждый год той же компанией – 26 ноября, в день рождения Виктора Николаевича. Мы всегда приносили ему какой-то небольшой подарок и торт, он от души благодарил.
А в другие дни – я одна, иногда с кем-то из младших сестер.
Но всегда нас ожидал праздничный стол и хозяин, полностью готовый к приему гостей – аккуратно выбритый, подстриженный и причесанный, сорочка с галстуком, пиджак застегнут на все пуговицы. Иногда пили кофе или какао со сгущенным молоком, на стол в таком случае подавалось печенье или сухарики. Грязную посуду мы всегда мыли и тщательно вытирали, Виктор Николаевич тут же ее расставлял по местам.
За два-три дня до прихода я, по просьбе Виктора Николаевича, звонила ему. В трубке раздавался знакомый голос: «Слушаю». Я называла себя. В ответ: «А, Рива, очень рад. Приходи (называл день и час)». Я никогда не опаздывала. Виктор Николаевич опозданий не терпел, считал их признаком плохого воспитания и дурного тона.

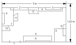
План комнаты Виктора Николаевича: 1 – дверь; 2 – окно с форточкой, шторой и подоконником; 3 – окно в глухую стену, плотно заставленное большим буфетом; 4 – большой высокий буфет; 5 – кровать, превращенная в тахту; 6 – ковер над кроватью; 7 – обеденный стол под клеенкой, служивший Виктору Николаевичу рабочим столом, здесь же он ел, когда был один; 8 – выдвижной столик-тумбочка, его использовали для приема гостей, перемещая между кроватью-тахтой и буфетом; 9 – две книжные полки; 10, 11, 12 – стулья.
Постараюсь описать эту дивную комнату, с которой связаны чудесные воспоминания. Она выходила двумя окнами во двор. Правое окно – в глухую стену, расположенную совсем рядом. Это окно навсегда было закрыто большим, вместительным, со многими ящиками и отделениями буфетом. По-моему, там хранилось все имущество Виктора Николаевича. Вдоль другой, параллельной стены стояла узкая кровать, покрытая ковром. Получалась тахта, на ней помещалось два-три человека. В левой короткой части комнаты – обеденный стол, покрытый клеенкой. Там Виктор Николаевич работал – писал, читал. Над столом – небольшая полка с книгами, толстыми тетрадями и фарфоровыми фигурками – персонажами «Мертвых душ» и «Ревизора». Виктор Николаевич сам купил этот набор, он был замечательно выполнен ленинградскими художниками. По правой короткой стенке маленькая тумбочка (она и служила гостевым столиком для «больших приемов»), ее можно было выдвинуть, точнее – вдвинуть или придвинуть к кровати. Над тумбочкой – еще одна полочка с толстыми тетрадями и маленьким бюстом А. В. Суворова. На рабочем столе – настольная лампа. Над кроватью – небольшой ковер, настенная лампа и иконка овальной формы в легкой деревянной рамке с изображением Михаила Архангела. Видя наше изумление (дети атеистического времени), Виктор Николаевич просто сказал, указывая на икону: «Это родительское благословение. Я с ним не расстаюсь». С потолка спускалась чрезвычайно симпатичная лампа – соединенные треугольником небольшие трубки дневного света, накрытые вместо абажура красивым крепдешиновым платком в крупную красно-сине-белую клетку. Возле рабочего стола – два стула, третий – между буфетом и подоконником «действующего окна. На окне – штора. На подоконнике и под ним – бутылки хороших марочных вин. Потом к ним присоединилось «Российское полусладкое», слегка газированное. Виктор Николаевич любил его, а еще более – купаж, который составлял из какого-либо грузинского и «Российского полусладкого». Иногда «Российское» добавлял к хересу или мадере.
За столом Виктор Николаевич был неизменно доброжелателен и вел себя не как наш наставник, учитель, воспитатель, а как исключительно радушный хозяин. И мы себя чувствовали свободно и уютно. Сорока-Росинский внимательно расспрашивал о каждой из нас, радовался нашим успехам, вникал в планы, поддерживал. Разговор не прерывался ни на миг. Учитель любил расспрашивать Арину о Новгороде (тогда его не называли Великим). В этом городе Виктор Николаевич учился и окончил гимназию, прекрасно знал героическую и трагическую историю новгородской земли. Любил достопримечательности этого города – Кремль, старинные фрески Феофана Грека, Юрьев монастырь, Ярославово Дворище, языческую Перынь, дивный Волхов.
Учитель искренне горевал, зная, как чудовищно прошлась по Новгороду война. Виктор Николаевич хорошо помнил, что у Арины есть близкие родственники в тех краях (все знал о нас!), она бывает там во время летних каникул, она – правдивый свидетель того, что осталось от города, как его восстанавливают. Слушая рассказы, мы в то же время учились пробовать и пить разные вина, есть закуски, пользоваться ножом. Заставил распробовать маслины и сделал их и рокфор моим лакомством навсегда. Много рассказывал о сырах – твердых, мягких, плавленых: откуда пошли, какие страны и в чем именно преуспели. Подавал фрукты – яблоки, мандарины.
Задушевные беседы Виктор Николаевич вел со мной одной. Из них я однажды узнала, что еще в 1953 году Виктор Николаевич оставил нашу школу и перешел совсем близко к дому, на Лермонтовский вблизи Садовой. А вскоре Виктор Николаевич рассказал мне, что вовсе оставил работу, вышел на пенсию. Сказал: «Понимаешь, Рива, я совсем плохо стал видеть. Даже у сидящих на первых партах вместо лиц вижу какие-то блины. Нельзя работать с классом, не видя лиц своих учеников». Но работать Виктор Николаевич не перестал. Он изобрел новинку – «орфографическое лото»; из школы, где преподавал в конце своей педагогической деятельности, по договоренности с учителем русского языка и завучем, ему присылали «партию из семи-восьми человек – абсолютных двоечников». С ними Виктор Николаевич играл в это лото в прихожей ежедневно по одному часу после их уроков до тех пор, пока они не переходили в разряд твердых троечников. Тогда Виктор Николаевич звонил в школу и просил «новую партию». «Мои идиотики» – так ласково называл «ведомых» Виктор Николаевич. Он был чрезвычайно увлечен своим лото, видел большую перспективу в его использовании, но никто не хотел вдуматься, перестроиться, внедрить новинку. Куда бы Виктор Николаевич ни обращался – не с просьбой, а с предложением взять его работу на апробацию, разумеется, без вознаграждения, – ни одна школа, ни один методический кабинет, ни одна кафедра русского языка не решились на эксперимент. Но Виктор Николаевич – внешне по крайней мере – не унывал, продолжал совершенствовать свое детище. Много писал, но никогда не рассказывал и не показывал мне своей работы. И лото я никогда не видала. «Тебе не нужно. Ты и так грамотная», – вот что я услышала в ответ на свою просьбу показать мне лото. Я не настаивала. Молода была и глупа. По словам А. С. Пушкина, «мы ленивы и нелюбопытны». Полностью отношу к себе в этом случае.
Говорили мы с Виктором Николаевичем о многом. О несчастной любви – он сказал: «Несчастной любви не бывает. Любить гораздо важнее, чем быть любимым». О возможности или невозможности любви с первого взгляда – Виктор Николаевич верил в такую возможность, рассказал, что однажды с площадки стоящего поезда он увидел на площадке встречного и тоже стоящего поезда женщину. Они обменялись такими взглядами, что он до сих пор – через сорок лет – помнит ее. Поезд тронулся, они не успели и не смогли вымолвить друг другу ни слова, только помахали друг другу рукой. Виктор Николаевич был уверен, что мимо прошла любовь.
На мой вопрос, любил ли он Эллу Андреевну, свою жену, Виктор Николаевич ответил, что они вступили в брак не по страстному чувству, а скорее по расчету. Элла Андреевна была его коллегой, другом, разделяла его вкусы и убеждения, они искренне симпатизировали друг другу, у них были нормальные прочные супружеские отношения, но страсти не было. У каждого позади было многое. У Эллы Андреевны – первый брак и дочь от него (муж умер, оставив ее молодой вдовой), встречи с другими мужчинами. У самого Виктора Николаевича было много встреч и связей, в том числе опасных. Одна из них чуть не упекла его за решетку – роман во вкусе Ф. М. Достоевского, любимейшего его писателя2. Говорили об одиночестве. Виктор Николаевич рассказал, что ему часто приходилось быть одному, теперь он привык, а раньше иногда и страдал. Этот рассказ я передаю как можно точнее: «В таком огромном городе, как Петербург, а ныне Ленинград, вокруг проходят ежедневно сотни и тысячи лиц, но ты всем чужой, никто не поздоровается, никому нет дела до тебя. Не то в Германии. Каждый вечер я приходил в одно и то же кафе, сидел за одним и тем же столиком. Видел, как добрые отцы семейств со своими фрау и киндер целые вечера проводят в этом кафе. Мужчины по глоточку отпивают пиво из огромных кружек, откусывают по кусочку сосиски на вилке и рассуждают о политике.








