Текст книги "Кладка печей своими руками"
Автор книги: Александр Шепелев
Жанр:
Хобби и ремесла
сообщить о нарушении
Текущая страница: 4 (всего у книги 16 страниц)
Подготовка к кладке печей
Общие сведения о кладке
Печную кладку надо выполнять очень прочно. Она должна иметь тонкие швы, вертикальные углы, горизонтальные ряды и гладкую поверхность.
Допускаются отклонения по вертикали на всю высоту печи не более 10 мм, неровности на лицевых сторонах печи – не более 5 мм, а облицованных изразцами – 2 мм.
Если под печь будет использован фундамент от старой печи, его обследуют и в случае необходимости ремонтируют. Когда строят новый фундамент, проверяют местоположение печи, ее разворот по отношению к стенам помещения, не мешают ли в этом случае потолочные балки или стропила для вывода трубы через перекрытие и крышу.
После проверки можно оставить печь в желаемом месте или перенести ее в такое место, чтобы не мешали ни балки перекрытия, ни стропила.
Форму и размер печи проверяют прави́лом, угольником, метром или шпагатом, натягиваемым по углам кладки (рис. 13). При раскладке подбирают кирпичи, проверяют, соблюдается ли перевязка швов, и учитывают их толщину. Только после этого весь ряд укладывают на растворе.

Рис. 13. Проверка закладки первого ряда кладки печи
Кладку проверяют по горизонтали, вертикали и боковым сторонам. Этого требует каждый ряд, на что затрачивается много времени (рис. 14).

Рис. 14. Проверка выполненной печной кладки
Хорошо класть печи в направляющих стойках, но еще лучше в передвижной опалубке-ящике без дна, который движется в стойках, установленных строго вертикально. Стойки и ящик должны быть тщательно выстроганы, чтобы по ним легче передвигалась опалубка. Ее можно сделать на один или несколько рядов кладки. Как только она будет заполнена кирпичной кладкой, ее поднимают на нужную высоту и закрепляют (рис. 15).

Рис. 15. Кладка печи в подвижной опалубке
Толщина швов печной кладки, выполненной из обыкновенного или красного кирпича, должна быть не более 3–5 мм, а из тугоплавкого и огнеупорного кирпича – 3 мм.
Толщина швов кладки труб на известковом или сложном растворе допускается до 10 мм.
Во всех случаях кладки горизонтальные и вертикальные швы должны быть полностью заполнены раствором. Через, толстые незаполненные швы легко вылетают искры, что может привести к пожару. Кроме того, в толстых швах часто образуются трещины, сквозь которые проникает в печь или дымовые каналы холодный воздух, охлаждающий горячие газы, нарушает тягу и образует дымление. По ходу кладки внутренние и наружные поверхности очищают от излишне выдавленного раствора, который снимают руками или кельмой, а внутренние поверхности топливников и каналов швабрят (протирают) мочальной кистью или мокрой тряпкой. Обмазывать глиняным раствором топливники и каналы категорически запрещается, так как он быстро отваливается и засоряет каналы.
Внутренние поверхности печей: дымовые каналы, топливники, трубы – следует выполнять как можно ровнее, без выступов, впадин и других неровностей, которые препятствуют хорошему движению газов и ухудшают работу печи. Все повороты и углы в каналах надо обязательно закруглять, а сужение или расширение кладки делать плавным, что повышает тягу.
Колосниковые решетки следует располагать ниже топочного отверстия на один-два ряда кладки (70-140 мм) с зазором между решеткой и кладкой по всему периметру не менее 5 мм. Если этого не сделать, то при нагревании расширяющийся металл расстроит кладку. Колосниковые решетки к тому же должны укладываться с наклоном в сторону дверки на 20–30 мм, что обеспечивает скатывание несгоревшего топлива от задней стенки на решетку. Прорези решетки всегда располагают вдоль топливника.
Плиты чугунные цельные или из отдельных элементов, применяемых в кухонных очагах или плитах, надо укладывать на тонком слое глиняного раствора по уровню.
Кирпич для кладки печи следует отсортировать. Самые хорошие кирпичи без трещин и отколотых мест применяют для топливников, дымовых каналов и сводов печи. Толщина кирпича должна быть одинаковой, что дает возможность получить самые тонкие швы.
Запрещается сколотую или стесанную сторону кирпича обращать внутрь топки или каналов, так как они менее прочны и от высокой температуры будут разрушаться, что пожароопасно.
Кладка печей способом замораживания запрещается. В холодное, особенно в зимнее, время растворы или материалы для их приготовления должны иметь температуру не ниже плюс 5 °C. Брать руками холодный раствор запрещается.
После кладки печь следует хорошо высушить естественным или искусственным путем. В процессе сушки все задвижки и вьюшки, а также форточки должны быть открыты круглые сутки. На такую сушку требуется примерно десять – двенадцать суток.
При искусственной сушке печь протапливают сухим топливом: стружкой, соломой, щепой, мелко колотыми дровами.
Первая закладка топлива не должна превышать 20–25 % от того количества, которое необходимо для нормальной топки. Для второй топки количество топлива повышают до 30–40 %, для третьей – до 60–70 % и т. д., то есть до полной нормы. После каждой топки все приборы печи открывают, температура наружной поверхности печи должна не превышать 50–60 °C.
Сушка считается законченной, когда на поверхности печи перестанут появляться сырые пятна, а на задвижке или вьюшке следы конденсата (воды).
Как известно, кирпич является основным материалом для кладки печей. Он состоит из шести сторон, каждая из которых имеет определенное название. Две самые большие поверхности кирпича – постели бывают нижней или верхней (при кладке находится вверху). Оставшиеся четыре стороны носят название граней. Из них две большие называются ложковыми и две малые – тычковыми. Острые ребра, образуемые гранями, – усенки. В зависимости от укладки кирпича ряды кладки в дальнейшем будут называться ложковыми или тычковыми.

Рис. 16. Кирпич и его части:
а – наименование граней кирпича; б – целый; в – трехчетверка; г – половинка; д – четверка; 1 – тычковая грань; 2 – верхняя постель; 3 – ребра (усенки); 4 – ложковая грань
Для перевязки швов и в зависимости от размера печи приходится применять целый кирпич и его части (рис. 16), при этом кладут кирпич по-разному (рис. 17).

Рис. 17. Укладка кирпича:
а – плашмя в полкирпича; б – на ребро в четверть кирпича; в – стоймя; г – хорошая перевязка швов
Стенки печи выкладывают разной толщины. Чтобы получить тонкие стенки, кладку выполняют на ребро или в четверть кирпича (рис. 18, а). Широко распространена кладка в половину кирпича, то есть с укладкой его плашмя (рис. 18, б). Такую же толщину кладки можно получить из двух четверок, укладывая кирпич на ребро (рис. 18, в). Кладку в три четверти кирпича выполняют в половину и в четверть кирпича, то есть на ребро (рис. 18, г).

Рис. 18. Печная кладка стенок разной толщины:
а – в четверть кирпича; б – в полкирпича (ложком); в – в полкирпича в две четверти; г – в 3/4 кирпича (полкирпича на ребро); д – в полкирпича (2/4 с полным перекрытием швов); е – в целый кирпич; ж – устройство замков в кладке
Кладку в половину кирпича с полным перекрытием швов ведут из двух четверок на ребро, но так, чтобы один ряд кладки находился на 5–6 см выше другого и швы одного ряда не совпадали со швами другого (рис. 18, д).
Стенки в один кирпич кладут поочередно из тычковых рядов, когда кирпичи уложены поперек стенки, и ложковых, когда кирпичи укладывают вдоль стенки. Для перевязки швов применяют трехчетверки (рис. 18, е).
Нередко внутри печей при устройстве дымовых каналов или для других целей кирпич укладывают на стальные полосы. В этом случае вставка металла нежелательна: расширяясь больше кирпича, металл разрушает кладку. Чтобы избежать этого, стальные полосы иногда кладут свободно, не закрывая их.
Во всех случаях при кладке стенок внутри печи их лучше всего крепить с наружными стенками «в замок». Это прочно и надежно (рис. 18, ж).
Каждый ряд кладки следует выполнять так, чтобы он перевязывался в швах половиной кирпича, а там, где применяют трехчетверки и половинки, допускается минимальная перевязка в четверть кирпича.
Размещение печей и определение их размеров
Размещение печейПрежде чем приступить к кладке печи, необходимо определить ее место в помещении. В любом здании печей и дымоходов должно быть как можно меньше, особенно в зданиях с внутренними стенами, в которых нельзя устраивать дымоходы.
Отопительные печи чаще всего подвигают ближе к капитальной внутренней стене и одновременно к входной двери, чтобы не носить топливо через всю комнату. Печи располагают ближе к углу помещения. Однако их устанавливают так, чтобы все поверхности могли отдавать тепло помещению и была возможность свободно осматривать печи и систематически убирать пыль. Чтобы не делать длинных перекидных рукавов для отвода дымовых газов, не следует ставить печь далеко от капитальной стены с дымоходами. Устанавливать их надо с открытыми отступками шириной не менее 150–200 мм. Закрытая отступка с вентиляционными отверстиями нежелательна, потому что примыкающая к стене стенка не отдает тепло, а собирающуюся пыль невозможно удалить.
Размещать печь в средней части стены нежелательно, так как она займет значительную часть полезной площади.
Установка в каждой комнате отдельной печи имеет свои преимущества, так как в теплое время не приходится топить все печи, а топят только те, которые необходимо.
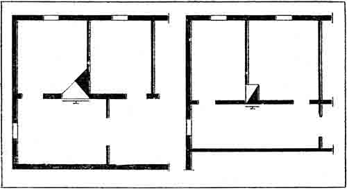
При коридорной планировке здания можно одну печь размещать так, чтобы она отапливала два соседних помещения и выходила топкой в коридор. Вместо коридора одной печью можно одновременно отапливать три комнаты. На рисунке 19 показан вариант размещения угловой и прямоугольной печей, отапливающих три комнаты.

Рис. 19. Установка угловой и прямоугольной печей, отапливающих три комнаты
В квартире для одной семьи желательно класть одну печь на две комнаты.
При всех случаях следует помнить о том, чтобы теплоотдача печей распределялась пропорционально теплопотерям каждого помещения.
Вариант размещения печи для отопления четырех комнат показан на рисунке 20. Такая печь имеет большие размеры и занимает много места. Кроме того, ее стенки выделяют тепло пропорционально потерям каждой комнаты. В этом случае две комнаты проходные.

Рис. 20. Установка одной печи для отапливания четырех комнат
В деревянных зданиях ограничен выбор мест установки печей. Там приходится применять насадные трубы. Печи с насадными трубами удобно размещать в любом месте, но следует предусмотреть, чтобы труба не попадала на балку перекрытия и стропила. Насадные трубы ставят только на массивных толстостенных печах. Тонкостенные печи в целях противопожарной безопасности не рекомендуется строить с насадными трубами.
Коренные трубы необходимы для отвода дымовых газов от кухонных очагов и одновременно дымовых газов от отопительных печей. Для этого в коренной трубе делают нужное количество вертикальных дымовых каналов, так называемых стояков (рис. 21).

Рис. 21. Подключение печей к коренной трубе:
1 – печи; 2 – коренная труба; 3 – вентиляционный канал; 4 – дымовые каналы

Рис. 22. Установка печей в комнатах дома и их подбор на теплоотдачу:
1, 2 – комнаты; 3 – кухня; 4 – прихожая
Рассмотренный вариант показывает целесообразность возведения коренной трубы в доме с тремя-четырьми комнатами.
Если в доме несколько комнат, каждую из которых занимает отдельная семья, желательно ставить столько печей, сколько имеется комнат.
Когда предусматривается кухня-столовая, то целесообразнее класть комбинированные отопительно-варочные печи с обязательным устройством вентиляции. Вообще надо всегда предусматривать вентиляцию комнат, кухни, санузла через вытяжные каналы, которые располагают рядом с дымоходами. Вытяжные каналы, нагреваясь от дымоходов, тем самым способствуют более интенсивной вентиляции. Для строительства индивидуальных домов имеется множество типовых проектов, в которых тщательно разработаны и подобраны всевозможные печи и указаны места их расположения.
Определение размеров печейРазмеры печей определяют или их подбирают на основании расчета теплопотерь отапливаемых помещений. Точный расчет теплопотерь сложен и его выполняют по специальному методу и имеющимся нормам, которые предусматривают, что теплоотдача печи при двух топках в сутки может быть на 15 % больше или меньше теплопотерь помещения.
При расчете отопления необходимо знать теплопотери всех видов конструкций дома: стен, дверей, оконных проемов, перекрытий, материалов, из которых сделаны стены, высоту, наружную температуру воздуха и др. При неправильном расчете или выборе печи она будет или много выделять тепла, или наоборот. Правильно выбранная печь должна соответствовать средней часовой теплоотдаче и такой же часовой теплопотере. Таким образом, количество теряемого помещением тепла должно соответственно возмещаться теплом, выделяемым печью.
Рассмотрим самые простейшие и приближенные способы определения размеров печей.
Пример 1. Зеркало печи, выходящей в отступку, дает в 2 раза меньше тепла, щитки от плиты – в 1,5 раза меньше, чем печи, поэтому их поверхность должна быть в 2–2,5 раза больше указанных данных
| Размер площади помещения при высоте помещения 3 м, кв. м | Поверхность печи в зависимости от размера помещения и температуры наружного воздуха (—25 °C), кв. м | |||
| неугловое | с одним углом | с двумя углами | прихожая | |
| 8 | 1,25 | 1,95 | 2,10 | 3,40 |
| 10 | 1,50 | 2,40 | 2,60 | 4,50 |
| 15 | 2,30 | 3,40 | 3,90 | 6,00 |
| 20 | 3,20 | 4,60 | 5,20 | — |
| 30 | 4,60 | 6,90 | 7,80 | — |
Пример 2. В этом расчете печи подбирают по кубатуре здания, которую определяют по наружному периметру с последующим умножением на 21. Это число является количеством тепла в килокалориях, требуемых для обогрева 1 куб. м здания до температуры плюс 18 °C и при наружной температуре воздуха до минус 30 °C.
По вышеприведенным данным находят потребную теплоотдачу печи.
В нашем случае имеется дом размером по наружному обмеру 6,6x7,4 м, высота помещения 3 м. Стены кирпичные, толщиной 540 мм. В доме имеются две жилые комнаты 1, 2, кухня 3 и прихожая 4 (рис. 22).
Рассмотрим подбор печи для кухни и прихожей:
объем кухни 54,39 куб. м. (3,7х4,0х3,0)
объем прихожей 18,87 куб. м. (3,7х1,7x3,0)
Всего 73,26 куб. м.
Рассчитаем теплоотдачу печи: 73,26х21=1538 ккал/ч.
Каждый квадратный метр зеркала печи излучает в среднем 300 ккал/ч. Для определения площади нагрева печи необходимо 1538 ккал/ч разделить на 300, получаем 5,1 кв. м. Эту цифру можно округлить до 5 кв. м или повысить до 5,2–5,4 кв. м.
Чтобы найти размеры печи, следует имеющуюся площадь зеркал печи разделить на активную высоту печи, то есть ту высоту, которая нагревается. В данном случае она равняется 2,2 м. После деления площади зеркала печи на ее высоту получаем периметр печи 5,1:2,2=2,3 м (округленно 2,5 м).
Полученный периметр печи делим на два и получаем две стороны печи, то есть длину и ширину, вместе взятые они будут равны 1,15 м (2,3:2). Если ширина печи 510 мм, то ее длина должна быть 640 мм, а в плане 510x640 мм.
Таким образом, воспользовавшись этим примером, можно подобрать размер печи для любого помещения. Необходимо указать, что кроме печи в кухне имеется плита, которая может выделять при двух топках в сутки от 600 до 900 ккал/ч.
Конечно, вместо печи можно поставить к плите отопительный щиток, работающий от плиты, выделяя до 1200 ккал/ч. Имеются щитки с плитой и с отдельной топкой, тогда их теплоотдача еще выше.
Если печь ставят в районах, где наружная температура в зимнее время достигает минус 50 °C, можно рассчитать размер печи по третьему примеру.
Пример 3. Рассмотрены дома из разных материалов с различной минусовой температурой. Как было сказано выше, расчеты теплопотерь помещением весьма сложны и в данном случае они даются приближенно.
Из данных таблицы 2 видно, что теплопотери стен при различной температуре неодинаковы.
Поэтому при расчетах (свыше —31 °C) на каждые два градуса прибавляются три единицы.
Таблица 2. Удельные теплопотери для основных охлаждающихся поверхностей в жилых зданиях
| Вид стен и охлаждающиеся поверхности | Количество теряемого тепла (ккал/ч) через 1 кв. м поверхности по ее внутреннему обмеру при средней температуре наиболее холодной пятидневки | |||
| 24—25 °C | 26—27 °C | 28—29 °C | 30—31 °C | |
| Кирпичная стена толщиной в 3,5 кирпича (93 см), оштукатуренная с двух сторон | ||||
| Первый этаж и одноэтажные здания: | ||||
| помещения угловые | 53 | 57 | 60 | 61 |
| помещения, смежные с другими | 48 | 51 | 53 | 55 |
| Верхний и промежуточные этажи: | ||||
| помещения угловые | 47 | 50 | 53 | 54 |
| помещения, смежные с другими | 43 | 45 | 47 | 48 |
| Кирпичная стена толщиной в 3 кирпича (80 см), оштукатуренная с двух сторон | ||||
| Первый этаж и одноэтажные здания: | ||||
| помещения угловые | 57 | 61 | 64 | 65 |
| помещения, смежные с другими | 55 | 58 | 61 | 62 |
| Верхний и промежуточные этажи: | ||||
| помещения угловые | 53 | 56 | 59 | 60 |
| помещения, смежные с другими | 49 | 52 | 54 | 55 |
| Кирпичная стена толщиной в 2,5 кирпича (67 см), оштукатуренная с двух сторон | ||||
| Первый этаж и одноэтажные здания: | ||||
| помещения угловые | 65 | 71 | 74 | 76 |
| помещения, смежные с другими | 64 | 69 | 71 | 73 |
| Верхний и промежуточные этажи: | ||||
| помещения угловые | 60 | 64 | 67 | 68 |
| помещения, смежные с другими | 57 | 61 | 64 | 65 |
| Кирпичная стена толщиной в 2 кирпича (54 см), оштукатуренная с двух сторон | ||||
| Первый этаж и одноэтажные здания: | ||||
| помещения угловые | 78 | 83 | 87 | 89 |
| помещения, смежные с другими | 77 | 82 | 86 | 87 |
| Верхний и промежуточные этажи: | ||||
| помещения угловые | 70 | 75 | 78 | 80 |
| помещения, смежные с другими | 68 | 74 | 76 | 78 |
| Деревянная рубленая стена из бревен толщиной 20 см, с односторонней штукатуркой | ||||
| Первый этаж и одноэтажные здания: | ||||
| помещения угловые | 67 | 71 | 75 | 76 |
| помещения, смежные с другими | 65 | 69 | 72 | 74 |
| Верхний и промежуточные этажи: | ||||
| помещения угловые | 59 | 64 | 67 | 68 |
| помещения, смежные с другими | 57 | 62 | 64 | 66 |
| Деревянная рубленая стена из бревен толщиной 25 см, с односторонней штукатуркой | ||||
| Первый этаж и одноэтажные здания: | ||||
| помещения угловые | 52 | 56 | 58 | 60 |
| помещения, смежные с другими | 51 | 54 | 57 | 58 |
| Верхний и промежуточные этажи: | ||||
| помещения угловые | 47 | 50 | 52 | 53 |
| помещения, смежные с другими | 45 | 48 | 50 | 51 |
| Деревянная брусковая стена с односторонней штукатуркой общей толщиной 12 см | ||||
| Первый этаж и одноэтажные здания: | ||||
| помещения угловые | 75 | 80 | 84 | 86 |
| помещения, смежные с другими | 73 | 78 | 82 | 84 |
| Верхний и промежуточные этажи: | ||||
| помещения угловые | 67 | 71 | 74 | 76 |
| помещения, смежные с другими | 65 | 70 | 73 | 75 |
| Деревянная брусковая стена с односторонней штукатуркой общей толщиной 20 см | ||||
| Первый этаж и одноэтажные здания: | ||||
| помещения угловые | 47 | 50 | 52 | 53 |
| помещения, смежные с другими | 46 | 49 | 51 | 52 |
| Верхний и промежуточные этажи: | ||||
| помещения угловые | 42 | 45 | 46 | 47 |
| помещения, смежные с другими | 41 | 44 | 46 | 47 |
| Окна с двойным остеклением (переплетами) и балконные двери | 100 | 108 | 112 | 115 |
| Двери сплошные деревянные двойные | 175 | 187 | 195 | 200 |
| Чердачное перекрытие | 26 | 28 | 29 | 30 |
| Деревянные утепленные полы над подвалом или подпольем | 19 | 21 | 22 | 23 |
Примечание. При определении теплопотерь через поверхности, выходящие в неотапливаемые помещения, количество тепла, приведенное в таблице, умножают на 0,7, если последние выходят наружу (неотапливаемые лестничные клетки), и на 0,4, если неотапливаемые помещения не имеют указанного сообщения.
Если при этом теплоотдача печи и будет немного выше, то в этом нет большой ошибки.
Следует напомнить, что в примере подбора печей по этой таблице опущена проверка на амплитуду колебания и другие данные.
Пример 4. Рассмотрим способ определения тепловых потерь и подбор печи для одноэтажного рубленого дома из бревен толщиной 25 см, с односторонней штукатуркой, деревянными перегородками, оштукатуренными с двух сторон, с полом, утепленным над подвалом, окном из двух остекленных переплетов (двойное остекление). Комната угловая площадью 9 кв. м. Внутренний размер комнаты: высота – 3 м, длина каждой стены – 3, ширина окна – 1, высота его – 1,7 м.
Удельные теплопотери на 1 кв. м поверхности, согласно данным таблицы, составят в данном случае: для деревянной стены рубленой толщиной 25 см, оштукатуренной в угловых помещениях, – 52 ккал/ч на 1 кв. м, для окна с двойным остеклением – 100 ккал/ч на 1 кв. м, для чердачного перекрытия (потолка) – 26 ккал/ч на 1 кв. м, для утепленного пола – 19 ккал/ч на 1 кв. м.
Охлаждающие поверхности:
наружные стены (две) (3,0+3,0)х3,0―1,7=16,3 кв. м.
пол 3,0х3,0=9,0 кв. м.
потолок 3,0х3,0=9,0 кв. м.
окно 1,0х1,7=1,7 кв. м.
Общие теплопотери комнаты составят, ккал/ч:
через наружные стены 16,3x52=848;
через пол 9,0х19,0=171;
через потолок 9,0х26=234;
через окно 1,7х100=170;
Всего 1423.
Для такого расхода тепла нужна печь с теплоотдачей 1500 ккал/ч или несколько большая. Может быть принята печь отопительная, прямоугольная оштукатуренная, размером 510х770 мм, с теплоотдачей при двух топках в сутки 1760 ккал/ч (см. соответствующий раздел). Если эта печь будет отстоять всеми своими стенками от стены или перегородки и они будут полностью отдавать тепло, то она несколько больше допустимых процентов, указанных в нормах. Когда одна стенка или будет выходить в другое помещение (комнату), или же иметь небольшую отступку от перегородки, то печь полностью отвечает расчету. Напоминаем, что у этой печи передняя и задняя стенки выделяют по 340 ккал/ч, а левая и правая – по 540 ккал/ч.



























