Текст книги "Самоучитель AutoCAD 2010"
Автор книги: Александр Жадаев
Жанр:
Программное обеспечение
сообщить о нарушении
Текущая страница: 6 (всего у книги 18 страниц) [доступный отрывок для чтения: 7 страниц]
3.6. Настройка привязки и сетки
Режим Snap (Привязка) используется для перемещения курсора с фиксированным шагом по невидимой сетке, что облегчает позиционирование. По желанию можно включить отображение сетки, включив режим Grid (Сетка). Невидимая и видимая сетки могут совпадать или не совпадать, в зависимости от настройки шага.
1. Щелкните мышью по кнопке с логотипом в левом верхнем углу окна программы, чтобы открыть браузер-меню.
2. В браузер-меню выберите пункт Tools (Инструменты).
3. В открывшемся подменю выберите команду Drafting Settings (Настройки черчения). Откроется диалог Drafting Settings (Настройки черчения) (рис. 3.16).

Рис. 3.16. Диалог Drafting Settings (Настройки черчения)
За настройку режимов привязки и сетки отвечает вкладка Snap and Grid (Привязка и сетка).
4. Перейдите на вкладку Snap and Grid (Привязка и сетка) диалога Drafting Settings (Настройки черчения), щелкнув по ее названию.
Флажок Snap On (Включить привязку) включает или выключает режим привязки. Напомним, что вы можете также использовать кнопку

в строке состояния или клавишу F9 для включения или выключения привязки.
Флажок Grid On (Включить сетку) включает или выключает режим отображения сетки. Напомним, что вы можете также использовать кнопку

в строке состояния или клавишу F7 для включения или выключения привязки.
5. Установите флажок Snap On (Включить привязку).
6. Установите флажок Grid On (Включить сетку).
Группа элементов управления Snap spacing (Шаг привязки) используется для настройки режима привязки.
• Поле Snap X spacing (Шаг по оси X) указывает шаг по оси X или ширину ячейки невидимой сетки в миллиметрах.
• Поле Snap Y spacing (Шаг по оси Y) указывает шаг по оси Y или высоту ячейки невидимой сетки в миллиметрах.
• Флажок Equal X and Y spacing (Равный шаг по осям) включает или выключает режим равного шага по обеим осям.
7. Установите флажок Equal X and Y spacing (Равный шаг по осям).
8. Введите ширину шага 10 мм в поле Snap X spacing (Шаг по оси X). Шаг по оси Y установится автоматически.
Группа элементов управления Grid spacing (Шаг привязки) используется для настройки режима сетки.
• Поле Grid X spacing (Шаг по оси X) указывает шаг по оси X или ширину ячейки видимой сетки в миллиметрах.
• Поле Grid Y spacing (Шаг по оси Y) указывает шаг по оси Y или высоту ячейки видимой сетки в миллиметрах.
• Поле Major line every (Частота основных линий) указывает, через сколько ячеек выводится основная линия сетки.
9. Установите значение поля Grid X spacing (Шаг по оси X), равное 10.
10. Установите значение поля Grid Y spacing (Шаг по оси Y), равное 10.
Группа элементов управления Grid behaviour (Поведение сетки) используется для настройки поведения сетки при выполнении других команд.
• Флажок Adaptive grid (Адаптивная сетка) включает режим ограничения плотности линий сетки при уменьшении масштаба.
• Флажок Allow subdivision below grid spacing (Разрешить дополнительные линии) включает режим, при котором выводятся дополнительные линии сетки при увеличении масштаба.
• Флажок Display grid beyond Limits (Показывать сетку в пределах границ) включает режим отображения сетки только в пределах границ чертежа, установленных командой LIMITS (см. раздел 3.3 «Установка границ чертежа»).
• Флажок Follow dynamic UCS (Следовать динамической ПСК) включает режим соответствия осей сетки пользовательской системе координат.
11. Установите флажок Display grid beyond Limits (Показывать сетку в пределах границ).
12. Нажмите кнопку OK, чтобы сохранить изменения и закрыть диалог.
Теперь все готово к тому, чтобы начать создание основной надписи чертежа.
3.7. Создание рамки
Размеры и порядок заполнения основных надписей конструкторских документов регламентируются стандартом ГОСТ 2.104-68 «Основные надписи». Мы будем использовать форму 1 по ГОСТу «Основная надпись для чертежей и схем».
Вначале выполним внешнюю рамку чертежа.
1. На вкладке ленты Home (Главная) на панели Layers (Слои) проверьте, чтобы в выпадающем списке Layer Control (Управление слоем) был выбран слой Work (рис. 3.17).

Рис. 3.17. Выпадающий список Layer Control (Управление слоем)
2. Включите режим динамического ввода, нажав на кнопку Dynamic Input (Динамический ввод)

в строке состояния так, чтобы кнопка стала освещенной.
3. Включите режим Ortho (Ортогональный), нажав на кнопку

в строке состояния так, чтобы кнопка стала освещенной.
4. На вкладке ленты Home (Главная) на панели Draw (рисование) выберите команду Line (Линия)

5. Переведите курсор в рабочую область. Рядом с курсором появится приглашение динамического ввода (рис. 3.18).

Рис. 3.18. Приглашение динамического ввода
Вы видите подсказку, что система ожидает координаты первой точки, и координаты текущего положения курсора. Если сейчас вы щелкнете курсором в рабочей области, то точка будет принята за начальную точку линии. Однако более точен ввод значений координат с клавиатуры.
6. Введите с клавиатуры координаты первой точки: 0,0. Значения координат в приглашении изменились на введенные.
7. Нажмите клавишу Enter. Вы увидите предполагаемый вариант построения линии (рис. 3.19).

Рис. 3.19. Построение линии
Точка начала построения линии зафиксирована. Вам предлагается установить вторую точку. Угол построения изменяется движением курсора вправо и влево, но только на угол, кратный 90 градусам, так как включен режим Ortho (Ортогональный). Длину линии тоже можно изменять движениями курсора, но при включенной привязке с шагом в 10 мм не удастся указать точку с координатами 0,297. Поэтому длину линии мы укажем с клавиатуры.
8. Введите длину линии 297.
9. Нажмите клавишу Enter. Вычерченная линия, в отличие от предполагаемой, отображается цветом слоя.
10. Отведите курсор мыши вправо, чтобы указать угол в 0°.
11. Введите длину 420 и нажмите клавишу Enter.
12. Отведите курсор вниз, чтобы указать угол в 90°.
13. Введите длину 297 и нажмите клавишу Enter.
14. Введите символ C в английской раскладке клавиатуры. Это первая буква команды Close (Закрыть), которая соединяет первую и конечную точки группы линий.
Совет
В системе AutoCAD можно для повышения эффективности работы использовать только первые буквы наиболее распространенных команд.
15. Нажмите клавишу Enter.
На экране появился замкнутый прямоугольник, который и является внешней рамкой. Теперь построим внутреннюю рамку.
1. В выпадающем списке Layer Control (Управление слоем) (см. рис. 3.17) панели Layers (Слои) вкладки Home (Главная) ленты выберите слой Main.
2. На вкладке ленты Home (Главная) на панели Draw (рисование) выберите команду Line (Линия).
3. Введите с клавиатуры координаты первой точки: 20,5.
4. Нажмите клавишу Enter.
5. Отведите курсор мыши вверх, чтобы указать угол в 90°.
6. Введите длину линии 287 и нажмите клавишу Enter.
7. Отведите курсор мыши вправо, чтобы указать угол в 0°.
8. Введите длину 395 и нажмите клавишу Enter.
9. Отведите курсор вниз, чтобы указать угол в 90°.
10. Введите длину 287 и нажмите клавишу Enter.
11. Введите символ С, чтобы соединить первую и четвертую точки, и нажмите Enter.
На экране будет поэтапно появляться прямоугольник в линиях красного цвета, являющийся внутренней рамкой формата.
Совет
Для вызова команды вычерчивания линии из командной строки используйте команду LINE.
В системе AutoCAD используются абсолютные и относительные координаты. Абсолютные координаты вводятся через запятую и отсчитываются от точки начала координат. Такие координаты мы использовали при задании первых точек линий при построении рамок.
Относительные координаты отсчитываются от последней заданной точки. При вводе в командную строку перед ними ставится символ @ (например, @420,297). При использовании динамического ввода возможно задание только одной относительной координаты и направления, что мы и делали при построении рамок.
Для вычерчивания остальных линий основной надписи можно, конечно, тоже применить команду Line (Линия), но можно воспользоваться тем, что все линии основной надписи параллельны рамке, и использовать команду Offset (Смещение).
1. Отключите режим привязки, нажав клавишу F9.
2. На панели Modify (Изменить) вкладки Home (Главная) ленты выберите команду Offset (Смещение)

3. Укажите отступ, введя с клавиатуры 185.
4. Нажмите клавишу Enter. Отступ принят, курсор изменит свой вид.
5. Щелкните по правой границе внутренней рамки, чтобы выбрать объект переноса.
6. Теперь щелкните слева от выбранной линии, чтобы указать направление переноса.
7. Нажмите клавишу Enter, чтобы выйти из режима команды.
8. Появилась линия, параллельная правой границе внутренней рамки и отстоящая от нее на 185 мм. Слой созданной линии совпадает со слоем исходной линии.
Совет
Для вызова команды смещения из командной строки используйте команду OFFSET.
9. Нажмите клавишу Enter, чтобы повторить команду Offset (Смещение).
10. Введите с клавиатуры отступ 55 и нажмите клавишу Enter.
11. Щелкните по нижней границе внутренней рамки.
12. Щелкните выше выбранной линии, чтобы указать направление смещения, и нажмите клавишу Enter.
Теперь необходимо обрезать лишние части линий, чтобы оставить только прямоугольную рамку в углу формата. Для этого мы используем команду Chamfer (Фаска) с нулевым углом.
13. На панели Modify (Изменить) вкладки Home (Главная) ленты выберите команду Chamfer (Фаска)

14. Нажмите на клавиатуре клавишу ↓ Откроется меню опций команды (рис. 3.20).

Рис. 3.20. Меню опций команды Chamfer (Фаска)
15. Выберите пункт Trim (Обрезать).
16. Введите символ T и нажмите клавишу Enter. Теперь команда выполняется в режиме обрезки.
17. Нажмите на клавиатуре клавишу ↓.
18. В появившемся меню выберите пункт Angle (Угол), чтобы задать угол фаски.
19. Введите 0, чтобы задать длину фаски, и нажмите клавишу Enter.
20. Еще раз введите 0, чтобы задать угол фаски, и нажмите клавишу Enter.
21. Укажите первую линию для создания фаски, щелкнув по созданной горизонтальной линии справа от пересечения.
22. Укажите вторую линию, щелкнув по созданной вертикальной линии ниже пересечения.
23. Нажмите клавишу Enter.
Совет
Для вызова команды вычерчивания фаски из командной строки используйте команду CHAMFER.
Таким же образом продолжаем вычерчивать поля основной надписи.
1. Выберите команду Offset (Смещение).
2. Введите значение отступа 17 и нажмите Enter.
3. Выделите левую вертикальную границу созданного прямоугольника и щелкните правее выбранной линии.
4. Нажмите Enter для выхода из команды.
5. Нажмите Enter для повторения команды Offset (Смещение).
6. Введите значение отступа 23 и нажмите Enter.
7. Выделите последнюю созданную линию и щелкните справа от нее.
8. Нажмите Enter для выхода из команды.
9. Нажмите Enter для повторения команды Offset (Смещение).
10. Введите значение отступа 15 и нажмите Enter.
11. Выделите последнюю созданную линию и щелкните справа от нее.
12. Нажмите Enter для выхода из команды.
13. Нажмите Enter для повторения команды Offset (Смещение).
14. Введите значение отступа 10 и нажмите Enter.
15. Выделите последнюю созданную линию и щелкните справа от нее.
16. Нажмите Enter для выхода из команды.
17. Нажмите Enter для повторения команды Offset (Смещение).
18. Введите значение отступа 15 и нажмите Enter.
19. Выделите верхнюю границу прямоугольника и щелкните ниже нее.
20. Нажмите Enter для выхода из команды.
Последнюю созданную линию необходимо обрезать. Для этого можно использовать команду Trim (Обрезка).
21. На панели Modify (Изменить) вкладки Home (Главная) ленты выберите команду Trim (Обрезка)

Вначале необходимо выбрать ограничивающие линии для обрезки, а потом часть линии, которую надо обрезать.
22. Выберите последнюю созданную вертикальную линию и нажмите Enter.
23. Выберите часть последней созданной горизонтальной линии, которую нужно обрезать, и нажмите Enter.
Горизонтальная линия обрезана до ограничивающей линии.
Совет
Для вызова команды обрезки из командной строки используйте команду Trim.
24. Выберите команду Offset (Смещение).
25. Введите значение отступа 25 и нажмите Enter.
26. Выделите последнюю созданную горизонтальную линию и щелкните ниже нее.
27. Нажмите Enter для выхода из команды.
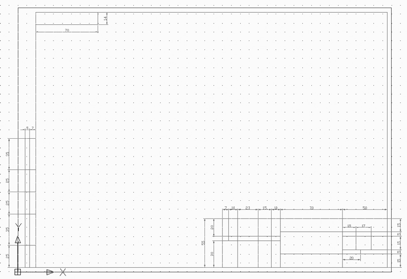
Мы создали часть полей для основной надписи (рис. 3.21).

Рис. 3.21. Текущий этап выполнения основной надписи
28. Выберите команду Offset (Смещение).
29. Введите значение отступа 7 и нажмите Enter.
30. Выделите левую границу внутренней рамки и щелкните левее выбранной линии.
31. Нажмите Enter для выхода из команды.
32. Выберите команду Offset (Смещение).
33. Введите значение отступа 5 и нажмите Enter.
34. Выделите последнюю созданную линию и щелкните левее выбранной линии.
35. Нажмите Enter для выхода из команды.
Теперь нам потребуется команда Extend (Растянуть), которая позволяет продлить линию до указанного объекта.
36. На панели Modify (Изменить) вкладки Home (Главная) ленты выберите команду Extend (Растянуть)

37. Щелкните по последней созданной вертикальной линии и нажмите Enter.
38. Щелкните по нижней границе внутренней рамки и нажмите Enter.
Вы можете видеть, что нижняя граница рамки продлилась до созданных нами ранее линий.
Совет
Для вызова команды растяжения из командной строки используйте команду EXTEND.
39. Используя команды Offset (Смещение), Trim (Обрезка), Chamfer (Фаска), выполните оставшиеся основные линии рамки (рис. 3.22).

Рис. 3.22. Линии основной надписи в слое Main
Совет
Если у вас возникают сложности с вычерчиванием нужной линии с помощью указанных выше команд, вы можете воспользоваться командой Line (Линия), работу с которой мы детально рассмотрели ранее.
Теперь вычертим оставшиеся поля в тонких линиях.
1. В выпадающем списке Layer Control (Управление слоем) (см. рис. 3.17) панели Layers (Слои) вкладки Home (Главная) ленты выберите слой Work.
Сейчас мы на примере рассмотрим создание линии из командной строки.
2. В командной строке введите команду LINE и нажмите кнопку Enter.
3. Введите абсолютные координаты первой точки: 230,10. Нажмите кнопку Enter.
4. Введите относительные координаты второй точки: @65,0. Нажмите дважды кнопку Enter.
5. Линия создана, и теперь ее можно скопировать с помощью команды Offset (Смещение).
6. Выберите команду Offset (Смещение).
7. Введите значение отступа 5.
8. Выберите созданную линию и щелкните выше нее. Появится новая линия.
9. Выберите новую линию и щелкните выше нее. Так как линии располагаются с одинаковым отступом, можно продолжать копирование без выхода из команды.
10. Таким же образом создайте еще три линии.
11. Нажмите кнопку Enter для выхода из команды.
12. Нажмите кнопку Enter для повторения команды.
13. Введите значение отступа 15.
14. Выберите последнюю созданную линию и щелкните выше нее.
15. Нажмите кнопку Enter для выхода из команды.
16. Нажмите кнопку Enter для повторения команды.
17. Введите значение отступа 5.
18. Выберите последнюю созданную линию и щелкните выше нее.
19. Нажмите кнопку Enter для выхода из команды.
20. В командной строке введите команду LINE и нажмите кнопку Enter.
21. Введите координаты первой точки: 370,25. Нажмите кнопку Enter.
22. Введите координаты второй точки: @0,15. Нажмите дважды кнопку Enter.
23. Выберите команду Offset (Смещение).
24. Введите значение отступа 5.
25. Выберите созданную линию и щелкните правее нее. Появится новая линия.
26. Нажмите кнопку Enter для выхода из команды.
Рамка и поля основной надписи созданы (рис. 3.23). Линии, выведенные синим цветом, при печати будут сплошными тонкими линиями, а линии, выведенные красным цветом, – основными сплошными линиями.

Рис. 3.23. Основная надпись до заполнения
В следующем разделе мы заполним поля основной надписи.
3.6. Заполнение основной надписи
Для заполнения полей основной надписи мы будем использовать инструмент Single Line Text (Текст одной строкой).
1. Щелкните мышью по кнопке с логотипом в левом верхнем углу окна программы, чтобы открыть браузер-меню.
2. В браузер-меню выберите пункт Tools (Инструменты).
3. В открывшемся подменю выберите команду Drafting Settings (Настройки черчения). Откроется диалог Drafting Settings (Настройки черчения) (см. рис. 3.16).
4. Введите ширину шага 0,5 мм в поле Snap X spacing (Шаг по оси X). Шаг по оси Y установится автоматически.
5. Нажмите кнопку OK, чтобы сохранить изменения и закрыть диалог.
Теперь позиционирование будет достаточно точным для размещения текста внутри ячейки.
6. В выпадающем списке Layer Control (Управление слоем) (см. рис. 3.17) панели Layers (Слои) вкладки Home (Главная) ленты выберите слой Text.
7. На панели Annotation (Аннотация) вкладки Home (Главная) ленты выберите инструмент Single Line Text (Текст одной строкой)

8. Нажмите клавишу ↓. Откроется меню опций команды Single Line Text (Текст одной строкой).
9. Выберите в меню пункт Justify (Выравнивание). Откроется список опций выравнивания (рис. 3.24).

Рис. 3.24. Список опций выравнивания
10. Щелкните по опции MC, чтобы выбрать выравнивание по центру по вертикали и горизонтали. Подробнее об опциях данной команды будет рассказано в следующей главе.
11. Установите курсор точно в середину поля, где должен быть текст «Изм.», и щелкните кнопкой.
12. Введите с клавиатуры 0, чтобы указать, что угол наклона направляющей текста отсутствует, и нажмите клавишу Enter.
13. Введите текст «Изм.».
14. После ввода текста щелкните вне поля ввода, после чего нажмите клавишу Enter.
Совет
Используйте масштабирование и панорамирование (см. главу 1), чтобы сделать ввод текста в поле удобнее.
Совет
Для вызова команды нанесения текста из командной строки используйте команду DTEXT.
Теперь в поле появился текст, выведенный шрифтом с высотой 2,5 мм (в разделе 3.4 «Создание текстовых стилей» мы установили соответствующий стиль как текущий).
15. Таким же образом заполните остальные поля, в которых текст располагается горизонтально (рис. 3.25).

Рис. 3.25. Заполнение полей основной надписи на данном этапе
Совет
Если текст должен располагаться горизонтально не по центру, выбирайте стиль ML. При этом указываемая точка должна быть крайней левой точкой текста по горизонтали и серединой поля по вертикали.
Совет
Название стиля выравнивания можно вводить с клавиатуры, чтобы ускорить работу с командой.
Теперь заполним поля с вертикальным текстом.
1. На панели Annotation (Аннотация) вкладки Home (Главная) ленты выберите инструмент Single Line Text (Текст одной строкой).
2. Нажмите клавишу ↓. Откроется меню опций команды Single Line Text (Текст одной строкой).
3. Выберите в меню пункт Justify (Выравнивание). Откроется список опций выравнивания (см. рис. 3.24).
4. Щелкните по опции MC, чтобы выбрать выравнивание по центру по вертикали и горизонтали.
5. Установите курсор точно в середину поля, где должен быть текст «Инв. № подл.», и щелкните левой кнопкой.
6. Введите с клавиатуры 90, чтобы указать угол наклона направляющей текста, и нажмите клавишу Enter.
7. Введите текст «Инв. № подл.». Текст будет вводиться горизонтально.
8. После ввода текста щелкните вне поля ввода, после чего нажмите клавишу Enter. Текст примет окончательный вид.
9. Таким же образом заполните все поля с вертикальным текстом (рис. 3.26).

Рис. 3.26. Заполнение полей с вертикальным текстом
На этом создание основной надписи закончено (рис. 3.27), и мы можем сохранить созданный чертеж в качестве шаблона, чтобы использовать его при создании новых чертежей.

Рис. 3.27. Готовый шаблон формата A3
3.9. Сохранение в качестве шаблона
1. Щелкните мышью по кнопке с логотипом в левом верхнем углу окна программы, чтобы открыть браузер-меню.
2. В браузер-меню выберите пункт Files (Файлы).
3. В открывшемся подменю выберите пункт Save As (Сохранить как). Откроется диалог Save Drawing As (Сохранить чертеж как) (рис. 3.28).

Рис. 3.28. Диалог Save Drawing As (Сохранить чертеж как)
4. В выпадающем списке Files of type (Тип файлов) выберите вариант AutoCAD Drawing Template. При этом каталог сохранения изменится на стандартный каталог поиска шаблонов AutoCAD.
5. В текстовое поле File name (Имя файла) введите имя шаблона (например, acadGOST-A3.dwt).
6. Нажмите кнопку Save (Сохранить). Откроется диалог Template Options (Опции шаблона) (рис. 3.29).

Рис. 3.29. Диалог Template options (Опции шаблона)
7. Введите описание шаблона в текстовое поле Description (Описание). В описании вы можете указать стандарт, формат, дату создания.
8. Нажмите кнопку OK.
Новый шаблон сохранен для дальнейшей работы.




























