Текст книги "Германские субмарины Тип IXC крупным планом"
Автор книги: С. Иванов
Жанры:
История
,сообщить о нарушении
Текущая страница: 2 (всего у книги 3 страниц)

Вид на заднюю чисть рубки подлодки U 66 серии IXС. Киль, гавань Блючер, январь 1941 г. Сбоку под палубой зенитного автомата видны зарешеченные окна – отверстия для поступающего и выходящего воздуха. На ограждении рубки укреплен ходовой огонь, по бокам от которого видны 2 лестницы. В задней стенке рубки находились водонепроницаемые кранцы для обойм 3,7-см зенитного полуавтомата, общим запасом 60 патронов.

Передняя часть рубки подлодки U 183 серии IXС/40 во время обучения экипажа в 1942 г. Внизу магнитный компас, покрытый антимагнитой обтекателем. Под волнорезом рубки отверстия обоих сирен типа Тайфун, из которых привое меньше левого (такое устройство было с лета 1942 г., впервые на U 252). Внизу справа, наискосок от крышки компаса видно раздаточное окно, через которое на палубу подавались снаряды к передней пушке.

Вид на рубку и внутренность мостика подлодки U 163, весна 1942 г. До середины 1942 г. ветровой козырек ни лодках серии IXС устанавливался до середины фальшбортов. В задней части по бокам видны решетки воздушных шихт дизеля, объединённые с выдвижной антеной (слева). Впереди справа карман для выдвижной антенны радипеленгатора. Между колоннами UZO приборов защитная крышка стойки главного руля. В передней части находятся 3 откидных сиденья. На корме рубки стойка перископа, позднее там же устанавливался пеленгаторный компас. На открытой огражденной палубе 2-см зенитный автомат Flak 30 на 2-см цокольном лафете типа 30/37.

U 183 летом 1944 г. выходит в море в Малаккском проливе ни пути к Пинангу (Малайзии). Поскольку в начале лета 1943 г. модернизированных рубок II-го типа заводского изготовлении в Лорьяне не хватало, то часть так называемых «муссонных» лодок U 168, U 183 и U 509 получила в июне 1943 г. дополнительную зенитную площадку для двух 2-см зенитных автоматов позади рубки. Это были временная мера, способная в короткий срок усилить зенитные средства ни лодке в условиях возросшей угрозы воздушных атак. Эта зенитная площадка была связана с рубкой пешеходным мостиком. Лодки V 183 серии IXС/40 обладала также особой формой боковых шпигатов в передней части. Эта форма первоначально была предусмотрена для всех подлодок этой серии, однако уже начиная с лодки V 186 от неё отказались.

Сдача в эксплуатацию подлодки U 187 23 июли 1942 г. у достроечной стенки верфи Дешимаг в Бремене. Подлодки U 183-185 и U 187 были оснащены сначала экспериментальной наблюдательной мачтой па левом борту, уложенной вдоль на верхней палубе. Подъём и спуск её осуществлялся изнутри лодки при помощи гидравлических моторов, которые могли приводиться в движение как с мостика, так и с центрального поста. После первых испытаний в боевых условиях эти мачты на подлодках U 183 и V 185 были укорочены на 5 м, а в мае 1943 г. из-за возросшей опасности воздушных атак были совсем демонтированы.

Стойка перископа подлодки U 156 перед выходом в море 19 августа 1942 г. В середине между закрытыми перископными направляющими выдвижная опорная рама для наблюдательного поста («воронье гнездо»), расположенная на стойке перископа. Справа внизу столбик UZO прибора. С 1941 г. внутренняя стенка фальшборта, стойка перископа и UZO-столбик покрывались деревянными планками.

Фото крупным планом передней части рубки U 156, покрытой антеннами локатора FMG 41G (gU), который в 1942 г. переименовали в FuMO 29. После установки радаров на подводные лодки в 1939 г. выяснилось, что они занимали много места и были недостаточно эффективны. Тогда от них отказались. Новые радиолокаторы по распоряжению командования от 12 сентября 1941 г. были установлены па все боевые подлодки. Прежде всего их получили в конце 1941 г. подлодки U 156 и U 158 серии IXС. Это были устройства с неподвижными антеннами, которые позднее, в конце 1942 г., заменили на радары FuMO 30-194 с вращающейся антенной. Первой такой радар получила подлодка U 194. Из-за недостаточной эксплутационной надёжности нового оборудования и низкого технического уровня комсостава подлодок имевшиеся радары в боевых условиях применялись очень редко.

Мостик U 889 с установленными в конце войны приборами предупреждении и локаторами. Перед отверстием для выдвижной вращающейся антенны радиолокатора FuMO 61 «Hohentwiel» видна шихта для выдвижной и вращающейся антенны радара обзорного пеленга FuMB 28 «Naxos ZM 4». Эти радары устанавливались только на подлодки U 877-881 и U 889 серии IXС. По правому борту находится ниши для рамочного локатора с комбинированной радиоантенной-излучателем, действующими па перископной глубине. Па стойке перископа круглая дипольная антенна радиолокатора FuMB 29 «Bali I», используемая в работе в дециметровом диапазоне. Другие антенны находились па головке шнорхеля. Впереди перед перископом мачтовая опора для подвижной головки антенны радиолокатора FuMB 26 «Tunis» для работы в сантиметровом диапазоне при движении под водой.

Осенью 1942 г. из-за возросшей угрозы воздушных атак было усилено зенитное вооружение. В качестве промежуточного решения, принятого на 1 октября 1942 г., была установка па рубке двух 15– мм крупнокалиберных пулеметов MG 151Z на подвижных лафетах и одного 2-см зенитного автомата Flak 38 на втором лафете. Из-за недостаточной силы огня пулемёты MG 151Z попытались переделать, но в начале декабря 1942 г. от них отказались. На фото представлена модернизированная рубка 1 типа подлодки U 193 серии IXС во время построения команды 10 декабря 1942 г. Оба пулемёта MG 151Z уже отсутствуют. Модернизированная рубка II типа отличалась только изменённой станиной для двух 2-см зенитных автоматов на палубе «зимнего сада» (заднего уступа рубки). Ко времени сдачи лодки в эксплуатацию чаще всего успевали устанавливать только 6 из 10 верхнепалубных хранилищ для торпед. Пустые укладки заметны по закрытым решеткам.

Вид спереди пи рубку U 172 после близкого разрыва авиабомб 27 апреля 1942 г. в водах северо-западнее Шотландии. При этом была оторвана крышка радара «Berta» FuMB, расположенного над волнорезом. Там располагались широполосный диполь с рефлектором для определения местонахождения лодки с помощью радара в метровом диапазоне. Этот опытный прибор, впервые установленный на U 172 в конце 1941 г., был первым радаром наблюдения и обнаружения для подводников. Однако он не получил признания из-за невозможности точно определить цель и использовать полученные результаты.
Подлодка U 504 отчаливает 27 июля 1943 г. в Жиронде (долина р.Луиры) ни пути к Бордо в последний боевой поход. Уже три дня спустя они была потоплена ни выходе из Бискайского залива. Полностью снаряжения подлодка глубоко сидит в воде. Слабое зенитное вооружение (только одна установка спаренных пулемётов) этой лодки сыграло катастрофическую роль при атаке союзных самолетов – охотников за субмаринами. К 13 июля 1943 г. первые 40 лафетов для спаренных 2-см пушек поступили па базы в Западной Франции. Они сразу же были установлены на рубки II типа подлодок, выходящих в море. Некоторые из подлодок серии IXС сохранили 3,7-см зенитные полуавтоматы до конца лета 1943 г., хотя их демонтаж начался ещё 13 марта 1943 г.
Всего с 1939 по 1943 гг. было заказано 214 подлодок серии IXС и серии IXС/40, из них было построено и сдано флоту всего 54 подлодки серии IXС и 88 подлодок серии IXС/40. Таким образом, по числу построенных серийных подлодок этот тип занимает второе место после подлодки серии VII.
Программа постройки подлодок серии IXС в 1939-1944 гг.
Подлодки IX серии в противоположность средним подлодкам VII серии предназначались в первую очередь для операций на дальних океанских просторах. Однако с началом 2-й мировой войны в наличии имелось только 5 подлодок этого типа в боевой готовности. К тому же оказалось, что они малопригодны для таких операций. Три из пяти были потеряны уже в первые 6 недель морской войны. К осени 1940 г. оставшиеся в наличии-две подлодки серий IX А и IX В чаще всего использовались порознь, главным образом в Бискайском заливе, а также западнее Пиренейского полуострова для расширения прохода в Гибралтарском заливе. Позже они привлекались для участия в операции по захвату Норвегии.
После оккупации Франции немцы получили в свое распоряжение Бискайскую военно-морскую базу и возможность судам снабжения проникать в центральную Атлантику. К концу 1940 г. область операций подводных лодок была расширена на центральные и южные районы Атлантики у африканского побережья. 11 декабря 1940 г. U 65 серии IX В стала первой немецкой подлодкой, которая во время войны впервые пересекла экватор, держа курс на юг. Однако медленно растущий выпуск подлодок вынудил немецкое командование использовать подлодки IX серии в групповых соединениях (в так называемых волчьих стаях) против вражеских конвоев в Северном канале и в восточной Атлантике. После вступления в войну Италии в июне 1940 г., а позже после оккупации Греции, захваченные военно-морские базы сделали возможным боевое применение подлодок VII серии в Средиземном море и позволили убрать из этого района боевых действий подлодки IX серии. Хотя они создавались именно для этого района боевых действий. К тому же средние подлодки VII серии лучше соответствовали условиям этого сравнительно ограниченного района боевых действий.

U 172 с модернизированной рубкой II-го типа в центральной Атлантике во время заправки топливом из подлодки U 847, едва заметной сзади, 24 августа 1943 г. Спустя 3 дня U 847 была потоплена. Из-за большой угрозы воздушных атак было усилено наблюдение. Лодка помимо двух 2-см зенитных автоматов была вооружена двумя дополнительными зенитными спаренными пулемётами MG 81Z. Шахта штыревой антенны перестроена в верхней части для установки выдвижной вращающей антенны локатора FuMO 30.
Артиллерийское вооружение подлодок серий IXС и IXС/40 при сдаче в эксплуатацию.
В каждом случае указана первая подлодка верфи с новым вооружением.
| Дешимаг | верфь Везер | Дешимаг, верфь Зеебек | «Дойче Верфт», Гамбург |
| Рубка I типа | U 193 | ||
| Рубка II типа | U 194 | U 80I(U 170?) | U 538-544 |
| Рубка IV типа (2x2 -см С38,1х2-см счетверённый) | U 865 | ||
| Рубки IV типа (2x2 -см C38II ,1х2-см счетверённый) | U 804 | U 1225 | |
| Рубка IV типа (2x2 -см C38II ,1x3,7-см М42) | U 877 | U 806 | U 1232(1231?) |
| С ограждением для 3,7-см M42 | V 877 | V 806 | U1234? |
| Без 3,7-см SK С/30 | U 843 | U 802 | U540-545 |
| Без опорной плиты 3,7-см SK С/30 | V 857 | U 803? | U 1221-1224 |
| Без 10,5-см SKC/36 | U 867 | и 805(804?) | U 1225-1228 |
| Без опорной плиты 10,5-см SK С/36 | U 1231(1230?) |
С началом операций в районе североамериканского восточного побережья в январе 1942 г. и последовавшего расширения районов боевых действий на Карибское море и северо-восточное побережье Южной Америки была рассмотрена возможность использовать подлодки IX серии в качестве подводных танкеров. Эти «дойные коровы» создавались для дозаправки субмарин в открытом море. После выхода в море в боевой поход первой подлодки U 66 серии IXС 13 мая 1941 г., лодки типа С отныне стали основной продукцией IX серии .
Возобновление регулярных конвойных операций в Северной Атлантике в июле 1942 г. привело к широкому боевому использованию соединений новых подлодок типа С в этом районе. С октября 1942 г. подлодки серии IXС появились в районе Капстадта (ныне Кейптаун – ЮАР, район мыса Доброй Надежды), где ещё из– за слабого противодействия можно было получить хорошие боевые результаты. С января 1943 г. немецкое командование увеличило также присутствие подлодок серии IXС в центральной Атлантике против конвоев идущих на восток из США с важными военными грузами для североафриканского ТВД. Активизация борьбы против конвоев следующих в Англию заставила вновь отправить на их поиски подлодки IX серии из французских гаваней в Северную Атлантику. Однако уже к середине мая 1943 г. оказалось, что наибольшие потери в процентном соотношении несут подлодки серии VIIС, возникла реальная опасность потерять и другие подлодки. Па основании этого командование тотчас же вывело из района Северной Атлантики все подлодки IX серии, как более важные для океанских операций. Основной причиной возросших потерь стали неповоротливость и недостаточная устойчивость подлодок IX серии во время атак глубинными бомбами. Другой причиной этих неудач оказалось слишком большое время погружения после
получения сигнала тревоги, что делало лодку уязвимой во время воздушных атак. Гак же оказалось, что в Северной Атлантике чаще всего пустые хранилища запасных торпед, устроенные под верхней палубой, из-за недостаточной прочности при срочном погружении или при близком разрыве глубинных бомб частично разрушались вовнутрь. При этом резкое увеличение веса носовой части вследствие прибывающей забортной воды вызывало внезапное погружение, что часто заканчивалось гибелью лодки.
После катастрофических неудач в мае 1943 г. на коммуникациях в Северной Атлантике немецкое командование направило в конце июня того же года подлодки IX серии в Индийский океан. Ставка делалась на то, что в этом в районе со слабой противолодочной обороной подлодки кригемарине будут действовать в большей безопасности. Хотя попасть в этот район боевых действий было нелегко, требовалась по меньшей мере одна дозаправка.

Две незаконченных подлодки U1237 (спереди) и U1238 (позади) серии IXС/40 после окончания войны ни верфи «Дойче Верфт» в Гамбурге. Ясно видны 200-мм широкие шпигаты в верхней половине палубы.

Сдача кригсмарине подлодки U 869 26 января 1944 г. на верфи Везер в Бремене. Как предпоследняя лодка, построенная на этой верфи, она получила на вооружение устаревшую 2-см счетверённую зенитную установку 38/42U, которую из-за слишком малой дальнобойности заменил с октября 1943 г. 3,7-см зенитный полуавтомат Flak М42. Из-за недостаточного числа готовых новых зенитных установок перевооружение значительно задержалось до весны 1944 г. И середине нижнего уступа рубки («зимнего сада») сбоку видны 2 ёмкости для дежурных боеприпасов. К 1944 г. нормальное снаряжение боеприпасами новых подлодок серии IIС составляло 31)50 снарядов калибра 3,7 см и 10750 снарядов калибра 2 см.

2-см счетверённая зенитная установка подлодки U 869. Она снабжена складными металлическим щитами толщиной 15 мм не только для защиты расчёта от вражеского огня, но и от ударов волн. Их сильные удары часто даже вырывали из палубы лафеты. Из-за высокой скорострельности экипажи вражеских самолетов боялись огня зенитных автоматов.

Зенитная площадка подлодки U 805, которая следует в заливе Каско па пути в Портленд/Мэн 14 мая 1945 г. 2-см спаренные автоматы без стальных защитных щитов, которые часто отрывались при движении под водой из-за сильного давления потока воды. В середине – герметичная ёмкость (кранец) для боеприпасов, в котором размещалось триста 2-см снарядов. Внизу видны 4 кранца общей емкостью 340 снарядов для 3,7-см зенитных полуавтоматов Flak М42 и далее 4 открытых контейнера для надувных спасательных лодок (каждая па 5 человек).

Кормовая часть рубки («зимнего сада») подлодки U 889 со спаренным 3,7-см зенитным полуавтоматом на лафете LM42U, который оснащён складными 15-мм защитными щитами по бокам. Это мощное вооружение было испытано в мае 1944 г. на U 1164 в VII зенитной школе в Свинемюнде и с октября того же года стало устанавливаться на подлодки IX серии. Однако из-за преобладающего движения лодок под водой в боевом походе эта мощная зенитка применялась редко. Лишь U 534 смогла сбить 5 мая 1945 г. «Либерейтор» из 547-й британской эскадрильи, воспользовавшись этой зениткой. Внизу под орудийной площадкой видны два контейнера для надувных спасательных лодок.

U 190 в Галифаксе (Канада) с уложенной мачтой шнорхельного устройства I в нише открытой палубы.
Установка шнорхелей на подлодки серий IXС и IXС/40
| № подлодки | Время установки | Верфь | Исполнение | Тип головного вентиля |
| U 107 | 09.01.44-29.04.44(Н) | Werftliegezeit Lorient | 1 | К |
| U 129 | .07.44– .08.44 | Werftliegezeit Lorient – Einbau abgebrochen | ||
| U 154 | 28.04.44-20.06.44(Н) | Werftliegezeit Lorient | 1 | К |
| U 155 | 26.06.44-01.09.44(W) | Werftliegezeit Lorient | 1 | К |
| U 170 | 02.06.44-21.07.44(W) | Werftliegezeit Lorient | 1 | К |
| U 188 | .06.44– .08.44 | Werftliegezeit Bordeaux – Einbau abgebrochen | ||
| U 190 | 21.06.44-16.08.44(W) | Werftliegezeit Lorient | 1 | К |
| U 516 | .10.44– .01.45 | Werftliegezeit Howaldt Hamburg | К | |
| U 518 | 08.05.44-25.06.44(W) | Werftliegezeit Lorient | 1 | К |
| U 530 | 22.02.44-22.05.44(H) | Werftliegezeit Lorient | 1 | К |
| U 534 | 17.08.44-24.08.44(H) | Werftiiberholung Bordeaux | 1 starr | К |
| 04.11.44-01.03.45(W) | Werftliegezeit Oderwerke Stettin | |||
| U 539 | .10.44-25.01.45(W) | Werftliegezeit Schichau Konigsberg | ||
| U 541 | 26.06.44-25.07.44(W) | Werftliegezeit Lorient | 1 | К |
| U 543 | 24.01,44-28.03.44(H) | Werftliegezeit Lorient | 1 | К |
| U 546 | 23.04.44-15.06.44(H) | Werftliegezeit Lorient | 1 | К |
| U 547 | 24.02.44-29.04.44(H) | Werftliegezeit Lorient | 1 | К |
| U 548 | 25.06.44-10.08.44(H) | Werftliegezeit Lorient | 1 | К |
| U 549 | 26.03.44-14.05.44(H) | Werftliegezeit Lorient | 1 | К |
| U 802 | 02.05.44-22.06.44(H) | Werftliegezeit Lorient | 1 | К |
| U 803 | ,02.44-26.04.44(W) | Restarbeiten Oderwerke Stettin | 1 | К |
| U 804 | 23.03.44-08.06.44(W) | Restarbeiten Oderwerke Stettin | 1 | К |
| U 805 | ab 12.02.44 | Indienststellung Seebeck Wesermiinde | 1 | К |
| U 806 | ab 29.04.44 | Indienststellung Seebeck ‘Wesermiinde | 1 | К |
| U 853 | 05.07.44-25.08.44(W) | Werftliegezeit Lorient | 1 | К |
| U 855 | 06.12.43-29.01.44(W) | Restarbeiten Deschimag Bremen | 1 | К |
| U 857 | 16.08.44-22.08.44(W) | Werftiiberholung Bordeaux | 1 starr | К |
| .10.44– .01.45 | Werftliegezeit Howaldt Hamburg | 2 9 | ||
| U 858 | 02.02.44-02.04.44(W) | Restarbeiten Seebeck Wesermiinde | 1 | К |
| U 865 | .04.44– .05.44 | Restarbeiten Oderwerke Stettin | 1 | К |
| U 866 | 01,05.44-29.06.44(W) | Restarbeiten Deschimag Bremen | 1 | К |
| U 867 | ab 13.12.43 | Indienststellung Deschimag Bremen | 1 | К |
| U 868 | 15.09.44-04.12.44(W) | Restarbeiten Oderwerke Stettin | 1 | К |
| U 869 | 29.06.44-23.09.44(W) | Restarbeiten Oderwerke Stettin | 1 | К |
| U 870 | 30.06.44-25.08.44(W) | Restarbeiten Oderwerke Stettin | 1 | К |
| U 877 | 01.07.44-02.10.44(W) | Restarbeiten Oderwerke Stettin | 1 | К |
| U 878 | 14.08.44-20.12.44(W) | Restarbeiten Deutsche Werke Kiel | 2? | |
| U 879 | 23.08.44-14.01.45(W) | Restarbeiten Deutsche Werke Kiel | 2? | |
| U 880 | 22.08.44-15.11.44(W) | Restarbeiten Oderwerke Stettin | 2 ? | |
| U 881 | . 11.44-30.01.45(W) | Restarbeiten Oderwerke Stettin | 2 ? | |
| U 889 | ab 04.08.44 | Indienststellung Deschimag Bremen | 1 | К |
| U 1221 | ,04.44-30.06.44(W) | Restarbeiten Oderwerke Stettin | 1 | К |
| U 1222 | ,12.43-04.02.44(W) | Restarbeiten Deutsche Werft Hamburg | 1 | к |
| U 1223 | 01.05.44-06.07.44(W) | Restarbeiten Deutsche Werke Kiel | 1 | К |
| U 1225 | 13.03.44– ,05.44(W) | Restarbeiten Oderwerke Stettin | 1 | К |
| U 1226 | 24.06.44-22.08.44(W) | Restarbeiten Howaldt Hamburg | 1 | К |
| U 1227 | 09.05.44-24.07.44(W) | Restarbeiten Deutsche Werft Hamburg | 1 | к |
| U 1228 | 20.05.44-28.07.44(W) | Restarbeiten Howaldt Hamburg | К | |
| U 1229 | 08.05.44-20.06.44(W) | Restarbeiten Oderwerke Stettin | 1 | К |
| U 1230 | 20.05.44-18.07.44(W) | Restarbeiten Seebeck Wesermiinde | 1 | К |
| U 1231 | 30.06.44-24.08.44(W) | Restarbeiten Seebeck Wesermiinde | 1 | К |
| U 1232 | 09.07.44-09.09.44(W) | Restarbeiten Howaldt Hamburg | 1 | К |
| U 1233 | 27.07.44-26.09.44(W) | Restarbeiten Howaldt Hamburg | К | |
| U 1234 | ab 19.04.44 | Indienststellung Deutsche Werft Hamburg | 1 | К |
| U 1235 | ab 17.05.44 | Indienststellung Deutsche Werft Hamburg | 1 | К |
H – время нахождения в гавани W – время нахождения на верфи К – шаровый поплавковый вентиль

Круглый поплавок головки шнорхеля подлодки U 516 после демонтажа летом 1945 г. в Лисхалли (Северная Ирландия). При движении под водой с поднятым шиорхелем его головная часть покрывалась мастичной сеткой для поглощения волн вражеского радара и матовой краской для избежания бликов. Сверху сбоку видна кольцевая дипольная антенна «Bali I» радара FuMB 29.

Нижняя часть ахтерштевня подлодки U 505 с закрытыми крышками кормовых торпедных аппаратов.


Вид на выхлопные трубы, уложенные сбоку рядом с мачтой шнорхеля на подлодке U 889.

Подлодка U 505: гребной вал крепился к корпусу двумя стойками, винт трёхлопастный. Винт весом 620 кг изготавливали из специальной латуни (марки SoGMs). Он имел диаметр 1720 мм и такой же шаг винта. Из-за недостатка сырья на подлодки серии IXС стали устанавливать винты из стали марки SlG 42, которые покрывали специальной антикоррозийной краской.

Корма U 158 перед спуском со стапеля 21 июня 1941 г. Хорошо видим крышки кормовых торпедных аппаратов, руль направления и задние рули глубины.

Открытый контейнер для шлюпки типа «Динги» в кормовой части подлодки U 127, который располагался между 14-м и 21-м шпангоутами. Она извлеклась из контейнера и спускалась на воду при помощи мотора, установленного на палубе. С 16 мая 1942 г. установка таких шлюпок на подлодки прекратилась, т.к. контейнер занимал слишком много места. В дальнейшем использовались надувные спасательные лодки длиной 3,3 м.

Групповой вентиляционный клапан балластных цистерн 2 и 3 на корме подлодки U127, передний из которых с открытой палубной крышкой. Клапан состоит из 4 частей, так что каждая цистерна продувается отдельно. Заграждение из проволочной сетки должно защищать клапан от посторонних предметов.

Открытые створки палубы па корме U 127 перед зенитным полуавтоматом 3,7-см SK С/ 30. Вследствие длительного нахождения в море крышки и покрытие верхней палубы под воздействием многократных ударов волн подвергались деформации. При движении под водой они иногда производили сильный шум. Это могло демаскировать подлодку и помочь обнаружить её вражеским гидролокаторам.

U 190 после окончании войны в заливе Быков ( Ньюфауленд) с личным багажом экипажа на верхней палубе перед рубкой. Ясно видна измененная форма верхней палубы между А-шпангоутами № 89 и № 124 1/2

Носовые торпедные аппараты (ТА) подлодки U 190 незадолго до сдачи в эксплуатацию, 1 октября 1942 г. По правому борту перед ТА III вал с шарниром Вернера, ведущий к переднему рулю глубины. По сравнению с большими подлодками других флотов число торпедных аппаратов на подлодках серии IXС было сравнительно небольшим. Однако этого оказалось достаточным (с учетом 25 запасных торпед) для выполнения поставленных задач в рамках войны с торговым флотом противника.

Оборудование и вспомогательные устройства торпедных аппаратов в носовой части подлодки L 190. Перед ТА I установлена рамка для 4 щелочных контейнеров прибора обогащения воздуха и 3 держателя для боевых пусков торпед. Справа внизу вентиляционная труба для отвода воздуха с рычагом распределителя.

Внутренний вид носового отсека по правому борту перед водонепроницаемой переборкой у Д– шпангоута № 68 1/2 на подлодке V 190. Справа внизу унитаз и приводимый в действие вручную туалетный насос, который обладал двойным перекрытием и должен был гарантированно промывать унитаз водой даже на глубине 100 м. Вверху связка кабелей управления переднего руля глубины. Ниже передаточный механизм вала мотора рулей глубины, который ведёт к штурвальной стойке в центральном отсеке.

Подлодка серии IXС

Подлодка серии IXС: устройство и поперечные сечения

План секций, топливных и балластных цистерн

Число и расположение шпигатов на подлодках серий IXС и IXС/40
| А | В | С | |||||||||||
| 2 | 3 | 5 | 7 | 1 | 7 | 1/2 | 4 | 1 | 7 | 1/2*1/2 | 4 | IXC | U 66-67 U 501-502 |
| 2 | 3 | 5 | 7 | 1 | 7 | 1/2 | 4 | 1 | 7 | 1/2*1/2 | 4 | IXC | U 68 U 125-131 U 153-158 U 503-512 |
| 2 | 3 | 5 | 7 | 1 | 7 | 1/2 | 4 | 1 | 7 | 1/4*1/2 | 4 | IXC | U 513-524 |
| 2 | 2 | 4 | 7 | 1 | 7 | 1/2 | 4 | 1 | 7 | 1/4*1/2 | 4 | IX C/40 | U 525-532 |
| 2 | 2 | 4 | 6 | 1 | 7 | 1/2 | 4 | 1 | 7 | 1/2*1/2 | 2 | IXC | U 159-160 U 171-176 |
| 2 | 2 | 4 | 6 | 1 | 7 | 1/2 | 4 | 1 | 7 | 1/4*1/2 | 2 | SX C/40 | U 183-194 U 533-550 U 841-846 U 853-858 U 865-870 U 877-881 U 889 U 1221-1235 |
| 2 | 3 | 5 | 15 | 1/2 | 4 | 1 | 7 | 1/2*1/2 | 4 | IXC | U 161 и 163-164 | ||
| 2 | 3 | 5 | 14 | 1/2 | 4 | 1 | 7 | 1/4*1/2 | 4 | IXC | U 162 | ||
| 2 | 3 | 5 | 15 | 1/2 | 4 | 1 | 7 | 1/4*1/2 | 2 | IXC | U 165-166 | ||
| 2 | 2 | 4 | 14 | 1/2 | 4 | 1 | 7 | 1/2*1/2 | 2 | IX C/40 | U 167-170 U 801-806 | ||
| 2 | 26 | 2 | 1 | 7 | 1/2 | 4 | 1 | 7 | 1/4*1/2 | 2 | IXС | U 172 | |
| 2 | 26 | 2 | 1 | 7 | 1/2 | 4 | 1 | 7 | 2 | IX c/40 | U 183, 185 | ||
| 2 | 3 | 5 | 7 | 1 | 7 | 1/2 | 1 1/2 | 1 | 7 | 1/2*1/2 | 4 | IXC | U 507, 510 |
| 2 | 3 | 5 | 7 | 1 | 7 | 1/2 3 | 1/2 | 1 1/2 | 7 | 1/4*1/2 | 4 | IXC | U 513 (Bb) |
| 2 | 3 | 5 | 7 | 1 | 7 | 1/2 1/2 1/2 | 1/2 1 | 2 1/2 | 7 | 1/4*1/2 | 4 | IXC | U 523 (Stb.) |

Чертёж серии IXС/40 для дока

Крышка люка

Вариант камуфляжа U 532

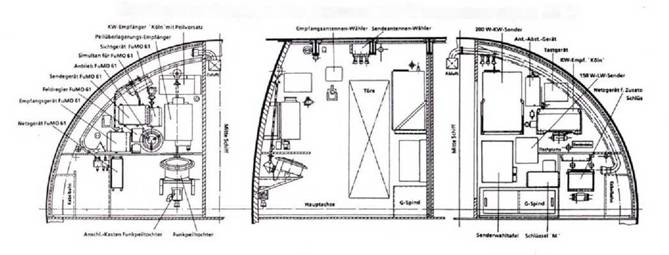
Приборы н оборудование радиоотсека 43 подлодок серии IXС

Модернизация верхней палубы носовой части серии IXС-40

Теоретический чертёж подлодки U 190 серии IXС (модернизация верхней палубы в носовой части)

Варианты камуфляжа U 507

U 154

Мачта шнорхеля (откидная мачта с приводным механизмом)

Мачта шнорхеля (откидная мачта с приводным механизмом)

Мачта шнорхеля на верхней палубе

Основной перископ

Перископ для наблюдения за ночными воздушными целями

Рамка радиолокатора FuMO 30

Рамки радиолокаторов (FuMB-Ant.5 «Samoa» и FuMB– Ant.3 «Bali 1»)

Рамка радиолокатора (тип Н, FuMB 26 «Tunis» – приёмная часть)

Зенитная установка калибра 3,7-см


3,7-см зенитный полуавтомат М 42/LM 43U

2-см счетверённый зенитный автомат 38.43 U

2-см зенитный автомат МК S5/106 с прицелом типа I

2-см счетверённый зенитный автомат 38.43 U (карта смазки)

Головки шнорхелей (варианты)

Задняя часть носового отсека подлодки U190 с видом на водонепроницаемую переборку жилого отсека унтер– офицеров. Слева перед дверью туалета находятся два умывальника с откидной деревянной крышкой, под ними сточные трубы и емкость для грязной воды. Каждый из умывальников имел подсоединение к баку с холодной водой (вода для умывания), который находился в кормовой части обшивки рубки. Справа рядом с дверью туалета батарея парового отопления. У левого борта вспомогательный трюмный насос.

Двухъярусные койки в жилом офицерском отсеке подлодки U 505 с дубовыми шкафами для белья и личных вещей слева. Справа перегородка кают-компании. Койки шириной 62,5 см и длиной 180 см имели снизу спиральные пружины, они были снабжены подушками в наволочках и матрасами. Деревянная мебель и и шкаф со стеклянными дверцами сохранились оригинальными после реставрации.

Справа: вид на заднюю часть жилого отсека унтер-офицеров подлодки U 505 после её захвата американцами в июне 1944 г. Слева двухъярусные койки, в середине приводная рукоятка для открытия и закрытия заливного клапана балластной цистерны № 7. Позади – шкаф для рабочей одежды.

Справа: передняя часть командирского отсека на подлодке U 505 со следами обыска после захвата 4 июня 1944 г. Рядом с диван-кроватью письменный стол с аптечкой на стене. В ящиках над столом находились навигационные инструменты и книги. Над кроватью за открытой деревянной дверью стальная дверь сейфа.

Передняя чисть камбуза на подлодке U 190, отделенная перегородкой от жилого отсека оберфельдфебелей. Наверху рычаг ручного насоса для подачи питьевой воды из всех 4 баков, ниже слева краны для мытья посуды и мойка. Дальше виден насос для подачи питьевой воды. Половина раковины занята вентилями питьевой воды, справа от них за дверцами автоматический выключатель батареи № 2.

Задняя стенка камбуза подлодки U 190 с электроплитой (на ней две конфорки и одни духовка). Справа держатель для 40-литровой бака-кастрюли, которая имела отдельный подогрев. Переключатель подогрева кастрюли справа вверху на стене. Рядом справа открытая переборка, ведущая в офицерский жилой отсек. Лестница справа ведёт к люку камбуза.

Задняя стенка камбуза подлодки U 505 с электроплитой, оснащенной тремя конфорками и двумя духовками. На месте 40-литровой бака-кастрюли с отдельным подогревом здесь находится одностворчатый шкаф, установленный при реставрации. В левой чисти камбуза блок автоматических выключателей аккумуляторов носовой части.

Отсек акустиков с компенсатором и усилителем гидролокатора. Атлас находился па подлодке U 889 спереди от легкой переборки жилого офицерского отсека. На заднем плане под верхним шкафом сейф для радиограмм.

Морской радиоприёмник фирмы Телефункен в акустическом отсеке подлодки V 889 (на разделительной перегородке радиоотсека). Под ним на стене видны 3 круглых одинаковых крана радара FuMB 28 «Naxos-ZM4», предназначенного дли поиска и определении направления луча вражеского радара в 9-см диапазоне частот. Слева приборы настройки для всеволнового приёмники фирмы Телефункен, совсем внизу – коротковолновый приёмник.

Приборы радиотсека подлодки U 889 на разделительной стенке акустического отсека. Спереди наверху 200-ватный коротковолновый передатчик, под ним слева панель настройки передатчика, справа – 150-ватный длинноволновый передатчик, совсем внизу ящик для ключей морзянки. На заднем плане над столом коротковолновый приёмник.

Противоположная часть радиоотсека на U 889, примыкающая к воднепроницаемой переборке. Сзади на стене батарея предохранителей, справа в углу сверху передатчик, под ним приёмник радара FuMO 61 «Hohentwiel», слева на стенке проверочный вольтметр. Книзу приёмная антенна радара FuMO 26 «Tunis».

Отсеку центральной перегородки в районе Д-шпангоута №47 1/2 подлодки V 889: на стене пеленгаторный приёмник фирмы Телефункен. Внизу на столе под плексигласом экран пеленгатора с резервным компасом. Слева наверху экран радара FuMO 61, под ним находится ручной штурвал для вращения рефлекторной антенны радара, находящейся на боковой обшивке мостика.

Передняя водонепроницаемая переборка в центральном отсеке подлодки U 190. В центре машинный телеграф с датчиками и ко/юбкой переключателей, ниже главный гирокомпас. Наверху слева динамик громкой связи и датчик рулевого телеграфа для передачи команд в кормовую часты Слева от измерителя глубины труба для подачи и отвода воздуха,под ними кингстон главной балластной цистерны. Совсем справа переключатель давления № 1-3 для открытия вентиляционных отверстий балластных цистерн.

Штурвалы управления рулями глубины, расположенные по правому борту в передней части центрального отсека подлодки U 190. В случае выхода из строя электрического привода с помощью этих штурвалов происходит переход на ручное управление. При этом для отклонения руля глубины на 1 градус надо повернуть вручную штурвал па 1,66 оборота. В верхней половине снимка с обеих сторон видны манометры для измерения глубины и индикаторы положения руля. При этом левее стоят счетчики оборотов, а справа – два измерителя глубины. В левом углу снимка видна труба выдвижного радиопеленгатора.

Правый борт центрального отсека подлодки U 190, вид от передней переборки. В центре вспомогательный распределительный щит 3-х электроприборов для подачи воздуха, слева вверху главный вентиль продувки воздуха для балластных цистерн. Вверху слева 3 блока с индикаторами приборов: сигнализации перекрытия бортовых переборок и ламповая сигнализация, сообщающая о работе вентиляционной системы и погружении. Вспышки ламп сигнализировали о погружении в отдельных отсеках лодки. В центре группа вентилей, регулирующих подачу сжитого воздуха в балластные и топливные цистерны и отсеки. На переднем плане под входом в рубку указатель скорости.

Центробежный насос с двумя роторами с приводом на вал главного трюмного насоса. Правый борт позади центрального отсека подлодки U 190. При параллельном включении обоих насосов достигается максимальная мощность 2000 л/мин при общем напоре 10 м, обычная мощность 660 л/мин при рабочем напоре 5 м. Из-за сопротивлении в трубах напор значительно падает к носу и корме лодки. При погружении на глубину 100 м и более швы расходятся на ширину 2,6-см и пропускают воду. Проникающая через швы масса воды быстро увеличивает дальнейшее погружение. Обвальное поступление воды беспощадно потопит лодку, поэтому она должна начать немедленное всплытие и удержаться пи поверхности с помощью мощных откачивающих насосов.




























