Текст книги "Линкоры Британской империи. Часть 5. На рубеже столетий"
Автор книги: Оскар Паркс
Жанры:
Технические науки
,сообщить о нарушении
Текущая страница: 2 (всего у книги 8 страниц)
Механизмы
Машины и котлы:
«Бульварк – «Хоуторн энд Лесли»,
«Лондон» – «Эрл»;
«Куин» – «Харланд энд Вулф»;
«Принс оф Уэлс» – «Гринок фаундри»;
«Венерэбл» – «Моделей»;
два комплекта трёхцилиндровых тройного расширения. мощность 15000 л.с., скорость хода 18 уз, 20 котлов Бельвиля с экномайзерами, давление 21,1 атм. (на «Куин» – системы Бабкок/Уилкокс)
Запас топлива,т 900/2000 (дальность действия 3000/8000 миль 10-узловым ходом).
Экипажчел. 714-733
В части внешнего вида они отличались от трёх своих предшественников отсутствием иллюминаторов вдоль нижней палубы в носу и открытыми батареями 76-мм орудий в середине корпуса на «Куин» и «Принс оф Уэлс», поскольку отсутствие защиты теперь полагали даже более безопасным, чем тонкие прикрытия, взводящие взрыватели попадающих в них снарядов (это был первый шаг к теории, набравшей силу позднее, что для мелкокалиберных пушек наиболее безопасным является отсутствие у них каких-либо прикрытий вообще).
Защита
Для более надёжной защиты от навесного огня пересмотрели соотношение толщин горизонтальных прикрытий: цитадель перекрывалась средней палубой в 51 мм, в носу её толщина уменьшалась до 38 мм. Нижняя палуба под ней имела толщину 25 мм (51 мм на скосах). К носу от цитадели кубрик имел 25-мм защиту.

«Куин». Продольный разрез и план верхней палубы корабля

«Лондон». Схема распределения броневой защиты
Примечательно отсутствие носового поперечного траверза: бортовое бронирование в 229 мм простиралось до носа, постепенно уменьшаясь по толщине до 178, 127, 76, и, наконец, 51 мм – у самого носа, что удваивало в этом месте толщину обшивки (это решение было повторено на «дунканах» и вообще стало постоянной частью конструкции всех остальных додредноутов. Так за счёт новых сортов броневой стали фактически вернулись к полному поясу Рида, получив надёжную преграду на пути среднекалиберных снарядов. Длина главного пояса составляла 76,2 м, высота 4,57 м (из них 1,37 м было ниже ватерлинии).
Общее
«Лондон» стал одним из кораблей, отобранных для самых первых опытов с морской авиацией и в 1912 г. на нём в носу– от надстройки до форштевня – возвели специальный наклонный помост для старта гидросамолётов. В 1916 г. на «Лондоне» и «Венерэбле» произвели замену 6" орудий по образцу «Имплекэбла», а «Лондон», будучи переоборудованным в 1917 г. в минный заградитель, лишился своего кормового барбета, а на шканцах установили 6" орудие– оно осталось единственным изо всех бывших на корабле ранее тяжёлых и вспомогательных орудий.
«Бульварк»
Вступил в строй в Девонпорте 18 марта 1902 г. и отправлен в качестве флагманского корабля на Средиземное море, где оставался до февраля 1907 г. (система контроля огня установлена в основном в 1904-1906 гг.). В феврале 1907 г. стал флагманским кораблём Флота Метрополии (выскочил на мель у Лемонлайта в Северном море 26 октября 1907 г., пытаясь уклониться от столкновения с рыбацкими судами, и получил незначительные повреждения). Ремонт в 1907-1908 гг. (закончена система контроля огня). С апреля 1909 г. в составе Флота канала. В августе 1909 г. в 1-я дивизия Флота Метрополии, с марта 1910 г. в составе Флота Метрополии с основным экипажем в качестве флагманского корабля вице-адмирала 3-й и 4-й дивизий, с апреля 1911 г. рядовой корабль. В июне 1912 г. назначен IV линейную эскадру 2-го флота временным флагманским кораблём контр-адмирала на период августа-сентября (дважды садился на мель на Барроу-Дип у Нора во время испытаний после ремонта, получил повреждения обшивки днища). В 1912-1914 гг. в составе V линейной эскадры. С началом войны патрулировал в Ла-Манше. Погиб у Ширнесса 26 ноября 1914 г. от внутреннего взрыва.

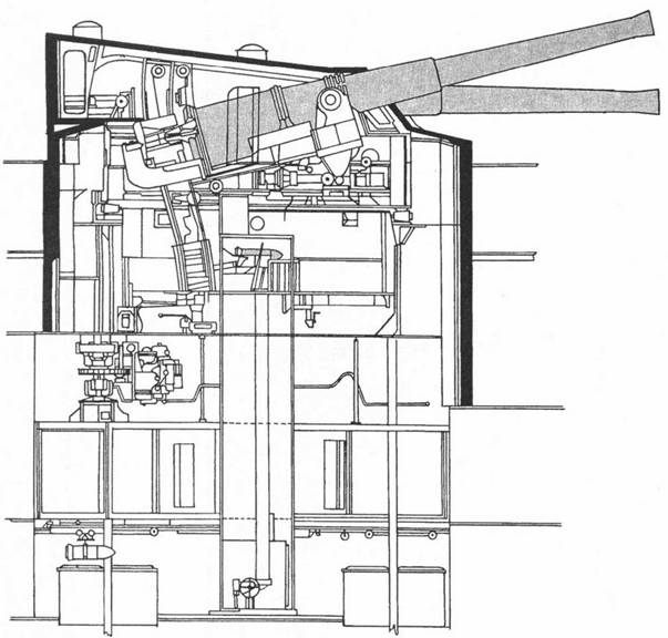
«Венерэбл». Установка 12" орудий (разрез)
«Лондон»
Поднял вымпел в Портсмуте 7 июня 1902 г. в качестве флагманского корабля Коронационного смотра, затем ушёл на Средиземное море, где оставался до апреля 1907 г. В июне 1907 г. в составе Флота Метрополии в Норе (сильно страдал от перегрева упорных подшипников валопроводов и течи в конденсаторах, а в 1906-1907 гг. образовались трещины в цилиндрах машин). В июне 1908 г. флагманский корабль контр-адмирала Флота канала, в 1908 г. прошёл большой ремонт в Чатеме. В 1910 г. флагманский корабль контр-адмирала Атлантического флота. С мая 1912 г. в III линейной эскадре 1-го флота (с основным экипажем), затем в V эскадре 2-го флота в Норе, оборудован для опытов с гидроаэропланами. Столкновение с пароходом «Дон Бенито» 11 мая 1912 г. у Гайта. Сначала войны до марта 1915 г. состоял в V линейной эскадре Флота канала, затем отправлен к Дарданеллам для восполнения убыли в корабельном составе. В 1919 г. плавбаза Резерва. Продан на слом в 1920 г.

«Лондон». Внешний вид корабля на момент вступления в строй

«Лондон». Внешний вид корабля по состоянию на 1912 г.

«Лондон». Внешний вид корабля по состоянию на 1918 г.
«Венерэбл»
Поднял вымпел в Чатеме 12 ноября 1902 г. и был отправлен на Средиземноморье в качестве флагманского корабля контр-адмирала. 26 июня 1905 г. в Алжирской гавани коснулся днищем дна, получил незначительные повреждения. В августе 1907 г. стал рядовым кораблём (флаг перенесён на «Принс оф Уэлс»), В 1909 гг. на Мальте установлена система контроля огня. В.мае 1912 г. корабль включён в состав V линейной эскадры, экипаж уменьшен до основного. В феврале-октябре 1909 г. прошёл большой ремонт в Чатеме, затем ушёл в Атлантику (установлена радиостанция). С мая 1912 г. состоял с уменьшенным экипажем в составе V линейной эскадры. С началом войны до октября 1914 г. принимал участия в операциях у бельгийского побережья, когда эффективное использование уже не представлялось возможным. В марте 1915 г. бомбардировал батареи Уэстенде, в мае получил назначение следовать к Дарданеллам, где сменил «Куин Элизабет». Участвовал в операциях у Сувы 14-21 августа, затем с тремя остальными «формидэблами» перешёл в Адриатику в соответствии с соглашением о выделении англичанами эскадры линкоров и крейсеров для блокады австрийского флота.
«Принс оф Уэлс»
В марте 1904 г. вступил в состав Резерва флота в Чатеме. Поднял вымпел 18 мая 1904 г. и направлен в Средиземное море, где прослужил до 1906 г. Столкновение у Орана 29 июля 1905 г. с пароходом «Энидвин», распоровшим надводный борт линкора в уровне средней палубы. В мае 1906 г. вступил в вооружённый резерв в Портсмуте. Несчастный случай в машинном отделении 16 апреля 1906 г., 3 убито, 4 ранено; ремонт в июне-ноябре 1906 г. С сентября 1906 по август 1907 г. состоял флагманским кораблём контр-адмирала Средиземноморской эскадры, в ноябре 1908 г. переведён в состав Атлантического флота флагманским кораблём командующего (до декабря 1910 г.). Взрыв в кочегарке 2 июля 1909 г. В феврале-мае 1911 г. ремонт в Гибралтаре. В мае 1912 г. придан III линейной эскадре 1-го флота (с 1 по 13 мая состоял флагманским кораблём вице-адмирала), затем флагманский корабль контр-адмирала 2-го флота в Портсмуте; столкновение с подводной лодкой С-32 во время манёвров 2 июня 1913 г., получил небольшие повреждения. С 1912 г. в составе V линейной эскадры Флота канала. В марте 1915 г. перешёл к Дарданеллам, прикрывал высадку у Анзака 25 апреля. 12 мая убыл в Адриатику. Продан на слом в 1920 г.
«Куин»
Вступил в строй 7 апреля 1904 г., отправлен в Средиземное море, где находился до декабря 1908 г. (с февраля 1907 г. состоял флагманским кораблём). Сел на мель 28 августа 1905 г., получил незначительные повреждения. В декабре 1908 г. переведён в Атлантику (1 февраля 1910 г. столкновение с греческим пароходом «Дафуй», незначительные повреждения). В 1909-1910 гг. прошёл ремонт в Девонпорте. В мае 1912 г. присоединён к III линейной эскадре 1-го флота, флагманский корабль вице-адмирала 2-го и 3-го флотов с мая 1912 г. 13 января 1913 г. в него врезался «Старлинг» у Ширнесса, нанеся лёгкие повреждения. В 1912-1914 гг. в составе V линейной эскадры, с началом первой мировой войны участвовал в операциях в Ла-Манше. 15 марта 1915 г. получил приказание перейти к Дарданеллам, прикрывал высадку у Анзака 25 апреля. 12 мая 1915 г. вместе с «Имплекэблом», «Лондоном» и «Принс оф Уэлс» перешёл на Адриатику на усиление итальянского флота, оставался в Таранто как корабль-база до 1918 г. Продан на слом в 1920 г.

«Венерэбл». Внешний вид корабля на момент вступлени в строй

«Венерэбл». Внешний вид корабля по состоянию на 1915 г.

«Куин». Внешний вид корабля

«Куин». Внешний вид корабля по состоянию на 1916 г.
Глава 70. Предложения по совершенствованию противоторпедной защиты
Выше уже упоминалось о проекте Рида («Энтерпрайз») с бронированным внутренним дном, который, хотя и был отклонён Советом Адмиралтейства, может считаться предтечей систем подводной защиты, выдвинутых и опробованных во французском и русском флотах. Возросшая точность оснащённых гироскопом торпед, помноженная на резко повысившуюся эффективность миноносцев, вывела угрозу риска потери тяжёлых кораблей от подводного оружия в один ряд с возможностью потопления их артиллерией и послужила во всех флотах толчком к началу интенсивных работ по выработке наилучшей системы защиты корпуса от торпедного попадания.
Несоответствие наличных методов защиты новому наступательному морскому оружию, как не менее эффективному средству уничтожения, требовало быстрого разрешения. Защита бронёй от артиллерийского огня занимала 25-30% в составе нагрузки, в то время как доля веса, приходящегося на противоторпедную защиту, оставалась ничтожно малой.
Но, хотя вопрос принятия конструктивных мер защиты от подводных взрывов уже стоял на пороге, практически не имелось ясной картины того, как будет вести себя современный линкор после торпедного попадания. Единственным крупным кораблём, потопленным в результате подобной атаки, был бразильский «Аквидабан», ставший жертвой междоусобной войны 1894 г., однако он являлся практически антикварным экземпляром. Торпеда Швацкопфа малой дальности с боевой частью в 57 кг пироксилина попала в его левый борг у переборки, проделав пробоину размерами 2 х 6 м и завернув внутрь листы обшивки в радиусе ещё около 2 м вокруг. Было затоплено четыре отсека, общий вес воды, поступивший внутрь, достиг 500 т. Ещё одна пробоина диаметром около 1 м образовалась в противоположном борту – её причину отнесли на счёт обшивки головной части торпеды, пронесённой взрывам через весь корабль и пробившей навылет правый борт.
Теперь же современные французские торпеды калибра 450 мм оснащались зарядом в 100 кг пироксилина и результат подобного попадания сопровождался намного более сокрушительным эффектом, так что напрашивался вопрос о целесообразности применении против подобного удара броневой защиты. Альтернативу составляло более тщательное и продуманное подразделение корпуса на водонепроницаемые отсеки, так чтобы вода, распространяясь через пробоину по корпусу, не скапливалась бы на одном борту и не создавала угрозу остойчивости. Продольные переборки усугубляли подобную опасность и именно они, не подкреплённые соответствующими контрмерами, стали причиной катастроф поражённых торпедами кораблей в войне 1914-1918 гг.
«Анри IV»: французская система
Первую реальную попытку защиты низкого корпуса посредством использования бронирования предприняли после опытов, проводившихся в Лориане в 1894 г. В проекте «Анри IV» Бертэн склонился к защите монигорного корпуса новой системой полуконцентрческих переборок, способных, согласно его расчётам, выдержать торпедный удар. Главная броневая палуба, перекрывавшая бортовой пояс по его верхней кромке, отделялась от расположенной ниже неё отражательной палубы системой отсеков клетчатого слоя; у бортов эта палуба закручивалась в виде полуцилиндра вниз, параллельно наружному борту, образуя, как предполагалось, своеобразную подушку с известной долей эластичности, упиравшуюся в продольную вертикальную переборку. Примечательно сходство этой конструкции с идеями Рида, за исключением разве что толщины брони, применённой обоими инженерами: там, где у Рида была броня в 102 мм, Бертэн ограничился 38 мм. Когда французский корабль ещё только строился, провели натурное испытание фрагмента подобной защиты, описание которого поместила парижская «Яхтинг газетт»:

«Анри IV»
«Кессон, воспроизводящий корпус судна, был оснащён таким же бронированием, броневой палубой, угольными ямами, отсеками и переборками, как корабль– прототип. Длина кессона составляла 12,4 м, высота 12,2 м, осадка 25 м, водоизмещение равнялось 490 т. Торпеда калибра 450 мм, представленная головной частью с зарядом пироксилина в 100 кг, была закреплена вплотную к обшивке на глубине около 3-3,3 м. В тыльной части этого заряда располагался небольшой резервуар со сжатым воздухом при давлении 7 атм., равном остаточному давлению в торпеде в конце её расчётного пробега. Этот заряд был подорван с располагавшейся неподалёку лодки посредством электровзрывателя. Поднялся огромный столб воды, кессон немедленно затонул. С большими трудностями его удалось поднять и выяснилось, что взрыв торпеды проделал пробоину, совершенно разрушив оба днища – и наружное и внутреннее».
Британская и русская системы
Для сравнения с русским «Цесаревичем» (1901) можно привести краткое описание британской системы, применённой на всех сериях британских линкоров от «Ройал Соверена» до «Кинга Эдуарда VII». Она представляла собой давно известное конструктивное решение с внутренним подразделением на водонепроницаемые отсеки и угольные ямы, отделяющие обшивку корпуса от жизненных частей, функцию внутренней обшивки при этом играла внутренняя продольная переборка. Однако до сих пор эта система предназначалась главным образом в качестве защиты от артиллерийского огня, как результат опытов 1878 г. в Портсмуте и Шобюринесе – согласно их общим результатам, слой угля в 2 фута (0,6 м) оказался примерно равноценен 1 дюйму (25 мм) железа и не возгорался в результате разрыва снаряда. Эффективность угольной защиты против взрыва торпеды тогда ещё испытанию не подвергалась.
Как альтернатива обычным переборкам, которые считали слишком слабыми для того, чтобы выдержать взрыв торпеды, на спроектированном по заказу русского флота во Франции «Цесаревиче» ввели броневые переборки [курсив автора. -Ред.]. Они представляли собой вертикальное продолжение скруглённой у бортов вниз броневой палубы в уровне ватерлинии и отстояли от наружной обшивки на 2 м. Конструкция спроектированного в России на этой основе «Бородино» также отличалась высоким уровнем внутреннего противоторпедного бронирования. Британский военно-морской ежегодник «Джейн'с файтинг шипе» за 1902 г. описывал данную систему как продолжающееся ниже шельфа броневого пояса бронирование из плит никелевой стали в 102 мм, доходящее до уровня двойного дна; считалось также, что внутри корпуса по всей его длине проходит бронированная трюмная продольная переборка той же толщины. Броневая палуба в 104 мм перекрывает пояс, ниже неё простирается палуба в 51 мм, а пространство между обеими палубами заполнено углем. Вся эта система должна была потребовать колоссального расхода нагрузки, которая очевидно не исчерпывалась на 566 т большим водоизмещением, чем у «Цесаревича». Однако после опытов уровень защиты был понижен и в целом на кораблях серии «Бородино» конструктивная броневая защита корпуса мало отличалась от прототипа( 5*
[Закрыть]).
С целью исследования ценности подобного тяжёлого бронирования построили баржу, целиком забронированную ниже ватерлинии 102-мм плитами, с 102-мм внутренней переборкой, и торпедировали её. В результате баржа была совершенно уничтожена, а мощная обшивка, как оказалось, лишь усугубила разрушительное действие взрыва вместо того, чтобы снизить его.
Во время внезапной атаки японцев на Порт-Артур «Цесаревич» был поражён торпедой; попадание пришлось под кормой, где никакой специальной конструктивной защиты не было. Наружная обшивка и набор корпуса были разорваны на участке размерами 10 х 3 м, поясная броня в 64 мм вдавилась внутрь, а подкрепления за ней сильно деформировались. Один из кораблей серии «Бородино», «Князь Суворов», потопленный при Цусиме, был через 40 минут после начала сражения выведен из строя артиллерийским огнём, потерял мачту и обе трубы (к 3 ч 10 мин пополудни), а затем дважды атакован эсминцами – в 3 ч 40 мин и в 4 ч 45 мин. Известно, что одна торпеда попала в него, что привело к крену в 10°. Что касается последней атаки, то здесь источники расходятся. В одном утверждается:
«Во время последней атаки «Князя Суворова» в конце первого дня сражения в Японском море имело место сильное волнение; корабль был частично небоеспособен; его атаковали шесть эсминцев, зашедших с кормы, по три с каждого борта, и выпустивших торпеды с дистанции 800 м. Корабль мог отстреливаться только из одного орудия».
По другому свидетельству (офицера одного из участвовавших в атаке эсминцев):
«…четыре корабля атаковали в сумерках и приблизились к цели на 200-300 м. Они были встречены плотным огнём, который выглядел странным со стороны корабля, подвергнутому до этого крайне жестокому обстрелу. Из четырёх выпущенных торпед три поразили корабль и в пять минут он пошёл на дно».

«Формидэбл»

«Цесаревич»

«Цесаревич». Внешний вид корабля
В «Суворов» попали две торпеды с «Харусаме» – одна в районе машинного отделения, другая в корму, и в 19 ч 20 мин он затонул. Выведенный из строя с поступающей внутрь водой, весь в огне, он продолжал оставаться наплаву ещё пять часов, а после попадания торпед держался на воде целых два часа. Поскольку корабль нёс много угля в отсеках выше ватерлинии, а его угольные ямы были пусты, то о его достаточной начальной остойчивости нечего и говорить – вся его стойкость может быть отнесена лишь на счёт его конструктивной подводной защиты.
Опыт с «Белляйл»
Эффективность угля против торпедной атаки оставалась неясной до 1904 г., пока не была подтверждена опытным путём. В качестве корабля-мишени послужил «Белляйл».( 6*
[Закрыть]) Снаружи к его корпусу пристроили коффердам глубиной 0,6 м, заполненный целлюлозой, а между наружной обшивкой и котельным отделением возвели шесть близко друг от друга отстоящих продольных переборок, пространство между которыми заполнили углем.
Подрыв торпеды калибром 457 мм эффективно продемонстрировал, что защита, хорошо подходящая против артиллерийского огня, далеко не гарантирует подобный же успех против подводного взрыва. Образовалась пробоина размерами 3,5 х 2,5 м, а большая часть коффердама и его наполнения были снесены взрывом. Это совершенно разрушило предположения экспериментаторов о том, что целлюлоза от соприкосновения с водой разбухнет и наглухо закупорит пробоину. Внутри корпуса разрушения простирались до последней переборки, оставшейся целой, но палубы не выдержали и вспучились, так что уголь оказался разбросанным по всему кораблю – между переборками его не осталось и одной тонны. Этот опыт привёл к появлению внутренних броневых экранов, прикрывавших погреба бортовых башен «Дредноута» (1905), которые получили развитие в виде полных броневых продольных переборок уже на линкорах серии «Беллерофон» (1907).
Глава 71. «Дункан»
Эта серия интересна тем, что «дунканы» стали первыми линейными кораблями, преодолевшими 19-узловую отметку, впервые не имели вентиляционных раструбов и стали последними, изначально окрашенными в чёрно-белый цвет. Первые четыре корабля были построены по Дополнительной программе 1898 г., а финансирование постройки было отнесено на бюджет следующего года. Стоимость каждого составляла около 1 093 000 фунт, стерлингов. Достройка всей серии не раз приостанавливалась в связи с забастовками, объявляемыми профсоюзами машиностроителей, так что на каждый из кораблей ушло по четыре года, а на «Корнуолис» целых пять.
Место постройки Заложен Спущен на воду Введён в строй
«Дункан» «Тэмз Айрон Уоркс» 10 июля 1899 21 марта 1901 октябрь 1903
«Корнуолис» «Тэмз Айрон Уоркс» 19 июля 1899 13 июля 1901 октябрь 1904
«Эксмут» «Лэрдз» 10 августа 1899 31 августа 1901 май 1903
«Рассел» «Палмерс» 11 марта 1899 19 февраля 1901 май 1904
«Албемарл» Чатем 8 января 1900 5 марта 1901 ноябрь 1903
«Монтегю» Девонпорт 23 ноября 1899 5 марта 1901 ноябрь 1903
Размерения,м 123,4 (131,7 полная) х 23,0 х 7,68/8,02
Водоизмещение,т
«Дункан»: в нормальном грузу – 13640, в полном грузу – 15100
«Корнуолис»: в нормальном грузу – 13745, в полном грузу – 15200
«Эксмут»: в нормальном грузу – 13500, в полном грузу – 15120
«Рассел»: в нормальном грузу – 13270, в полном грузу – 14900
«Албемарл»: в нормальном грузу – 13440, в полном грузу – 14930
«Монтегю»: в нормальном грузу – 13420, в полном грузу – 14950
Вооружение4 12740 (80 выстрелов на орудие); 12 6745 (200 выстрелов на орудие); 10 76-мм (12-фунтовых, 300 выстрелов на орудие); 2 76-мм (десантных); 6 47-мм (3-фунтовых, 500 выстрелов на орудие); 4 457-мм подводных торпедных аппарата (18 запасных торпед); 5 356-мм торпед для паровых катеров.
Броня,мм пояс в середине 178-76 (броня крупповская цементированная и нецементированная), в носу 76, в корме 38, траверз в корме 280-178, барбеты 280-102, башни 254-203, подачные трубы 51, казематы 152-51, палубы 51-25, боевые рубки 305-76 (вес брони 3655 т)
МеханизмыМашины и котлы: для первых четырёх механизмы изготовлены подрядчиком, «Албемарл» – «Тэмз Айрон Уоркс»; «Монтегю» – «Лэрдз», два комплекта четырёхцилиндровых инвертных тройного расширения, мощность 18000 л.с., скорость хода 19 уз, 24 котла Бельвиля с экномайзерами, давление 21 атм. площадь колосниковых решёток 126,5 м 2поверхность нагрева 3980 м 2диаметр цилиндров (мм): два по 851, два по 1384 и четыре по 1600 ход поршня 1219 мм, 120 об/мин.
Запас топлива,т 900/2240
Экипаж,чел. 720
Как уже упоминалось, характеристики проекта «Дункана» определялись исходя из необходимости противодействия группе русских быстроходных линкоров, из которых «Пересвет» и «Ослябя» были спущены в 1898 г., в 1900-м за ними последовала «Победа». Реально они относились к линкорам 2-го класса, поскольку несли 10" орудия и только 11 пушек калибра 6" при умеренной защите, а на продолжительном ходу их скорость не поднималась выше 16 узлов. Поэтому шесть «дунканов» имели над «пересветами» подавляющее преимущество – и в части вооружения, и защиты, и скорости хода.
Для достижения 19 узлов на 8-часовой пробе корпус сделали на 1,5 м длиннее и на 0,15 м шире, чем у «Формидэбла», в то время как осадка была уменьшена на 8 см – это позволило уложиться в 14000 т, или на 1000 т меньше, чем у прототипа. Состав вооружения был тот же самый, однако бронирования коснулись значительные изменения: его общий вес уменьшился на 675 т. Поддержание баланса основных качеств было достигнуто главным образом внедрением новейших достижений в судовом машиностроении и броневом деле, но необходимо отметить, что эта экономия не пошла на улучшение боевых качеств, как в случае с «Формидэблом», а была использована для экономии веса. 19-узловый «Формидэбл» потребовал бы существенного прироста водоизмещения, поэтому с учётом общественного мнения, перспектива недовольства которого новыми утяжелёнными кораблями выглядела весьма осязаемой, выбрали корабль несколько меньший – или по крайней мере почти такой же по размерам – что, соответственно, не могло не повлиять на решение Совета в отношении его тоннажа.( 7*
[Закрыть])

«Победа». Внешний вид корабля

«Дункан». Общее расположение (1903):
1 – котлы; 2 – машинные отделения; 3 – бомбовые погреба; 4 – крюйт-камеры; 5 – барбеты 12" орудий; 6 – дымоходы; 7 – вентиляционные шахты машинных отделений; 8 – отсек рулевых приводов; 9 – отсек торпедных аппаратов; 10 – боевая рубка; 11 – форпик; 12 – шпилевое отделение; 13 – дифферентная цистерна; 14 – отсек приводов 12" установки; 15 – коридор подачи боезапаса: 16 – погреба 76-мм выстрелов; 17 – погреба выстрелов мелкой артиллерии; 18 – погреба 6" орудий; 19 – канатный ящик; 20 – погреб сухой провизии; 21 – балластный отсек: 22 – боцманская кладовая.
Вес корпуса
На корпус по проекту отводилось 5400 т – на 250 т меньше, чем у «Форми– дэбла», а на всемерную экономию веса в ходе строительства обращали самое пристальное внимание. Результатом стало весьма существенное снижение веса корпуса по сравнению с расчётным, итог представляется интересным, поскольку опыт «дунканов» в этой части оказал прямое влияние на дальнейшую практику.
Вес корпуса, т Экономия, т
«Дункан» «Тэмз Айрон Уоркс» 4870 530
«Корнуолис» «Тэмз Айрон Уоркс» 5020 380
«Эксмут» «Лэрдз» 5030 370
«Рассел» «Палмерс» 5182 218
«Албемарл» Чатем 5271 129
«Монтегю» Девонпорт 5345 55
Вооружение
Четыре 12" орудия были установлены в барбетах диаметром 11125 мм, что было на фут (305 мм) меньше, чем на «лондонах». Выше поясного бронирования толщина плит барбетов составляла 280 мм (254 мм в тыльной части), или меньше, чем прежде, на целый дюйм, а за поясной бронёй она равнялась 178 мм (102 мм тыл) против прежних 305 и 152 мм. В качестве меры против высоко расположенных весов для увеличения остойчивости высота кормовой пары 12" орудий была уменьшена на 0,38 м – до 6,63 м над уровнем ватерлинии, так что верхняя палуба плавно понижалась от носа к корме.
Вспомогательная артиллерия имела такую же, как прежде, защиту в 152 мм, а 76-мм орудия в надстройке на верхней палубе вели огонь поверх низкого бруствера, как на «куинах», а не через порты, как на «канопусах» и «формидэблах».
В 1917 г. с верхней палубы «Албемарла» демонтировали 76-мм пушки и перенесли на их место четыре 6" орудия со средней палубы, защиту последних теперь составляли только противоосколочные щиты. Несмотря на обширный опыт и многолетнюю, искреннюю, но безуспешную критику, понадобилось целых 16 лет для осознания порочности расположения орудий вспомогательной батареи под верхней палубой и исправления этого недостатка, так что самое слабое место проектов Уайта было исправлено на его кораблях, когда они уже безнадёжно устарели.
Защита
После того, как в строительстве линкоров серии «Дункан» последовала отсрочка, разработанную для них систему бронирования внедрили на «лондонах» (эта система уже описывалась выше). Но на кораблях меньшего размера с долей брони в составе нагрузки равной 3655 т против прежних 4330 т пришлось пойти на существенное понижение толщины броневых плит, которое в среднем составляло 1-2 дюйма (25-50 мм). Главный пояс по ватерлинии толщиной 229 мм простирался на длину 72,5 м и имел в высоту 4,57 м, из которых 1,37 м находились ниже ватерлинии. К носу он продолжался плитами толщиной 127, затем 102 и, наконец, 76 мм; в корме толщина защиты по ватерлинии равнялась 38 мм. Как и в проекте «Лондона», это бронирование заменило собой носовой траверз, а толщина кормового уменьшилась на 51 мм. Помимо этого, толщина броневой палубы в корме также уменьшилась на 12 мм. Горизонтальная защита в целом воспроизводила «Лондон».

«Дункан». Схема распределения броневой защиты
Именно на этих кораблях ослабление бронирования в пользу достижения большей скорости хода впервые привело к резкой критике проектов Уайта. На «дунканах», при толщине средней палубы в 51 мм, нижняя палуба уменьшилась до 25 мм (на «маджестиках» она имела толщину 76-102 мм), причём обе палубы теперь выполнялись из мягкой стали.
Пояс «Маджестика» из 229-мм гарвеевской брони пробивался снарядом тогдашнего 240-мм орудия с дистанции 2700 м. Окончательная защита жизненных частей позади него дополнялась броневой палубой и слоем угля. Хотя 178 мм круп– повской брони считались равными 229 мм гарвеевкой, 25-мм палуба«Дункана» не могла считаться дополнением такого же уровня для пояса, который мог успешно противостоять снарядам лишь 160-мм калибра: из всего этого следовало, что «дунканы» не соответствовали статусу линкора 1-го класса. Их критики отмечали также, что палуба в 25 мм при ширине её около 23 м требовала такого же расхода веса, как и 127-мм вертикальная броня, которая стала бы практически совершенной защитой для машин, котлов, и вообще всей ватерлинии. Поэтому в целом лучше было следовать защите «Маджестика», отказавшись от бронированной средней палубы, что дало бы в итоге корабли, устойчивые в сражении. Французы всё ещё придерживались полного, хотя и узкого (2 м), пояса по ватерлинии с ячеистым слоем позади него: 11-тысячетонные линкоры серии«Голуа» – современники тогдашних британских «дунканов» – имели толщину пояса в середине равную 400 мм (250 мм в оконечностях) из плит гарвей-никелевой стали.
Теперь же, хотя гаубичное вооружение на французских кораблях (из-за опасения которого и была применена бронированная средняя палуба на «канопусах») так и не появилось, в Совете возобладала даже более радикальная точка зрения относительно перспективы поражения корабля через горизонтальные прикрытия на качке, даже при ведении практически настильного огня с общепринятых тогда боевых дистанций. Как отмечал Уайт в одном из его высказываний в защиту бронированной средней палубы, в случае «Дункана» полная площадь палубы равнялась 2024 м 2и на качке при отклонении от вертикали в 10° высота вертикальной проекции палубы на 1 м (или почти 40%) будет превосходить высоту вертикальной проекции бортового бронирования при ровной посадке корабля.( 8*
[Закрыть]) И отсутствие надлежащей защиты палуб может стать причиной получения очень серьёзных повреждений, поскольку при разрыве на ней тяжёлых снарядов с мощным разрывным зарядом крупные обломки палубы и её подкреплений будут отражены вниз. Таким образом, являлась необходимость, во-первых, придать защитной палубе, перекрывающей пояс по его верхней кромке, надлежащую прочность и, во-вторых, дополнить эту палубу ещё одной защитной палубой, загибавшейся краями к нижней кромке пояса; назначением её было задержание всех осколков и обломков, образовавшихся при разрыве снарядов на верхней защитной палубе.
Подобную отражательную палубу впервые применили во французском флоте, однако на многих кораблях она отстояла от верхней защитной палубы слишком близко или же была так жёстко перевязана с ней, что поражение верхней палубы практически неминуемо отражалось и на нижней. Теперь на британских линкорах на горизонтальную защиту уходило более четверти всего отпущенного на их бронирование веса, в то время как за рубежом эта пропорция оставалась существенно меньшей – фундаментальная разница в подходах, которую совершенно невозможно усмотреть из простого сравнения табличных данных. В Англии за непреложный факт принимался постулат о необходимости расположения более мощной из двух броневых палуб поверх бортовой защиты. Фугасные снаряды основного боезапаса с большим содержанием разрывного заряда должны были очевидно разрываться при попадании в верхнюю из броневых палуб; нижнюю же броневую палубу следовало располагать настолько более глубоко, чтобы риск её серьёзного повреждения осколками снаряда и обломками верхней палубы сводился к минимуму. Помимо этого, в связи с отказом от носового траверза, верхняя палуба приобретала большую важность и как элемент защиты основания орудийной установки вместе с погребами боезапаса, а так же машин и котлов, особенно при бое на носовых курсовых углах, когда большая протяжённость палубы резко увеличивала её размеры как цели при том, что медленное боковое смещение корабля существенно повышало риск попадания.








